PROVISIONSFREI - Aspern Flats 101 - Ihr Traum vom Eigenheim im Grünen
Wohnung
,
1220
Wien
Beschreibung der Immobilie
Aspern Flats 101
Das Wohnbauprojekt fügt sich mit seinen 80 provisionsfreien frei finanzierten Eigentumswohnungen und 37 PKW-Tiefgaragenstellplätzen perfekt in die Umgebung ein. Die durchdachten Raumaufteilungen der 2- und 3- Zimmer-Wohnungen mit 34m² bis 87m², decken alle Bedürfnisse ab. Die jeweiligen Freiflächen, wie Loggia, Balkon, Terrasse oder Eigengarten, bieten privaten Platz im Freien.
Es besteht die Möglichkeit, übereinander liegende Wohnungen zur Maisonette-Wohnung (4 Zimmer) zusammen zu legen bzw. nebeneinander liegende Wohnungen zu verbinden!
Für alle Eigentümer, auch in den oberen Geschossen, offeriert sich die besondere optionale Möglichkeit eines eigenen Gartenabteils. Alle Gärten werden mit Strom- und Wasseranschluss ausgeführt.
37 PKW-Stellplätze stehen in der hauseigenen Tiefgarage bereit.
Die Infrastruktur überzeugt: der Autobus, lediglich eine Minute zu Fuß entfernt, stellt die Direktverbindung zur U-Bahn Linie U2 dar.
Auch Einkaufs-, Bildungs- und Freizeitmöglichkeiten sind in wenigen Minuten erreichbar.
Alle Wohnungen werden schlüsselfertig übergeben, d.h. alle Sanitäranlagen, Fliesen und Parkettböden sind im Kaufpreis inkludiert. Die Heizung erfolgt mittels Fußbodenheizung, die Wärmeversorgung über eine energieschonende Luft-Wasser-Wärmepumpe.
Details über die Ausstattung der Wohnungen entnehmen Sie gerne der Leistungsbeschreibung im Booklet.
Sparen Sie 3,6% | provisionsfrei kaufen
Provisionsfrei! Alle Eigentumsobjekte werden ohne Provision (3,6% inkl. MwSt.) angeboten!
Renderings: Symbolbilder (c) bildraum.at
Wir weisen darauf hin, dass zwischen dem Vermittler und dem zu vermittelnden Dritten ein familiäres oder wirtschaftliches Naheverhältnis besteht.
Der Vermittler ist als Doppelmakler tätig.
Infrastruktur / Entfernungen
Gesundheit
Arzt <500m
Apotheke <1.000m
Klinik <1.000m
Krankenhaus <1.500m
Kinder & Schulen
Schule <500m
Kindergarten <500m
Universität <3.000m
Höhere Schule <3.000m
Nahversorgung
Supermarkt <500m
Bäckerei <1.000m
Einkaufszentrum <3.500m
Sonstige
Geldautomat <1.000m
Bank <1.000m
Post <1.000m
Polizei <500m
Verkehr
Bus <500m
U-Bahn <1.000m
Straßenbahn <500m
Bahnhof <1.000m
Autobahnanschluss <2.500m
Angaben Entfernung Luftlinie / Quelle: OpenStreetMap
Eckdaten
| Kaufpreis: | 299.500,00 € |
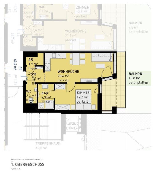
| Fläche: | 44,40 m² |
| Zimmer: | 2 |
Basisdaten zur Immobilie
| Objektnr: | 1609/45833 |
| Art: | Wohnung |
| Land: | Österreich |
| Baujahr: | 2025 |
| Zustand: | Erstbezug |
| Alter: | Neubau |
| Kaufpreis: | 299.500,00 € |
| Wohnfläche: | 44,40 m² |
| Zimmer: | 2 |
| Bäder: | 1 |
| WC: | 1 |
| Balkone: | 1 |
| Keller: | 5,90 m² |
| Heizwärmebedarf: | B 34,30 kWh/m²a |
| fGEE: | A 0,74 |
Ausstattung
Zentralheizung, Personenaufzug
Internet und TV
Information zur Internet und TV Versorgung hier
Ihre persönliche Beratung
Norbert Galfusz
RE/MAX First - REM Immobilienmakler GmbH & Co KG
n.galfusz@remax-first.at
+43 664 138 2089
RE/MAX First - REM Immobilienmakler GmbH & Co KG
Hietzinger Hauptstraße 22 / D / 9, 1130 Wien
+43 1 997 1000