Mi Living- Hochwertige Eigentumswohnungen nähe Hauptbahnhof
Wohnung
,
1100
Wien
,
Josef-Deutsch-Strasse 3
Beschreibung der Immobilie
Eckdaten
| Kaufpreis: | 342.000,00 € |
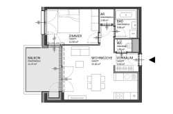
| Fläche: | 48,50 m² |
| Zimmer: | 2 |
Basisdaten zur Immobilie
| Objektnr: | 141/85328 |
| Art: | Wohnung |
| Land: | Österreich |
| Baujahr: | 2025 |
| Kaufpreis: | 342.000,00 € |
| Provision: | 3% |
| Wohnfläche: | 48,50 m² |
| Zimmer: | 2 |
| Bäder: | 1 |
| WC: | 1 |
| Balkone: | 1 |
| Heizwärmebedarf: | A 21,30 kWh/m²a |
| fGEE: | A 0,75 |
Ausstattung
Personenaufzug
Internet und TV
Information zur Internet und TV Versorgung hier
Ihre persönliche Beratung
Fabian Doll
Rustler Immobilientreuhand
Doll@rustler.eu
+43 676 834 34703
+43 676 834 34 703
