Immobilie merken

Stilvolle Altbauresidenz in Bestlage | ZELLMANN IMMOBILIEN

Wohnung , 1010 Wien , Bellariastraße

Lage der Immobilie

Diese Adresse zählt zu den exklusivsten Wohnlagen Wiens. Direkt hinter dem Naturhistorischen Museum und nur wenige Schritte von der Ringstraße entfernt, vereint sie historische Pracht mit urbaner Eleganz auf höchstem Niveau. Die Nähe zu renommierten Museen, dem MuseumsQuartier und dem ersten Bezirk macht diese Lage einzigartig. Gleichzeitig genießt man eine angenehme Ruhe – eine seltene Kombination aus zentralem Leben und exklusiver Rückzugsmöglichkeit.

Beschreibung der Immobilie

Eleganz mit Blick auf Wiens Wahrzeichen – Stilvolle Altbauresidenz in Bestlage

Quick Read
  • Repräsentative Altbauwohnung mit ca. 164 m² Wohnfläche
  • Großzügiger Wohnbereich mit Kamin und Blick auf das Naturhistorische Museum
  • Hochwertige Ausstattung inklusive Smart-Home-System
  • Drei Schlafzimmer, jeweils mit eigenem Bad
  • Masterbereich mit Sauna, Infrarotkabine und Schrankraum
  • Ruhige Lage nahe Ringstraße und MuseumsQuartier
  • Mehrere Parkgaragen in unmittelbarer Umgebung verfügbar
Objektbeschreibung

In einer der eindrucksvollsten Lagen Wiens, unmittelbar beim Naturhistorischen Museum, erwartet Sie eine außergewöhnliche Altbauwohnung, die klassischen Charme mit modernem Wohnkomfort auf höchstem Niveau vereint. Bereits beim Betreten wird deutlich: Hier wurde ein Wohnraum geschaffen, der höchsten Ansprüchen gerecht wird.

Der großzügige Wohnbereich beeindruckt mit stilvollem Kamin, hohen Räumen und großen Fensterflächen, die einen einzigartigen Blick auf eines der bedeutendsten Wahrzeichen der Stadt eröffnen. Die elegante Verbindung aus historischer Architektur und moderner Ausstattung schafft ein Wohngefühl, das sowohl repräsentativ als auch einladend ist.

Die separate Designerküche mit integriertem Weinkühler sowie das angrenzende Esszimmer bieten den idealen Rahmen für gesellige Abende oder stilvolle Empfänge. Hochwertige Materialien und durchdachte Details ziehen sich durch alle Räume und unterstreichen den exklusiven Charakter dieser Immobilie. 

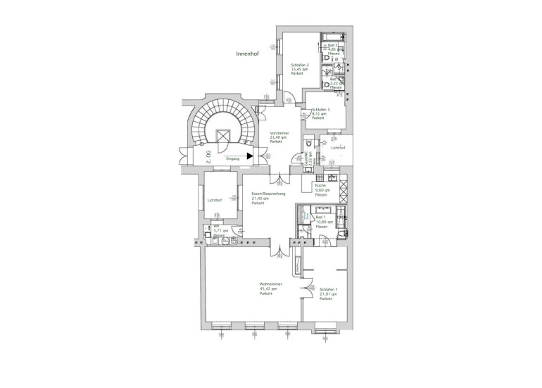
Raumaufteilung & Ausstattung

Die Wohnung überzeugt durch eine durchdachte und großzügige Raumstruktur:

  • Repräsentativer Eingangsbereich mit Gäste-WC
  • Großzügiges Wohnzimmer mit Kamin und beeindruckendem Ausblick
  • Separate Designerküche mit Essbereich
  • Masterbereich mit begehbarem Schrankraum sowie luxuriösem Badezimmer inklusive Sauna und Infrarotkabine
  • Zwei weitere Schlafzimmer, jeweils mit eigenem Bad und WC
  • Hochwertige technische Ausstattung wie Smart-Home-System, Fußbodenheizung und edle Materialien

Jeder Bereich wurde mit Blick auf Komfort, Funktionalität und Ästhetik gestaltet.

Lagebeschreibung

Die Lage zählt zu den begehrtesten Adressen Wiens: Eingebettet zwischen Ringstraße, MuseumsQuartier und dem ersten Bezirk verbindet sie urbanes Leben mit kultureller Exzellenz. Historische Prachtbauten, renommierte Museen und erstklassige Gastronomie prägen das unmittelbare Umfeld.

Trotz der zentralen Position bietet die Umgebung eine angenehme Ruhe und hohe Lebensqualität. Besonders hervorzuheben ist die hervorragende Infrastruktur: Neben der ausgezeichneten öffentlichen Verkehrsanbindung befinden sich auch mehrere Parkgaragen in unmittelbarer Nähe, die komfortables Parken im Herzen der Stadt ermöglichen. 

Zusammenfassung

Diese Immobilie ist weit mehr als eine Wohnung – sie ist ein stilvolles Statement. Eine seltene Kombination aus historischer Eleganz, modernster Ausstattung und unvergleichlicher Lage macht dieses Objekt zu einer außergewöhnlichen Gelegenheit für anspruchsvolle Mieter.

Wer das Besondere sucht, wird hier fündig.

Noch nichts gefunden? Wir informieren Sie über geeignete Immobilienangebote noch vor allen anderen.
Legen Sie jetzt Ihren individuellen Suchagenten unter folgendem Link an. Wir schicken Ihnen passende Immobilien exklusiv vorab zu. 

-> Suchagent anlegen

Der Immobilienmakler erklärt, dass er – entgegen dem in der Immobilienwirtschaft üblichen Geschäftsgebrauch des Doppelmaklers – einseitig nur für den Vermieter tätig ist.

Unser Service – Vertrauen. Service. Qualität.

Bei ZELLMANN IMMOBILIEN legen wir größten Wert auf persönliche Beratung, Transparenz und Service auf höchstem Niveau. Jede Besichtigung ist unverbindlich und findet in entspannter Atmosphäre statt. Nach Vertragsabschluss übernehmen wir selbstverständlich sämtliche Formalitäten – von der Übergabedokumentation bis zur Abstimmung mit Hausverwaltung und Energieversorgern. Ihr Anliegen ist bei uns in den besten Händen – auch nach Vertragsabschluss.

Rechtliche Hinweise

Bitte überprüfen Sie nach Übermittlung Ihrer Anfrage auch Ihren SPAM- bzw. WERBE-Ordner, da automatisierte E-Mail-Zustellungen technisch bedingt fallweise dort eingeordnet werden können. Wir bearbeiten Anfragen üblicherweise innerhalb weniger Stunden, auch an Wochenenden. Die Bekanntgabe einer Telefonnummer erfolgt freiwillig; diese kann ausschließlich zur ergänzenden Verständigung (z. B. SMS-Benachrichtigung über die Exposé-Übermittlung) verwendet werden. Dieses Angebot ist unverbindlich und freibleibend. Alle Angaben erfolgen auf Basis von Informationen des Eigentümers und vorliegenden Unterlagen; eine Haftung für Richtigkeit, Vollständigkeit und Aktualität wird nicht übernommen. Änderungen, Irrtümer, Zwischenverkauf sowie Abweichungen bleiben vorbehalten. Flächenangaben sind ca.-Werte. Das Exposé stellt kein verbindliches Angebot dar. Im Erfolgsfall beträgt die Käuferprovision 3 % des Kaufpreises zzgl. 20 % USt gemäß §§ 6 ff MaklerG und Immobilienmaklerverordnung, BGBl. 262/1996 idgF. Bei Mietobjekten gilt das gesetzliche Bestellerprinzip (§ 17a MaklerG): Provision ist von jener Partei zu tragen, die den Makler zuerst beauftragt hat; für Wohnungssuchende fällt grundsätzlich keine Provision an.

Infrastruktur / Entfernungen

Gesundheit
Arzt <250m
Apotheke <500m
Klinik <750m
Krankenhaus <1.750m

Kinder & Schulen
Schule <500m
Kindergarten <1.000m
Universität <500m
Höhere Schule <750m

Nahversorgung
Supermarkt <250m
Bäckerei <250m
Einkaufszentrum <750m

Sonstige
Geldautomat <500m
Bank <500m
Post <250m
Polizei <250m

Verkehr
Bus <250m
U-Bahn <250m
Straßenbahn <250m
Bahnhof <250m
Autobahnanschluss <4.000m

Angaben Entfernung Luftlinie / Quelle: OpenStreetMap

Eckdaten

Gesamtmiete: 3.990,00 €
Fläche: 164,00 m²
Zimmer: 4,50

Basisdaten zur Immobilie

Objektnr: 25598
Art: Wohnung
Land: Österreich
Zustand: Neuwertig
Alter: Altbau
Gesamtmiete: 3.990,00
Kaltmiete (netto): 3.258,32 €
Kaltmiete: 3.627,27 €
Provision: Gemäß Erstauftraggeberprinzip bezahlt der Abgeber die Provision.
Betriebskosten: 321,40 €
MwSt Gesamt: 362,73 €
Wohnfläche: 164,00 m²
Gesamtfläche: 164,00 m²
Zimmer: 4,50
Bäder: 3
WC: 4
Keller: 6,00 m²
Heizwärmebedarf:  C  95,90 kWh/m²a
fGEE:  D  1,78

Ausstattung

Parkett, Fliesen, Gas, Etagenheizung, Fußbodenheizung, Wohnküche / offene Küche, Personenaufzug, Badewanne, Dusche, DV-Verkabelung, Kabel/Satelliten-TV, Sauna, Alarmanlage



Internet und TV

Information zur Internet und TV Versorgung hier




Immobilie anfragen




Ihre persönliche Beratung

ZELLMANN IMMOBILIEN GmbH | Vertrauen. Service. Qualität.

Nicole Zellmann

ZELLMANN IMMOBILIEN GmbH | Vertrauen. Service. Qualität.

nicole@zellmann.at

+43 699 15 15 22 01

+43 699 15 15 22 01


ZELLMANN IMMOBILIEN GmbH | Vertrauen. Service. Qualität. - Immobilen Makler

Stuhlhofergasse 8, 1230 Wien-Mauer

+43 699 15 15 22 00

https://www.zellmann.at