Lage der Immobilie
SERVITENVIERTEL / VOTIVKIRCHE / WÄHRINGERSTRASSE -> Diese charmante Etagenwohnung im 9. Bezirk von Wien besticht durch ihre zentrale Lage in unmittelbarer Nähe zur Währinger Straße und der beeindruckenden Votivkirche. Hier genießen Sie eine hervorragende Anbindung an öffentliche Verkehrsmittel sowie eine Vielzahl an Einrichtungen des täglichen Bedarfs. Arzt, Apotheke, Schulen und Universitäten befinden sich in fußläufiger Nähe, während Supermärkte und Bäckereien Ihre Einkäufe bequem gestalten. Ein ideales Zuhause für urbanes Leben!Beschreibung der Immobilie
ALTBAUWOHNUNG GENERALSANIERT IM SERVITENVIERTEL
Monatliche Vorschreibung 230,-- inkl. Reparaturrücklage in Höhe von 84,--
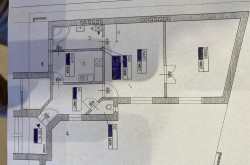
ca. 78m² bestehend aus: Vorzimmer, Küche, WC, Badezimmer mit Badewanne, Wohnzimmer, Schlafzimmer mit Schrank als Raumteiler (Schrankraumteiler als begehbare Garderobe)
Die Reparaturrücklage beläuft sich mit Stand 31.12.2025 auf 15.401,77€.
Willkommen in Ihrem neuen Zuhause in Wien! Diese wunderschöne Etagenwohnung befindet sich in einer der begehrtesten Lagen der Stadt – im beliebten und zentralen Bezirk 1090 Wien.
Mit einer Größe von 78m² bietet Ihnen diese Wohnung ausreichend Platz für ein komfortables Leben. Der großzügige Grundriss umfasst zwei Zimmer, die sich ideal als Schlaf- und Wohnbereich eignen, ergänzt durch einen großen Vorraum, eine separate Küche, Badezimmer mit Badewanne und Fenster, WC separat mit Fenster, Raumteiler als begehbare Garderobe. Dank der Generalsanierung können Sie sich auf eine moderne und hochwertige Ausstattung freuen. Die Wohnung ist in einem top Zustand und versprüht einen frischen und einladenden Charme.
Der Wohnbereich ist mit einem edlen Parkettboden ausgestattet, der für eine gemütliche Atmosphäre sorgt. Die separate Einbauküche mit Fenster lässt das Herz jedes Hobbykochs höherschlagen und ist mit allen notwendigen Geräten ausgestattet. Hier können Sie Ihre kulinarischen Fähigkeiten unter Beweis stellen und Ihre Gäste beeindrucken.
Ein weiteres Highlight der Wohnung ist das moderne Badezimmer. Es verfügt über eine Badewanne, in der Sie nach einem langen Tag entspannen können, sowie ein Fenster, das für ausreichend Tageslicht sorgt. Die Etagenheizung, die mit Gas betrieben wird, sorgt für wohlige Wärme in den kälteren Monaten.
Doch nicht nur die Wohnung selbst überzeugt, auch die Lage ist unschlagbar. Mit einer ausgezeichneten Verkehrsanbindung sind Sie bestens vernetzt und können die Stadt bequem erkunden. Bus, U-Bahn, Straßenbahn und Bahnhof befinden sich in unmittelbarer Nähe und bringen Sie schnell an Ihr Ziel.
Auch die Infrastruktur lässt keine Wünsche offen. In der Umgebung finden Sie alles, was das Herz begehrt – von Ärzten und Apotheken über Schulen und Kindergärten bis hin zu Supermärkten und Bäckereien. Auch die renommierte Universität Wien sowie mehrere höhere Schulen befinden sich in der Nähe.
Diese Wohnung ist die perfekte Wahl für alle, die eine moderne und gut gelegene Immobilie suchen. Überzeugen Sie sich selbst von den Vorzügen dieser Etagenwohnung und vereinbaren Sie noch heute einen Besichtigungstermin. Wir freuen uns auf Sie!
3. Stock ohne Lift
- das Anbot ist unverbindlich und freibleibend, Objektinformationen lt. Angaben des Abgebers
BITTE BEACHTEN SIE, DASS WIR AUFGRUND DES FAGG FERN- AUSWÄRTSGESCHÄFTEGESETZES UND DER NACHWEISPFLICHT GEGENÜBER DEM EIGENTÜMER NUR ANFRAGEN MIT VOLLSTÄNDIGER ANGABE DES NAMENS, DER ANSCHRIFT UND DER TELEFONNUMMER BEARBEITEN KÖNNEN.
Hinweis gemäß Energieausweisvorlagegesetz: Ein Energieausweis wurde vom Eigentümer bzw. Verkäufer, nach Aufklärung
über die ab 1.12.2012 geltende generelle Vorlagepflicht, noch nicht vorgelegt. Daher gilt zumindest eine dem Alter und der Art des Gebäudes entsprechende Gesamtenergieeffizienz als vereinbart. Wir übernehmen keinerlei Gewähr oder Haftung für die tatsächliche Energieeffizienz der angebotenen Immobilie.
Haben auch Sie eine Immobilie, die Sie verkaufen oder vermieten wollen?
Wir unterstützen Sie gerne vom ersten persönlichen Beratungsgespräch bis zum erfolgreichen Vertragsabschluss und schon bald wird auch Ihre Liegenschaft „erfolgreich vermittelt" sein.
Ich freue mich von Ihnen zu hören.
Als Immobilientreuhänder sind wir einerseits Ihnen als Interessent, als auch dem Abgeber als Verkäufer bzw. Vermieter verpflichtet. Immobiliengeschäfte sind keine kleinen Geschäfte des täglichen Lebens, deshalb sind wir einerseits gegenüber dem Abgeber, als auch gegenüber Behörden verpflichtet bei Ungeregelmäßigkeiten Auskunft geben zu können, an welche Personen Immobilien angeboten wurden.
Auch die europäischen Verbraucherrechte wurden vereinheitlicht, somit wird seit 13. Juni 2014 ebenso mit Ihnen als Interessent ein schriftlicher Maklervertrag abgeschlossen (früher geschah dies mündlich & es entfällt das Ausfüllen von "Besichtigungsscheinen"). Der Verband der Österreichischen Immobilienwirtschaft hat hierzu ebenso eine detaillierte Informationsseite eingerichtet: http://www.ovi.at/recht/verbraucherrechte-vrug/
Wir benötigen daher um Ihnen detaillierte Unterlagen zukommen zu lassen Ihren Namen und Ihre Wohnadresse (Straße, Hausnummer - wenn vorhanden: Stiege & Tür - PLZ und Ort).
Hinweis gemäß Energieausweisvorlagegesetz: Ein Energieausweis wurde vom Eigentümer bzw. Verkäufer, nach unserer Aufklärung über die generell geltende Vorlagepflicht, sowie Aufforderung zu seiner Erstellung noch nicht vorgelegt. Daher gilt zumindest eine dem Alter und der Art des Gebäudes entsprechende Gesamtenergieeffizienz als vereinbart. Wir übernehmen keinerlei Gewähr oder Haftung für die tatsächliche Energieeffizienz der angebotenen Immobilie.
Infrastruktur / Entfernungen
Gesundheit
Arzt <500m
Apotheke <500m
Klinik <500m
Krankenhaus <1.000m
Kinder & Schulen
Schule <500m
Kindergarten <1.000m
Universität <500m
Höhere Schule <1.000m
Nahversorgung
Supermarkt <500m
Bäckerei <500m
Einkaufszentrum <2.500m
Sonstige
Geldautomat <500m
Bank <500m
Post <500m
Polizei <500m
Verkehr
Bus <500m
U-Bahn <500m
Straßenbahn <500m
Bahnhof <500m
Autobahnanschluss <2.500m
Angaben Entfernung Luftlinie / Quelle: OpenStreetMap
Eckdaten
| Kaufpreis: | 499.000,00 € |
| Fläche: | 78,00 m² |
| Zimmer: | 2 |
Basisdaten zur Immobilie
| Objektnr: | 7107 |
| Art: | Wohnung - Etage |
| Land: | Österreich |
| Baujahr: | 1900 |
| Zustand: | Erstbezug |
| Alter: | Altbau |
| Kaufpreis: | 499.000,00 € |
| Provision: | 3% des Kaufpreises zzgl. 20% USt. |
| Betriebskosten: | 230,00 € |
| Wohnfläche: | 78,00 m² |
| Zimmer: | 2 |
| Bäder: | 1 |
| WC: | 1 |
Ausstattung
Fliesen, Parkett, Gas, Etagenheizung, Einbauküche, Bad mit Fenster, Badewanne, Kabel/Satelliten-TV
Internet und TV
Information zur Internet und TV Versorgung hier
Ihre persönliche Beratung
Susanne Walcher
IMS Immobilien Molnar Susanne
molnar@imsimmo.at
+43 664 370 0 370
+436643700370
