Immobilie merken

GROSSRAUMBÜRO IN GRAZ EGGENBERG - PROVISIONSFREI

Büro / Praxis , 8020 Graz

Beschreibung der Immobilie

Objektbeschreibung:

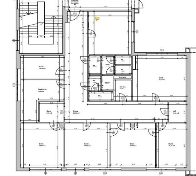
Das zur Vermietung stehende Büro befindet sich in der Eggenberger Allee 49 und ist im EG eines modernen Bürogebäudes situiert.

Die Büroräumlichkeiten verteilen sich auf einer Fläche von ca. 260 m², ebenso wie Küche, Sozialraum und Sanitärbereiche.

Die Räumlichkeiten sind großzügig befenstert und dementsprechend hell, verfügen über perfekt verteilte Bodendosen und werden mittels einer Hauszentralheizung (Fernwärme) beheizt. Die Kosten für die Kühlung sind in den Betriebskosten enthalten.

Optional können Tiefgaragenplätze angemietet werden, Kundenparkplätze stehen je nach Verfügbarkeit für einen zeitlich begrenzten Zeitraum kostenlos zur Verfügung.

Eine hervorragende Infrastruktur und öffentliche Anbindung runden das Angebot ebenso ab, wie auch die Tatsache, dass das Objekt provisionsfrei für den Interessenten angeboten wird.

Ausstattung:

  • Klima
  • Fernwärme
  • CAT-Verkabelung
  • Jalousien
  • Elektronisches Zugangssystem
  • Flexible Raumaufteilung
  • Gratis Gästeparkplatz (zeitlich begrenzt) je nach Verfügbarkeit
  • Tiefgaragenplätze optional anmietbar
  • Beliebtes Restaurant im Gebäude

Energieausweis:

HWB: 62,9 kWh/m²a (C)

fGEE: 0,99 (B)

Mietkostenaufstellung:

Hauptmietzins netto : € 2.340,00

Betriebskosten netto inkl.Klimaanlage: € 1.105,00

Heizung netto: € 143,00

Nebenkosten:

Mietvertragsvergebührung für das Finanzamt

Kaution

Für Fragen und eine Besichtigung steht Ihnen gerne Margaretha Kaiser unter Tel.: 0699/ 11038481 oder m.kaiser@kpimmo.at zu Verfügung!

Die Angaben beruhen auf Informationen der Eigentümer bzw. des Bauamtes und sind ohne Gewähr.

Der vermittelnde Makler übernimmt keinerlei Gewähr oder Haftung für die tatsächliche Energieeffizienz des Gebäudes.

Weiters dürfen wir darauf hinweisen, dass wir kraft bestehenden Geschäftsgebrauchs als Doppelmakler tätig sind, sowie ein wirtschaftliches Naheverhältnis zum Eigentümer besteht.

Wir weisen darauf hin, dass zwischen dem Vermittler und dem zu vermittelnden Dritten ein familiäres oder wirtschaftliches Naheverhältnis besteht.

Infrastruktur / Entfernungen

Gesundheit
Arzt <500m
Apotheke <500m
Klinik <1.000m
Krankenhaus <1.000m

Kinder & Schulen
Schule <500m
Kindergarten <500m
Universität <500m
Höhere Schule <500m

Nahversorgung
Supermarkt <500m
Bäckerei <500m
Einkaufszentrum <1.500m

Sonstige
Geldautomat <500m
Bank <500m
Post <500m
Polizei <1.000m

Verkehr
Bus <500m
Straßenbahn <500m
Autobahnanschluss <4.500m
Bahnhof <1.000m
Flughafen <10.000m

Angaben Entfernung Luftlinie / Quelle: OpenStreetMap

Eckdaten

Kaltmiete (netto): 2.340,00 €
Fläche: 260,00 m²

Basisdaten zur Immobilie

Objektnr: 7822/569479
Art: Büro / Praxis
Land: Österreich
Kaltmiete (netto): 2.340,00 €
Kaltmiete: 3.445,00 €
Provision: Provision bezahlt der Abgeber.
Betriebskosten: 1.105,00 €
MwSt Gesamt: 689,00 €
Nutzfläche: 260,00 m²
Bürofläche: 260,00 m²
Heizwärmebedarf:  C  62,90 kWh/m²a
fGEE:  B  0,99

Internet und TV

Information zur Internet und TV Versorgung hier




Immobilie anfragen




Ihre persönliche Beratung

Margaretha Kaiser

HM Kaiser & Partner Immobilien KG

m.kaiser@kpimmo.at

+43 699 11 03 84 81


HM Kaiser & Partner Immobilien KG - Immobilen Makler

Albertgasse 34 / Top 32, 1080 Wien