Immobilie merken

Moderne, ruhige 2-Zimmerwohnung-Wohnung!

Wohnung , 1070 Wien

Lage der Immobilie

Diese Wohnung im 7. Bezirk von Wien besticht durch ihre ideale Lage. In unmittelbarer Nähe finden Sie Ärzte und Apotheken. Einkaufsmöglichkeiten wie Supermarkt, Bäckerei und Einkaufszentrum, sowie Bank, Post und Polizei sind direkt vor Ort. Öffentliche Verkehrsmittel wie Bus, U-Bahn, Straßenbahn und Bahnhof garantieren optimale Anbindung.

Beschreibung der Immobilie

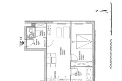
Kaiserstraße 68

Diese lichtdurchflutete, ruhige 2-Zimmer-Wohnung befindet sich im 6. Liftstock eines modernen Wohngebäudes und bietet auf rund 50 m² ein komfortables Wohnambiente.

Mit einer monatlichen Miete von 1.199 € genießen Sie hier urbanes Wohnen gepaart mit höchstem Komfort. Die Wohnung besticht durch eine praktische Raumaufteilung, die Ihnen sowohl gemütliche Wohnbereiche als auch ausreichend Platz für Ihre individuellen Bedürfnisse bietet. Der Vorraum bietet ausreichend Platz für Stauraum. Die moderne Einbauküche lädt zum Kochen ein der offene Wohnbereich ist lichtdurchflutet.

Das Bad ist mit einer Badewanne, Waschbecken und einem Waschmaschinenanschluss ausgestattet, das WC ist extra vom Vorraum aus zu begehen.

Die Lage könnte kaum besser sein: Die exzellente Verkehrsanbindung mit Bus, U-Bahn, Straßenbahn und Bahnhof garantiert Ihnen eine schnelle und unkomplizierte Mobilität in ganz Wien. So erreichen Sie Ihre Arbeitsstelle, Ihre Universität oder Ihre Freizeitziele stets ohne Stress.

Auch das Umfeld lässt keine Wünsche offen. In unmittelbarer Nähe finden Sie eine Vielzahl an wichtigen Einrichtungen wie Ärzte, Apotheken, Kliniken sowie verschiedene Bildungsstätten von Kindergarten über Schule bis hin zur Universität und höheren Schulen. Für den täglichen Bedarf stehen Ihnen Supermärkte, Bäckereien und sogar ein Einkaufszentrum zur Verfügung – alles bequem zu Fuß erreichbar.

Diese Wohnung ist ideal für Singles, Paare oder junge Berufstätige, die urbanes Leben mit hervorragender Infrastruktur und hohem Wohnkomfort verbinden möchten. Monatliche Vorschreibung Heizung und WW betragen  dzt. 60,65.- inkl. Ust. Das Abwicklungshonorar der Hausverwaltung beträgt einmalig EUR 155,-.

Ein Kellerabteil ist vorhanden, ein Garagenplatz kann nach Verfügbarkeit angemietet werden.

Öffentliche Verkehrsanbindung:
Straßenbahnlinien 5, 6 und 49
Autobuslinie 48A
U6 in 5 Gehminuten


 

Wir weisen darauf hin, dass zwischen dem Vermittler und dem zu vermittelnden Dritten ein familiäres oder wirtschaftliches Naheverhältnis besteht.

Der Immobilienmakler erklärt, dass er – entgegen dem in der Immobilienwirtschaft üblichen Geschäftsgebrauch des Doppelmaklers – einseitig nur für den Vermieter tätig ist.

Infrastruktur / Entfernungen

Gesundheit
Arzt <500m
Apotheke <500m
Klinik <500m
Krankenhaus <1.500m

Kinder & Schulen
Schule <500m
Kindergarten <500m
Universität <500m
Höhere Schule <500m

Nahversorgung
Supermarkt <500m
Bäckerei <500m
Einkaufszentrum <500m

Sonstige
Geldautomat <500m
Bank <500m
Post <500m
Polizei <500m

Verkehr
Bus <500m
U-Bahn <500m
Straßenbahn <500m
Bahnhof <500m
Autobahnanschluss <4.500m

Angaben Entfernung Luftlinie / Quelle: OpenStreetMap

Eckdaten

Gesamtmiete: 1.199,00 €
Fläche: 50,00 m²
Zimmer: 2

Basisdaten zur Immobilie

Objektnr: 7822/569492
Art: Wohnung
Land: Österreich
Gesamtmiete: 1.199,00
Kaltmiete (netto): 983,53 €
Kaltmiete: 1.090,00 €
Provision: Gemäß Erstauftraggeberprinzip bezahlt der Abgeber die Provision.
Betriebskosten: 106,47 €
MwSt Gesamt: 109,00 €
Wohnfläche: 50,00 m²
Zimmer: 2
Bäder: 1
WC: 1
Heizwärmebedarf: 42,40 kWh/m²a

Ausstattung

Zentralheizung, Einbauküche, Personenaufzug, Badewanne



Internet und TV

Information zur Internet und TV Versorgung hier




Immobilie anfragen




Ihre persönliche Beratung

Margaretha Kaiser

HM Kaiser & Partner Immobilien KG

m.kaiser@kpimmo.at

+43 699 11 03 84 81


HM Kaiser & Partner Immobilien KG - Immobilen Makler

Albertgasse 34 / Top 32, 1080 Wien