Charmante 2-Zimmer-Wohnung mit großzügigem Wohnbereich in Linz/Ebelsberg/Ennsfeld! Ab 01. Mai 2026 zu beziehen!
Wohnung
,
4030
Linz
,
Hofmannsthalweg 16
Lage der Immobilie
Die Wohnung befindet sich im Hofmannsthalweg im Linzer Stadtteil 4030. Die Lage zeichnet sich durch eine ruhige Wohnatmosphäre aus, bietet jedoch gleichzeitig eine gute Anbindung an das Stadtzentrum. Einkaufsmöglichkeiten, öffentliche Verkehrsmittel sowie diverse Freizeitangebote befinden sich in der näheren Umgebung.Beschreibung der Immobilie
Linz / Ebelsberg / Ennsfeld / Hofmannsthalweg 16 :
Diese gut geschnittene 2-Zimmer-Wohnung im 2. Obergeschoss überzeugt durch eine ideale Raumaufteilung und einen besonders großzügigen Wohnbereich. Auf rund 56,7 m² bietet die Wohnung ausreichend Platz für Singles oder Paare, die komfortables Wohnen in ruhiger Lage schätzen. Das helle Wohnzimmer bildet das Herzstück der Wohnung und bietet vielfältige Gestaltungsmöglichkeiten. Die separate Küche sowie ein praktischer Abstellraum sorgen für zusätzlichen Komfort im Alltag. Die Wohnung befindet sich in einer angenehmen Wohngegend im Linzer Süden.
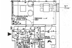
Raumaufteilung & Highlights
Raumaufteilung
- Wohnzimmer: 25,28 m²
- Schlafzimmer: 10,99 m²
- Küche: 8,50 m²
- Badezimmer: 4,41 m²
- WC: 1,48 m²
- Vorraum: 4,85 m²
- Abstellraum: 1,60 m²
Gesamtwohnfläche: 56,71 m²
Highlights
- Großzügiges Wohnzimmer mit viel Gestaltungsspielraum
- Praktische Raumaufteilung
- Separate Küche
- Abstellraum für zusätzlichen Stauraum
- Ruhige Wohnlage
- Ideal für Singles oder Paare
Mietkondition
- Monatliche Miete inkl. Betriebskosten und MwSt.: € 628,51
- Miete für die Tiefgarage inkl. MwSt.: € 85,40
- Kaution / Baukostenzuschuss: 2.698,82 €
Verfügbarkeit
Die Wohnung steht 01.05.2026 zur Verfügung.
Sie sind an weiteren Wohnungs- bzw. Gewerbeangeboten interessiert? Ein vielfältiges Angebot finden Sie auf unserer Website.
Zur WAG-Immobiliensuche: SUCHE
Zur WAG-Wohnungsanmeldung: Wohnungsanmeldung
Gerne beraten wir Sie persönlich über unser vielfältiges Angebot, rufen Sie uns einfach an! Und das natürlich ohne Vermittlungsgebühren und provisionsfrei!
Angaben sind ohne Gewähr auf Richtigkeit und Vollständigkeit. Druckfehler vorbehalten.
Infrastruktur / Entfernungen
Gesundheit
Arzt <275m
Apotheke <275m
Krankenhaus <5.325m
Klinik <3.000m
Kinder & Schulen
Kindergarten <25m
Schule <650m
Universität <6.300m
Höhere Schule <7.600m
Nahversorgung
Supermarkt <275m
Bäckerei <950m
Einkaufszentrum <4.325m
Sonstige
Bank <900m
Geldautomat <1.600m
Post <2.225m
Polizei <2.175m
Verkehr
Bus <225m
Straßenbahn <225m
Bahnhof <1.150m
Autobahnanschluss <3.200m
Flughafen <6.150m
Angaben Entfernung Luftlinie / Quelle: OpenStreetMap
Eckdaten
| Gesamtmiete: | 713,91 € |
| Fläche: | 56,71 m² |
| Zimmer: | 2 |
Basisdaten zur Immobilie
| Objektnr: | 6650/27060 |
| Art: | Wohnung |
| Land: | Österreich |
| Zustand: | Gepflegt |
| Gesamtmiete: | 713,91 € |
| Kaltmiete (netto): | 447,74 € |
| Kaltmiete: | 656,79 € |
| Betriebskosten: | 208,94 € |
| MwSt Gesamt: | 57,12 € |
| Wohnfläche: | 56,71 m² |
| Zimmer: | 2 |
| Bäder: | 1 |
| WC: | 1 |
| Heizwärmebedarf: | C 58,00 kWh/m²a |
| fGEE: | C 1,06 |
Ausstattung
Fliesen, Parkett, Zentralheizung, Personenaufzug, Bad mit Fenster, Badewanne, Kabel/Satelliten-TV, Tiefgarage, Wasch/Trockenraum
Internet und TV
Information zur Internet und TV Versorgung hier
Ihre persönliche Beratung
Team Vermietung 3
WAG Wohnungsanlagen Gesellschaft m.b.H.
team.vermietung3@wag.at
+43 (0)50 338 6010
