Apostelhof | 3 Zimmer | Obergeschoss | Balkon | Helle Eigentumswohnung mit zentralem Wohnbereich
Wohnung
- Etage,
1030
Wien
,
Apostelgasse
Lage der Immobilie
Der Apostelhof liegt im begehrten 3. Wiener Gemeindebezirk und vereint zentrale Stadtlage mit hoher Wohnqualität. Einkaufsmöglichkeiten, Gastronomie, Schulen und öffentliche Verkehrsmittel befinden sich in unmittelbarer Nähe. Der Rochusmarkt, die Landstraßer Hauptstraße sowie Erholungsräume wie Stadtpark und Prater sind schnell erreichbar. Die ausgezeichnete Verkehrsanbindung ermöglicht kurze Wege in die Innenstadt und zum Flughafen.Beschreibung der Immobilie
Luxuriöses Wohnen mit Geschichte – Apostelhof, 1030 Wien
Im Herzen des 3. Wiener Gemeindebezirks befindet sich der Apostelhof, ein stilvolles Ensemble aus dem Jahr 1899, das aktuell umfassend revitalisiert und durch einen hochwertigen Neubau ergänzt wird. In diesem außergewöhnlichen Projekt entstehen exklusive Wohnungen, die historischen Charakter mit zeitgemäßem Wohnkomfort vereinen.
Die Liegenschaft gliedert sich in vier architektonisch unterschiedliche Gebäudetrakte: den sorgfältig revitalisierten Altbestand mit Straßentrakt und zwei Stiegen, einen charmanten Hoftrakt mit klassischer Backsteinfassade sowie einen modernen Neubautrakt im Innenhof. Diese Vielfalt schafft ein hohes Maß an Individualität und architektonischem Reiz.
Alle Gebäudeteile werden mit großer Sorgfalt erneuert und überzeugen durch hochwertige Ausstattung, moderne Grundrisse und ein stimmiges Zusammenspiel von Tradition und zeitgenössischer Architektur. Das Wohnungsangebot reicht von kompakten Ein-Zimmer-Apartments bis hin zu großzügigen Dachgeschoss- und Penthousewohnungen mit Terrassen und beeindruckendem Stadtblick. Teilweise verfügen die Einheiten über attraktive Freiflächen.
Der Apostelhof bietet eine seltene Gelegenheit, eine stilvolle Immobilie in einer der begehrtesten Wohnlagen Wiens zu erwerben – urban, hochwertig und mit unverwechselbarem Charakter.
Infrastruktur / Entfernungen
Gesundheit
Arzt <250m
Apotheke <500m
Klinik <500m
Krankenhaus <500m
Kinder & Schulen
Schule <250m
Kindergarten <250m
Universität <1.000m
Höhere Schule <250m
Nahversorgung
Supermarkt <250m
Bäckerei <250m
Einkaufszentrum <250m
Sonstige
Geldautomat <250m
Bank <250m
Post <500m
Polizei <500m
Verkehr
Bus <250m
U-Bahn <250m
Straßenbahn <750m
Bahnhof <250m
Autobahnanschluss <1.250m
Angaben Entfernung Luftlinie / Quelle: OpenStreetMap
Eckdaten
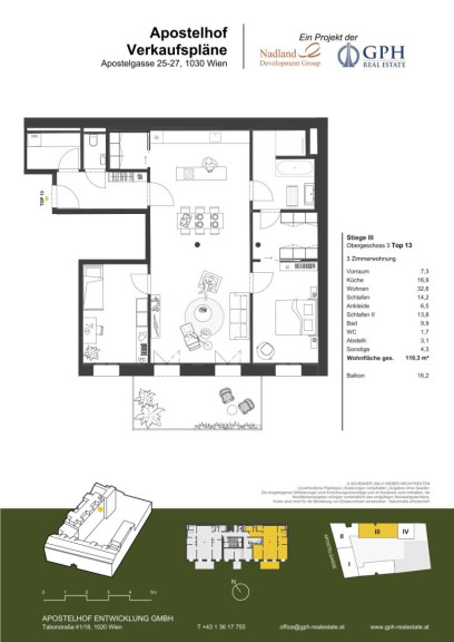
| Kaufpreis: | 1.066.790,00 € |
| Fläche: | 110,30 m² |
| Zimmer: | 3 |
Basisdaten zur Immobilie
| Objektnr: | 4724/11859 |
| Art: | Wohnung - Etage |
| Land: | Österreich |
| Baujahr: | 1899 |
| Zustand: | Erstbezug |
| Kaufpreis: | 1.066.790,00 € |
| Provision: | 3% zuzüglich Ust. |
| Wohnfläche: | 110,30 m² |
| Zimmer: | 3 |
| Bäder: | 1 |
| WC: | 1 |
| Balkone: | 1 |
| Heizwärmebedarf: | B 23,77 kWh/m²a |
| fGEE: | A+ 0,57 |
Ausstattung
Fliesen, Parkett, Personenaufzug, Kabel/Satelliten-TV
Internet und TV
Information zur Internet und TV Versorgung hier
Ihre persönliche Beratung
Team Eigentum
OPTIN Immobilien GmbH
eigentum@optin.at
0676847772206
0676847772207
