Hoch hinaus: 2,5 Zimmer, 21. OG, Loggia, Kellerabteil, 3-Zimmer-Ausbauoption möglich |MISCHEK TOWER
Wohnung
- Etage,
1220
Wien
Lage der Immobilie
Die Liegenschaft befindet sich in der Leonard-Bernstein-Straße 8 im 22. Bezirk (Kaisermühlen) und überzeugt durch ihre ausgezeichnete Infrastruktur sowie die Nähe zu beliebten Naherholungsgebieten. Unweit des Erholungsgebietes Donaupark und der Alten Donau gelegen, bietet der Standort zahlreiche Freizeit- und Sportmöglichkeiten sowie hohe Lebensqualität. Die Nahversorgung ist sehr gut: Supermärkte, Bäckereien, Banken, Post sowie medizinische Einrichtungen befinden sich in unmittelbarer Umgebung. Schulen und Kindergärten sind ebenfalls rasch erreichbar. Die öffentliche Verkehrsanbindung ist hervorragend (U1 Kaisermühlen-VIC; 20A Wallenberggasse; 92A Schüttaustraße in fußläufiger Distanz), ebenso besteht eine gute Anbindung an das übergeordnete Straßennetz. Die Kombination aus urbaner Infrastruktur und Grün- bzw. Wasserflächen macht diesen Standort besonders attraktiv. Donau City, Vienna International Centre, Austria Center, Kaisermühlen VICBeschreibung der Immobilie
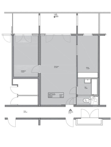
Die Wohnung verfügt über eine Wohnfläche von ca. 63,64 m² sowie eine großzügige Loggia mit ca. 22,81 m², die von jedem Raum begangen werden kann, und bietet somit ein besonderes Wohngefühl über den Dächern der Stadt. Durch die südseitige Ausrichtung genießen Sie helle Räume und eine freundliche Wohnatmosphäre.
Der Grundriss gliedert sich in einen großzügigen Wohnraum (ca. 33,13 m²), ein Schlafzimmer (ca. 13,40 m²), eine separate Küche (ca. 11,29 m²), ein Badezimmer mit Badewanne sowie ein separates WC.
Unter den Bildern befinden sich einerseits Fotos und der Grundriss des Ist-Zustandes, sowie zwei alternative Grundriss-Varianten samt Visualisierungen, die zusätzliche Gestaltungsmöglichkeiten aufzeigen. Die alternativen Grundrisse zeigen die Wohnung als 3-Zimmer-Wohnung.
Die Wohnung wird inklusive Küche und Badezimmöblierung übergeben.
Infrastruktur / Entfernungen
Gesundheit
Arzt <1.000m
Apotheke <500m
Klinik <1.500m
Krankenhaus <2.500m
Kinder & Schulen
Schule <500m
Kindergarten <500m
Universität <2.000m
Höhere Schule <2.500m
Nahversorgung
Supermarkt <500m
Bäckerei <500m
Einkaufszentrum <2.000m
Sonstige
Geldautomat <500m
Bank <500m
Post <500m
Polizei <1.000m
Verkehr
Bus <500m
U-Bahn <500m
Straßenbahn <1.500m
Bahnhof <500m
Autobahnanschluss <500m
Angaben Entfernung Luftlinie / Quelle: OpenStreetMap
Eckdaten
| Kaufpreis: | 425.000,00 € |
| Fläche: | 63,64 m² |
| Zimmer: | 2,50 |
Basisdaten zur Immobilie
| Objektnr: | 4724/11806 |
| Art: | Wohnung - Etage |
| Land: | Österreich |
| Baujahr: | 2000 |
| Zustand: | Gepflegt |
| Kaufpreis: | 425.000,00 € |
| Provision: | 3% zuzüglich Ust. |
| Wohnfläche: | 63,64 m² |
| Zimmer: | 2,50 |
| Bäder: | 1 |
| WC: | 1 |
| Heizwärmebedarf: | B 36,70 kWh/m²a |
| fGEE: | C 1,22 |
Ausstattung
Fernwärme, Einbauküche, Personenaufzug, Südbalkon, Badewanne, Wachdienst, Wasch/Trockenraum
Internet und TV
Information zur Internet und TV Versorgung hier
Ihre persönliche Beratung
Caroline Asen
OPTIN Immobilien GmbH
caroline.asen@optin.at
+43 1 934 69 60 206
+43 676 84 777 2206
