1230 Wien Neubau/Erstbezug | Top 17 | 2-Zimmer + Loggia | Anleger € 298.165 netto | Eigennutzer € 325.000
Wohnung
,
1230
Wien
Beschreibung der Immobilie
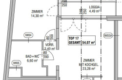
Top 17 – 2-Zimmer-Neubauwohnung im Erstbezug
Diese Wohnung bietet ca. 49,48 m² Wohnfläche plus Loggia (ca. 4,49 m²) und befindet sich im 2. Stock.
Ausstattung
• Fußbodenheizung mit integrierter Kühlfunktion
• Luft-Wärmepumpe mit unterstützender Photovoltaikanlage
• Lift
• Glasfaseranschluss
• Waschmaschinenanschluss in der Wohnung
Preise Top 17
• Anlegerpreis: € 298.165,- netto zzgl. 20 % USt (bei Vorsteuerabzug)
• Eigennutzerpreis: € 325.000,- brutto
Lage / Infrastruktur
-
Bus 62A: ca. 67 m, 1 Min. zu Fuß
-
Bus 60A: ca. 230 m
-
Bahnhof Liesing: ca. 4 Min. mit dem Bus
-
Bahnhof Atzgersdorf: ca. 2 Min. mit dem Bus
-
Wien Meidling: ca. 16 Min. öffentlich
-
Wien Hauptbahnhof: ca. 21 Min. öffentlich
Nahversorgung
-
Müller: ca. 120 m, 1 Min. zu Fuß
-
Lidl: ca. 130 m, 1 Min. zu Fuß
-
Konditorei: ca. 140 m, 2 Min. zu Fuß
-
Fitnessstudio: ca. 140 m, 2 Min. zu Fuß
Freizeit / Wohnqualität
-
Liesing-Flussweg: ca. 3 Min.
-
wunderschöne Spazier- und Laufmöglichkeit
-
Erholung im Grünen direkt in der Nähe
Gut für Anleger & Eigennutzer
-
sehr gute Öffi-Anbindung
-
starke Nahversorgung
-
gute Alltagstauglichkeit
-
hohe Wohn- und Lebensqualität
-
attraktive Vermietbarkeit
Noch nichts gefunden? Wir informieren Sie über geeignete Immobilienangebote noch vor allen anderen.
Legen Sie jetzt Ihren individuellen Suchagenten unter folgendem Link an. Wir schicken Ihnen passende Immobilien exklusiv vorab zu.
Suchagent anlegen - https://remax-vital.service.immo/registrieren/de
Wir weisen darauf hin, dass zwischen dem Vermittler und dem zu vermittelnden Dritten ein familiäres oder wirtschaftliches Naheverhältnis besteht.
Der Vermittler ist als Doppelmakler tätig.
Infrastruktur / Entfernungen
Gesundheit
Arzt <1.000m
Apotheke <500m
Klinik <1.000m
Krankenhaus <2.500m
Kinder & Schulen
Schule <500m
Kindergarten <500m
Universität <5.500m
Höhere Schule <5.500m
Nahversorgung
Supermarkt <500m
Bäckerei <500m
Einkaufszentrum <1.500m
Sonstige
Geldautomat <1.000m
Bank <1.000m
Post <1.000m
Polizei <1.000m
Verkehr
Bus <500m
U-Bahn <2.000m
Straßenbahn <2.000m
Bahnhof <1.000m
Autobahnanschluss <3.000m
Angaben Entfernung Luftlinie / Quelle: OpenStreetMap
Eckdaten
| Kaufpreis: | 298.165,00 € |
| Fläche: | 49,48 m² |
| Zimmer: | 2 |
Basisdaten zur Immobilie
| Objektnr: | 2434/2194 |
| Art: | Wohnung |
| Land: | Österreich |
| Baujahr: | 2024 |
| Zustand: | Erstbezug |
| Alter: | Neubau |
| Kaufpreis: | 298.165,00 € |
| Provision: | 3% des Kaufpreises zzgl. 20% USt. |
| Betriebskosten: | 140,58 € |
| Sonstige Kosten: | 27,04 € |
| Wohnfläche: | 49,48 m² |
| Nutzfläche: | 54,07 m² |
| Gesamtfläche: | 54,07 m² |
| Zimmer: | 2 |
| Bäder: | 1 |
| WC: | 1 |
| Heizwärmebedarf: | B 32,20 kWh/m²a |
| fGEE: | A+ 0,63 |
Ausstattung
Parkett, Fliesen, Fußbodenheizung, Zentralheizung, Personenaufzug, Kabel/Satelliten-TV
Internet und TV
Information zur Internet und TV Versorgung hier
Ihre persönliche Beratung
Daniel KIS
RE/MAX Vital
d.kis@remax-vital.at
+43 1 70 70 900
+43 664 54 84 256
