Beschreibung der Immobilie
B R I G I T T A - L I V I N G
In sehr guter Wohnlage im 20.Bezirk - mit allen urbanen Vorzügen einer Großstadt - nahe dem Augarten und dem Donaukanal - wurde eine moderne Wohnhausanlage mit 38 Wohneinheiten und 5 Apartments zwischen 35m² und 102m² Wohnfläche errichtet. Die architektonisch ansprechende und moderne Fassdengestaltung des Hauses zeichnet sich durch zahlreiche Erkerausbildungen und anschließende Balkone aus. Der Großteil der Wohnungen verfügt über eine eigene Freifläche - Balkon | Loggia |Terrasse.
Die nahe gelegene Wallensteinstraße bietet - als Haupt-Einkaufstraße für den 20.Bezirk - mit sämtlichen Supermärkten und allen sonstigen Geschäften für den täglichen Bedarf die ideale Nahversorung. Auch der begehrte Hannover Markt ist rasch zu Fuß erreichbar und bietet herrliche und frische Produkte aus Österreich.
Der beliebte und riesige Augarten ist in nur 7 Gehmintuen zu erreichen und sorgt in mitten der Urbanität für ausgezeichnete Freizeit,- Sport- und Erholungsmöglichkeiten in der freien Natur.
Der in der Nähe gelegene Donaukanal ist ebenfalls eine sehr beliebte Freizeit- und Sportzone für Jung und Alt, wo in den Sommermonaten auch eine Vielzahl an trenigen Lokalen und Bars („Summer Stage“) geöffnet haben und Sie das Sommerfeeling genießen können.
In diesem Neubauprojekt werden hochwertge 2 Zimmer Apartments und 2-4 Zimmer Wohnungen im Eigentum neu errichtet.
Bodentiefe Verglasungen sorgen für viel Licht, Offenheit und eine sehr behagliche Wohnatmosphäre.
Die Wohnungen werden mit einer hochwertigen Ausstattung - Fußbodenheizung mit Luft-Wärme Pumpe (niedrige Energiekosten!), Alu-Kunststoff-Fenster mit 3fach-Verglasung, Holzdielen, Marken-Sanitärprodukte, innovativer Deckenkühlung, Video-Gegensprechanlage, uvm. schlüsselfertig ausgestattet.
Die Dachgeschoßwohnungen sind mit Klima und elekritischer Aussenbeschattung zusätzlich ausgestattet. Für die Wohnungen in den Regelgeschossen sind die Rollkästen für die Aussenbeschattung in der Fassade und die Elektrik vorbereitet. Aussenjalousien können als Extrawunsch ausgeführt werden.
14 Tiefgaragnplätze/ Duplex werden errichtet. Um Extrakosten von € 35.000 kann eine Garage erworben werden.
Fertigstellung: Herbst 2024
Perfekte öffentliche Anbindung
Straßenbahnstationen der Linien 5, 31 und 33 in 2-3 Gehminuten zu erreichen
U4 Friedensbrücke (2 Straßenbahnstationen mit 33er oder 5er)
U6 Jägerstraße (1Straßenbahnstation mit 33er)
Mit dem 31er direkt zum Schottenring (U4) - 5 Stationen
7 Minuten zu Fuß zum Augarten
Auf zahlreichen Radwegen sind Sie rasch überall hin unterwegs
Wir weisen darauf hin, dass zum Verkäufer aufgrund einer regelmäßigen Beauftragung mit Vermittlungsgeschäften ein wirtschaftliches Naheverhältnis besteht.
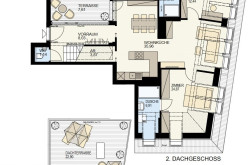
Top 36A - Elegante Dachterrassenwohnung + Garagenplatz gratis dabei!
großzügig und elegant präsentiert sich diese Dachwohnung im 2.DG - wunderschöne Wohnküche mit rd. 36m², viele Fensterflächen und Ausgang auf eine rd. 7,60m² Terrasse. Vom Vorraum gelangt man über eine Stiege auf die rd. 23m² Dachterrasse mit Fernblick. Viele Freiflächen zum Entspannen, Grillen und Sonnenbaden in der warmen Jahreszeit.
Die Wohnfläche befindet sich auf einer Ebene und verfügt die Wohnung über ein großzügiges rd. 25m² Schlafzimmer mit ensuite-Badezimmer mit Fenster, ein 2.Schlafzimmer mit eigenem Dusch/WC, einem hellen Vorraum mit Verglasung, sowie einen Abstellraum und ein separates WC mit Handwaschbecken.
Elegant ganz oben residieren und die Sonne genießen!
Der Anlegerpreis beträgt netto € 883.752 zzgl. 20% Ust.
AKTION: Jetzt ein Garagenplatz gratis dabei!
Wir weisen darauf hin, dass zwischen dem Vermittler und dem zu vermittelnden Dritten ein familiäres oder wirtschaftliches Naheverhältnis besteht.
Der Vermittler ist als Doppelmakler tätig.
Infrastruktur / Entfernungen
Gesundheit
Arzt <500m
Apotheke <500m
Klinik <1.000m
Krankenhaus <1.000m
Kinder & Schulen
Schule <500m
Kindergarten <500m
Universität <1.000m
Höhere Schule <1.000m
Nahversorgung
Supermarkt <500m
Bäckerei <500m
Einkaufszentrum <1.000m
Sonstige
Geldautomat <500m
Bank <500m
Post <500m
Polizei <500m
Verkehr
Bus <500m
U-Bahn <500m
Straßenbahn <500m
Bahnhof <500m
Autobahnanschluss <1.500m
Angaben Entfernung Luftlinie / Quelle: OpenStreetMap
Eckdaten
| Kaufpreis: | 960.600,00 € |
| Fläche: | 98,97 m² |
| Zimmer: | 3 |
Basisdaten zur Immobilie
| Objektnr: | 1676 |
| Art: | Wohnung |
| Land: | Österreich |
| Baujahr: | 2021 |
| Zustand: | Erstbezug |
| Alter: | Neubau |
| Kaufpreis: | 960.600,00 € |
| Kaufpreis / m²: | auf Anfrage |
| Provision: | 3% des Kaufpreises zzgl. 20% USt. |
| Wohnfläche: | 98,97 m² |
| Nutzfläche: | 129,48 m² |
| Zimmer: | 3 |
| Bäder: | 2 |
| WC: | 2 |
| Terrassen: | 2 |
| Keller: | 1,10 m² |
| Heizwärmebedarf: | B 27,60 kWh/m²a |
| fGEE: | A 0,75 |
Internet und TV
Information zur Internet und TV Versorgung hier
Ihre persönliche Beratung
Martin Steiner
M² STEINER IMMOBILIEN
steiner@m2steiner.at
+43 650 367 45 02
