Lage der Immobilie
Auf halbem Weg zwischen Mondsee und Attersee liegt dieses liebevoll restaurierte Landhaus in einem kleinen ruhigen Seitental in der Gemeinde Straß im Attergau. Abseits von Verkehr und Trubel, aber dennoch nur unweit vom Attersee und den nächst größeren Ortschaften wie bspw. St. Georgen mit entsprechender Infrastruktur entfernt. Der Attergau vereint Wohngenuss, Erholung, Sport, Geschichte und Kultur in einer wunderschönen Naturlandschaft. Über die nahe gelegene Autobahnanschluss-Stelle St. Georgen ist die Region direkt mit den Städten Linz und Salzburg verbunden, über die Lokalbahn besteht zudem eine öffentliche Verkehrsanbindung an die Westbahnstrecke Wien–Linz–Salzburg.Beschreibung der Immobilie
Viele können ein Haus einrichten,
aber nur wenige verstehen die Kunst ein Zuhause zu kreieren.
Auf halbem Weg zwischen Mondsee und Attersee liegt dieser Rückzugsort der Sinne in der Gemeinde Straß im Attergau. Bei der Restaurierung des ehemaligen "Sacherls" wurde viel Wert auf die Verwendung natürlicher Materialien gelegt und mit viel Liebe zum Detail eine neue Wohlfühloase geschaffen.
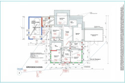
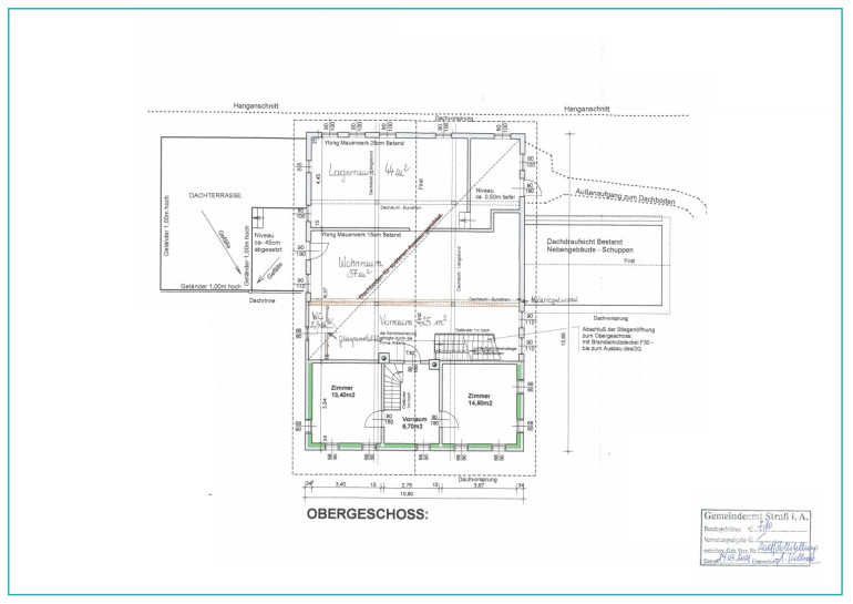
Im Erdgeschoß befindet sich ein gemütliches Wohnzimmer mit Kachelofen, eine Wohnküche, ein Badezimmer, der Weinkeller sowie Nebenräume wie Werkstatt, Lagerraum und Waschküche. Das Obergeschoß beherbergt zwei Schlafzimmer sowie ein großzügiges Wohn- und Arbeitszimmer. Über dieses gelangt man in einen baulich getrennten Bereich, in dem sich ein Büro/Bastelzimmer und ein weiterer großer Raum mit separatem, ebenerdigen Eingang befindet.
Der Garten ist ein Paradies für sich - zahlreiche Blumen und Sträucher bringen Farbe ins Spiel und neben einem kleinen Teich laden eine Feuerselle mit Sitzbereich sowie zwei "Salettl" zum Verweilen ein.
Lassen Sie den Alltag hinter sich, dieses Haus umarmt Sie mit allen Sinnen!
In fußläufiger Entfernung liegen die Haltestellen der Regionalbusverbindung St- Georgen - Mondsee und die Autobahnanschluss-Stelle St. Georgen erreichen Sie binnen weniger Minuten. St. Georgen mit entsprechender Infrastruktur (Apotheke, Ärzten, Kindergarten/Schulen, Geschäften des täglichen Bedarfs, Regionalbahn, …) liegt rund fünf Minuten entfernt.
Der Attergau vereint Wohngenuss, Erholung, Sport, Geschichte und Kultur in einer wunderschönen Naturlandschaft.
Grundstücksfläche:
- A = 1.682 m² (lt. Grundbuch)
Wohnfläche:
- A ~ 241,7 m² (lt. Plan)
Widmung:
- W - Wohngebiet
Heizung/Warmwasser:
- Holz-Stückgutheizung mit Pufferspeicher
- Fußbodenheizung | Deckenheizung | Radiatoren
Ausstattung:
- Einbauküche
- Kachelofen
- Weinkeller
- ...
Parkmöglichkeit:
- Garage
- Freistellplätze
Finanzierung und Versicherung:
- Unsere Kolleginnen und Kollegen der Raiffeisenbank Attersee-Süd stehen Ihnen für ein unverbindliches Beratungsgespräch sehr gerne zur Verfügung.
Unverbindliches, freibleibendes Angebot. Die Angaben erfolgen aufgrund von Informationen und Unterlagen vom Eigentümer und/oder von Dritten und sind ohne Gewähr. Irrtümer und Änderungen vorbehalten!
Noch nichts gefunden? Wir informieren Sie zeitnah über geeignete Immobilienangebote.
Legen Sie jetzt Ihren individuellen Suchagenten unter folgendem Link an. Wir schicken Ihnen passende Immobilien exklusiv vorab zu.
Suchagent anlegen
Der Vermittler ist als Doppelmakler tätig.
Infrastruktur / Entfernungen
Gesundheit
Arzt <3.500m
Klinik <4.000m
Apotheke <4.000m
Kinder & Schulen
Schule <500m
Kindergarten <3.500m
Nahversorgung
Supermarkt <4.000m
Bäckerei <3.500m
Sonstige
Bank <4.000m
Geldautomat <4.000m
Post <4.000m
Polizei <3.500m
Verkehr
Bus <500m
Bahnhof <4.000m
Autobahnanschluss <3.500m
Angaben Entfernung Luftlinie / Quelle: OpenStreetMap
Eckdaten
| Kaufpreis: | 1.350.000,00 € |
| Fläche: | 241,70 m² |
| Zimmer: | 9 |
Basisdaten zur Immobilie
| Objektnr: | 317 |
| Art: | Haus - Landhaus |
| Land: | Österreich |
| Zustand: | Teil_vollrenoviert |
| Möbliert: | Voll |
| Kaufpreis: | 1.350.000,00 € |
| Kaufpreis / m²: | auf Anfrage |
| Provision: | 3% des Kaufpreises zzgl. 20% USt. |
| Betriebskosten: | 67,00 € |
| Heizkosten: | 100,00 € |
| MwSt Gesamt: | 26,70 € |
| Wohnfläche: | 241,70 m² |
| Nutzfläche: | 280,40 m² |
| Grundstücksfl.: | 1.682,00 m² |
| Zimmer: | 9 |
| Bäder: | 1 |
| WC: | 2 |
| Terrassen: | 1 |
| Stellplätze: | 4 |
| Heizwärmebedarf: | D 103,00 kWh/m²a |
| fGEE: | C 1,70 |
Ausstattung
Dielenboden, Fliesen, Zentralheizung, Einbauküche, Bad mit Fenster, Badewanne, Dusche, Garage, Parkplatz, Wasch/Trockenraum
Internet und TV
Information zur Internet und TV Versorgung hier
Ihre persönliche Beratung
Mag. Jürgen Praher
Attersee Immobilien - Raiffeisenbank Attersee-Süd eGen
office@attersee-immo.at
+43 7666 82000 38908
+43 676 814238908
F +437666 82000 9 38908
Attersee Immobilien - Raiffeisenbank Attersee-Süd eGen
Dorfstraße 50, 4865 Nußdorf am Attersee
+43 7666 82000