10 Minuten zum Auhof Center! ERSTBEZUG! Doppelhaushälfte mit 170 m2 Wohnfläche in ruhiger Wohnlage mit Grünblick!
Haus
- Doppelhaushälfte,
3001
Mauerbach
Lage der Immobilie
Untermauerbach an der Grenze zum 14. Wiener BezirkBeschreibung der Immobilie
ERSTBEZUG, Doppelhaushälfte in Untermauerbach in absoluter Grünruhelage! 10 Minuten zum Auhof Center!
Sollten Sie einen Besichtigungstermin wünschen, ersuchen wir Sie, diesen ausschließlich telefonisch unter 0699 12 47 15 92 mit Herrn Bigus zu vereinbaren.
+ Ziegelmassivbauweise
+ 2 Parkplätzen vor der Tür
+ Fussbodenheizung mittels effizienter Vaillant Erdwärmepumpe
+ Fussbodenkühlung mittels Erdwärmepumpe
+ Inklusive Küche, Badezimmerausstattung und Zentralstaubsauger
+ 5 Zimmer, 170,19 m² Wohnnutzfläche, 22,43 m² Terrasse, 13,80 m2 Balkon, Haus A mit 135,53 m² Garten bzw. Haus B mit 133,70 m² Garten
+ bereits fertiggestellt und sofort bezugsbereit!
Vermietet wird eine Doppelhaushälfte in Ziegelmassivbauweisein Untermauerbach welche neu errichtet wurde. Das Haus verfügt über 5 Zimmer und die Wohnfläche beläuft sich auf 170,19 m2 aufgeteilt auf drei Geschosse. Der Garten ist 133,70 m2 groß. Das Haus ist bereits fertiggestellt und kann sofort bezogen werden.
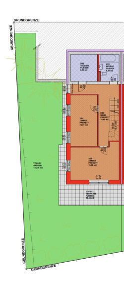
Das Haus teilt sich wie folgt auf:
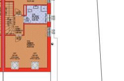
Erdgeschoß mit 49,46 m2:
- ein großzügiger Eingangsbereich
- eine 35 m2 große Wohnküche mit Ausgang zum 13,80 m2 großen Balkon
- ein separate Toilette mit Handwaschbecken und Fenster
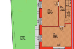
Im 72,21 m2 großen Untergeschoss:
- ein geräumiger Flur von dem aus alle Räume separat begehbar sind
- ein 19,58 m2 großes, helles Schlafzimmer mit Zugang zur 22,43 m2 großen Terrasse und 133,70 m2 großen Garten
- ein weiteres zirka 16,31 m2 großes Schlafzimmer
- ein geräumiges Badezimmer mit Badewanne und Toilette
- ein Technikraum
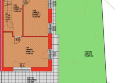
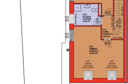
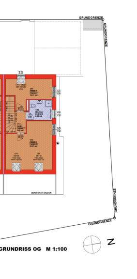
Im 48,82 m2 großen Obergeschoss:
- ein 13,31 m2 Arbeits- oder Schlafzimmer
- ein geräumiges Badezimmer mit Dusche und Toilette
- ein 25,95 m2 großes Schlafzimmer
Es sind 2 Autoabstellplätze vorhanden. Die Beheizung und Kühlung erfolgt über eine Fußbodenheizung bzw. Fussbodenkühlung mit einer effizienten Erdwärmepumpe von Vaillant. Ein 375 Liter Warmwasserspeicher ist installiert.
Infrastruktur:
Die Lage des Hauses ist als absolute Ruhelage in einer Wohnsiedlung zu bezeichnen. Der nächstgelegene Bahnhof befindet sich 4,5 km entfernt und ist der Bahnhof Hadersdorf ( Schnellbahn 50) im 14. Wiener Gemeindebezirk. Supermärkte, Billa und Spar befindet sich auf der Hauptstraße in Mauerbach. Der nächstgelegene Kindergarten und die Volksschule sowie die nächste Apotheke befinden sich ebenfalls in Mauerbach, 4 Autominuten entfernt. Das Einkaufszentrum Auhof und die A1 Westautobahn ist in 10 Autominuten erreichbar.
Öffentliche Verkehrsmittel: Bus 450, Bus 458, Bahnhof Hadersdorf in 4,5 km erreichbar, Schnellbahn S50 Richtung U4 Hütteldorf, U3, U6 Westbahnhof
Kosten & Dauer:
Hauptmiete inkl. Betriebskosten und Ust: 2.390,30,- Euro pro Monat
Heizkosten und Stromkosten nach Verbrauch!
Kaution: 10.000 Euro
Das Haus wird auf 5 Jahre befristet mit Verlängerungsoption vermietet.
Verfügbar AB SOFORT!
Verfügbare Einheiten:
Haus 5A: 170,19 m² Wohnnutzfläche, 22,43 m² Terrasse, 13,80 m2 Balkon, 135,53 m² Garten
Haus 5B: 170,19 m² Wohnnutzfläche, 22,43 m² Terrasse, 13,80 m2 Balkon, 133,70 m² Garten - RESERVIERT
Haus 3A: 189,07 m² Wohnnutzfläche, 27,51m² Terrasse, 12,50 m2 Balkon, 80,87 m² Garten
Kontakt und Besichtigungstermine
Sollten Sie einen Besichtigungstermin wünschen, ersuchen wir Sie, diesen ausschließlich telefonisch unter 0699 12 47 15 92 mit Herrn Bigus zu vereinbaren.
Der Immobilienmakler erklärt, dass er – entgegen dem in der Immobilienwirtschaft üblichen Geschäftsgebrauch des Doppelmaklers – einseitig nur für den Vermieter tätig ist.
Infrastruktur / Entfernungen
Gesundheit
Arzt <1.000m
Apotheke <1.000m
Klinik <8.000m
Krankenhaus <7.000m
Kinder & Schulen
Schule <3.500m
Kindergarten <3.500m
Universität <4.500m
Höhere Schule <10.000m
Nahversorgung
Supermarkt <1.000m
Bäckerei <2.500m
Einkaufszentrum <4.500m
Sonstige
Geldautomat <2.000m
Bank <2.000m
Post <2.500m
Polizei <1.000m
Verkehr
Bus <500m
Straßenbahn <6.500m
U-Bahn <7.000m
Bahnhof <4.000m
Autobahnanschluss <4.500m
Angaben Entfernung Luftlinie / Quelle: OpenStreetMap
Eckdaten
| Gesamtmiete: | 2.390,30 € |
| Fläche: | 170,19 m² |
| Zimmer: | 5 |
Basisdaten zur Immobilie
| Objektnr: | 5571 |
| Art: | Haus - Doppelhaushälfte |
| Land: | Österreich |
| Baujahr: | 2022 |
| Zustand: | Erstbezug |
| Alter: | Neubau |
| Gesamtmiete: | 2.390,30 € |
| Kaltmiete (netto): | 2.003,00 € |
| Kaltmiete: | 2.173,00 € |
| Provision: | Gemäß Erstauftraggeberprinzip bezahlt der Abgeber die Provision. |
| Betriebskosten: | 170,00 € |
| MwSt Gesamt: | 217,30 € |
| Wohnfläche: | 170,19 m² |
| Zimmer: | 5 |
| Bäder: | 2 |
| WC: | 3 |
| Balkone: | 1 |
| Terrassen: | 1 |
| Stellplätze: | 2 |
| Garten: | 133,70 m² |
| Heizwärmebedarf: | B 36,50 kWh/m²a |
| fGEE: | A+ 0,70 |
Ausstattung
Fliesen, Parkett, Erdwärme, Fußbodenheizung, Wohnküche / offene Küche, Bad mit Fenster, Badewanne, Dusche, Parkplatz, Wasch/Trockenraum
Internet und TV
Information zur Internet und TV Versorgung hier
Ihre persönliche Beratung
Peter Bigus
Immobilienquartier
bigus@immobilienquartier.at
+43699 124 715 92
