Günstige Gelegenheit: Großzügige Eigentumswohnung in grüner Lage!
Wohnung
,
8793
Trofaiach
,
Glögglhofgasse 23
Lage der Immobilie
Diese charmante Wohnung besticht durch ihre ideale Lage. In unmittelbarer Nähe finden Sie alles, was das Herz begehrt: Ärztepraxen, Apotheken, Schulen und Kindergärten sind ebenso schnell erreichbar wie Supermärkte, Bäckereien und Banken. Der nahegelegene Radweg lädt zu sportlichen Aktivitäten ein, während das Stadtzentrum für abwechslungsreiche Freizeitmöglichkeiten sorgt. Eine perfekte Kombination aus urbanem Leben und naturnaher Erholung!Beschreibung der Immobilie
Trofaiach / Glögglhofgasse 23 / Top 3
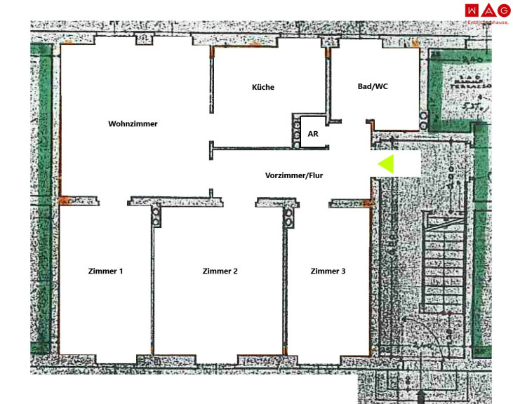
Angeboten wird eine großzügige, leistbare und gut aufgeteilte Eigentumswohnung in schöner Grünlage mit vier Zimmern auf rund 73m² großer Wohnfläche!
Die Wohnung befindet sich in einem sanierungsbedürftigen Zustand, bietet aber eine sehr gute Ausgangsbasis.
Die Wohnfläche teilt sich wie folgt auf:
- Vorzimmer inkl. Abstellraum
- Küche
- Wohnzimmer
- 3 Schlafräume/Zimmer
- Badezimmer mit Dusche, Tageslichtfenster und WC
Die Wohnung befindet sich in einer kleinen Eigentümergemeinschaft mit nur 12 Wohneinheiten. Der Wohnung ist ein Kellerabteil mit rund 10,5m² und ein Dachbodenabteil mit rund 16,5m² zugeordnet. Auf Wunsch kann optional ein Garten oder auch ein Kfz-Abstellplatz angemietet werden.
- Preiswerte/leistbare Eigentumswohnung
- Niedrige Nebenkosten
- Provisionsfrei
- Großzügiger Grundriss mit 4 Zimmern
- Günstige Anmietung von einem Garten möglich
- Schöne zentrumsnahe Lage
- Warmwasseraufbereitung mit Boiler
- Heizung mit Fernwärme
Provisionsfreier Kaufpreis : € 69.900,- exkl. Nebenkosten.
Monatliche Betriebskosten inkl. USt.: € 149,71
Monatliche Verwaltungskosten inkl. USt.: € 33,76
Monatliche Instandhaltungsrücklage € 77,49
Einmalige Kaufnebenkosten: Gesetzliche Gebühren, Vertragserrichtungskosten (€ 2.160,00) und Verwaltungskosten bzw. die Kosten des Treuhänders.
Lage: Die Wohnung befindet sich in einer hübschen, ruhigen Siedlung mit weitläufigen Grünanlagen unweit vom Stadtzentrum Trofaiach mit zahlreichen Einkaufsmöglichkeiten und Freizeitmöglichkeiten.
Sie sind an weiteren Wohnungs- bzw. Gewerbeangeboten interessiert? Ein vielfältiges Angebot finden Sie auf unserer Website.
Zur WAG-Immobiliensuche: SUCHE
Zur WAG-Wohnungsanmeldung: Wohnungsanmeldung
Gerne beraten wir Sie persönlich über unser vielfältiges Angebot, rufen Sie uns einfach an! Und das natürlich ohne Vermittlungsgebühren und provisionsfrei!
Angaben sind ohne Gewähr auf Richtigkeit und Vollständigkeit. Druckfehler vorbehalten.
Infrastruktur / Entfernungen
Gesundheit
Arzt <250m
Apotheke <500m
Krankenhaus <8.350m
Kinder & Schulen
Schule <375m
Universität <8.375m
Kindergarten <700m
Höhere Schule <8.500m
Nahversorgung
Supermarkt <450m
Bäckerei <650m
Einkaufszentrum <8.825m
Sonstige
Geldautomat <525m
Bank <525m
Post <575m
Polizei <650m
Verkehr
Bus <125m
Autobahnanschluss <6.875m
Bahnhof <6.200m
Flughafen <6.350m
Angaben Entfernung Luftlinie / Quelle: OpenStreetMap
Eckdaten
| Kaufpreis: | 69.900,00 € |
| Fläche: | 72,94 m² |
| Zimmer: | 4 |
Basisdaten zur Immobilie
| Objektnr: | 6650/27699 |
| Art: | Wohnung |
| Land: | Österreich |
| Baujahr: | 1943 |
| Zustand: | Sanierungsbeduerftig |
| Kaufpreis: | 69.900,00 € |
| Provision: | PROVISIONSFREI! |
| Betriebskosten: | 166,79 € |
| MwSt Gesamt: | 16,68 € |
| Wohnfläche: | 72,94 m² |
| Zimmer: | 4 |
| Bäder: | 1 |
| Keller: | 10,76 m² |
| Heizwärmebedarf: | C 87,80 kWh/m²a |
| fGEE: | C 1,33 |
Ausstattung
Fernwärme, Bad mit Fenster, Dusche, Kabel/Satelliten-TV
Internet und TV
Information zur Internet und TV Versorgung hier
Ihre persönliche Beratung
Team WAG Hochsteiermark
WAG Wohnungsanlagen Gesellschaft m.b.H.
richard.neuffer@wag.at
+43 50 3387688
+43 664 9672157
