Lage der Immobilie
Das Objekt ist ideal gelegen, nur wenige Minuten zu der U2-Station Aspernstraße sowie der Buslinie 26A. Mit den öffentlichen Verkehrsmitteln gelangt man in knapp 15 Minuten ins Stadtzentrum. Zur Erholung dient die nahgelegene Donauinsel sowie die Alte Donau. Nahversorger, Apotheken, Ärzte, Restaurants und weitere Annehmlichkeiten befinden sich in fußläufiger Entfernung.Beschreibung der Immobilie
Die zu verkaufende Liegenschaft ist etwas ganz Besonderes!
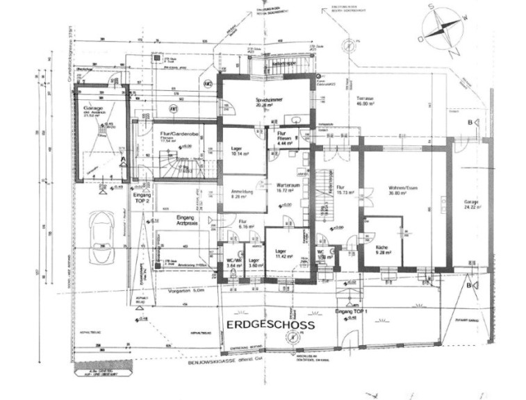
Haus
Im Moment ist das Haus in einem renovierungsbedürftigen Zustand. Es gibt einen großen Wohnbereich und eine abgeschlossene Küche.
Sowohl vom Wohnzimmer als auch vom Vorzimmer aus erreichen Sie den Garten und die Terrasse mit Grillplatz.
Im Obergeschoß befinden sich drei Schlafzimmer und ein Bad.
Der Keller verfügt über einige Abstellräume und de Heizraum
Es existieren Pläne für den Umbau des Hauses und die Umgestaltung in vier Wohnungen.
Man hat bereits begonnen, das Haus zu entkernen.
Wenn Sie Interesse haben, rufen Sie mich einfach an und wir vereinbaren einen Besichtigungstermin!
Noch nichts gefunden? Wir suchen gerne die passende Immobilie für sie und informieren Sie über geeignete Immobilienangebote noch vor allen anderen.
Legen Sie jetzt Ihren individuellen Suchagenten unter folgendem Link an. Wir schicken Ihnen passende Immobilien exklusiv vorab zu ihr Denich Real Immobilienservice
Suchagent anlegen
Der Vermittler ist als Doppelmakler tätig.
Infrastruktur / Entfernungen
Gesundheit
Arzt <500m
Apotheke <500m
Klinik <1.500m
Krankenhaus <2.000m
Kinder & Schulen
Schule <500m
Kindergarten <500m
Universität <2.000m
Höhere Schule <2.000m
Nahversorgung
Supermarkt <500m
Bäckerei <500m
Einkaufszentrum <3.500m
Sonstige
Geldautomat <500m
Bank <500m
Post <1.500m
Polizei <1.000m
Verkehr
Bus <500m
U-Bahn <1.500m
Straßenbahn <500m
Bahnhof <1.500m
Autobahnanschluss <3.000m
Angaben Entfernung Luftlinie / Quelle: OpenStreetMap
Eckdaten
| Kaufpreis: | 499.000,00 € |
| Fläche: | 160,00 m² |
| Zimmer: | 5 |
Basisdaten zur Immobilie
| Objektnr: | 1480 |
| Art: | Haus - Ferienhaus |
| Land: | Österreich |
| Zustand: | Sanierungsbeduerftig |
| Alter: | Neubau |
| Kaufpreis: | 499.000,00 € |
| Wohnfläche: | 160,00 m² |
| Nutzfläche: | 260,00 m² |
| Grundstücksfl.: | 480,00 m² |
| Zimmer: | 5 |
| Bäder: | 1 |
| WC: | 2 |
| Terrassen: | 1 |
| Stellplätze: | 1 |
| Garten: | 300,00 m² |
| Keller: | 65,00 m² |
Ausstattung
Parkett, Fliesen, Öl, Etagenheizung, Einbauküche, Wohnküche / offene Küche, Westbalkon, Bad mit Fenster, Dusche, Garage, Parkplatz
Internet und TV
Information zur Internet und TV Versorgung hier
Ihre persönliche Beratung
Martina Denich-Kobula
DENICH-REAL Immobilien GmbH
md@denich-real.at
+43 664 4609630
+43 664 4609630
