Josef-Kutscha-Gasse - 2 Zimmer DG mit 7,66m2 Terrasse
Wohnung
,
1230
Wien
Beschreibung der Immobilie
1230 Wien Josef-Kutscha-Gasse,
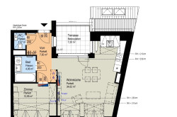
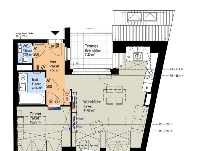
vermietet wird eine helle 60,50m2 große 2 Zimmer DG Wohnung (mit Klimaanlage) mit 7,20m2 großer Terrasse,
die Wohnung kann ab sofort bezogen werden,
Wohnzimmer mit offener Einbauküche, Schlafzimmer, Vorraum,
Bad mit Wanne und WC,
Fernwärme,
das Objekt liegt im 23. Wiener Gemeindebezirk nahe des Schlosses Liesing,
ein individueller Besichtigungstermin ist kurzfristig möglich,
Mietdauer: 5 Jahre,
BMM: € 1.095,00 (inkl. BK und 10% USt.)
Nebenkosten bei Anmietung:
Kaution: € 3.285,00
Errichtungsgebühr für den Mietvertag: € 300,00 (inkl. 20% USt.)
Der Immobilienmakler erklärt, dass er – entgegen dem in der Immobilienwirtschaft üblichen Geschäftsgebrauch des Doppelmaklers – einseitig nur für den Vermieter tätig ist.
Infrastruktur / Entfernungen
Gesundheit
Arzt <500m
Apotheke <500m
Klinik <1.000m
Krankenhaus <2.500m
Kinder & Schulen
Schule <500m
Kindergarten <500m
Universität <6.000m
Höhere Schule <6.500m
Nahversorgung
Supermarkt <500m
Bäckerei <500m
Einkaufszentrum <500m
Sonstige
Geldautomat <500m
Bank <500m
Post <1.000m
Polizei <500m
Verkehr
Bus <500m
U-Bahn <2.500m
Straßenbahn <1.000m
Bahnhof <1.000m
Autobahnanschluss <2.500m
Angaben Entfernung Luftlinie / Quelle: OpenStreetMap
Eckdaten
| Gesamtmiete: | 1.095,00 € |
| Fläche: | 60,50 m² |
| Zimmer: | 2 |
Basisdaten zur Immobilie
| Objektnr: | 6876/1650 |
| Art: | Wohnung |
| Land: | Österreich |
| Alter: | Neubau |
| Gesamtmiete: | 1.095,00 € |
| Kaltmiete (netto): | 839,03 € |
| Kaltmiete: | 993,18 € |
| Provision: | Gemäß Erstauftraggeberprinzip bezahlt der Abgeber die Provision. |
| Betriebskosten: | 129,15 € |
| MwSt Gesamt: | 101,82 € |
| Wohnfläche: | 60,50 m² |
| Nutzfläche: | 60,50 m² |
| Gesamtfläche: | 60,50 m² |
| Zimmer: | 2 |
| Bäder: | 1 |
| WC: | 1 |
| Terrassen: | 1 |
| Heizwärmebedarf: | B 30,81 kWh/m²a |
| fGEE: | A 0,75 |
Ausstattung
Parkett, Fliesen, Fernwärme, Wohnküche / offene Küche, Badewanne
Internet und TV
Information zur Internet und TV Versorgung hier
Ihre persönliche Beratung
Michelle Gnadenberger
BRI Immobilienmakler GmbH
mg@brichard.at
+43 676 7043377
