Lage der Immobilie
U6 - PerfekterstraßeBeschreibung der Immobilie
-
PROJEKT:
In der Nähe der U6-Station Perfektastraße im 23. Bezirk stehen ab sofort drei hochwertige Reihenhäuser zum Verkauf.
Die Häuser bieten 5-6 Zimmer, zwei Terrassen, eigene PKW-Stellplätze sowie private Gärten.
Es handelt sich um Eigentum – kein Pacht- oder Baurecht.
Die Wohnflächen liegen zwischen 122 m² und 133 m² und bieten reichlich Platz für die ganze Familie sowie Homeoffice.
Modernste Ausstattung und zukunftsorientiertes Design machen diese Häuser zur perfekten Wahl.
Die Heizung im Winter sowie die Kühlung im Sommer erfolgen über den Fußboden mittels einer eigenen Luftwärmepumpe.
- PHOTOVOLTAIK:
Im Kaufpreis ist eine Photovoltaikanlage (5 kWp am Dach inklusive Wechselrichter) bereits enthalten.
In Kombination mit einer energieeffizienten Luft-Wärmepumpe, die über die Fußboden sowohl heizen als auch kühlen kann, können die laufenden Energiekosten nachhaltig und deutlich reduziert werden.
Bei entsprechender technischer Ausstattung (z. B. Batteriespeicher mit Notstromfunktion) kann die Anlage auch bei einem Blackout eine eingeschränkte Stromversorgung gewährleisten und sorgt somit für ein zusätzliches Maß an Unabhängigkeit.
Gleichzeitig bietet dieses System einen wirksamen Schutz vor steigenden Energiepreisen.
Das bedeutet langfristige Ersparnis und mehr Sicherheit für Ihre Familie – gerade in unsicheren Zeiten.
-
KÜCHE:
Eine neue, vollständig ausgestattete Küche mit Geräten ist ebenfalls im Kaufpreis enthalten.
----------------------------------------------------------------------------------------
-
ÜBERBLICK:
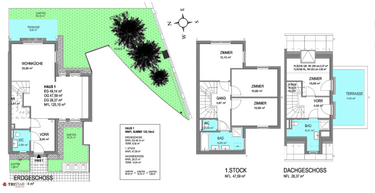
HAUS 1: Gesamtfläche ca. 234 m²
WNFL ca. 125,10 m² (5 Zimmer) + Garten ca. 73 m² + Terrasse (EG) ca. 9 m² + Terrasse (DG) ca. 15 m² + PKW Stellplatz
Kaufpreis: EUR 749.000,- Schlüsselfertig, inkl. Photovoltaikanlage , Küche und PKW Stellplatz
HAUS 2: VERKAUFT!
HAUS 3: VERKAUFT!
----------------------------------------------------------------------------------------
-
TOP LAGE:
DETAILLIERTES LAGEEXPOSÉ (68 Seiten!) vorhanden und erfolgt umgehend nach Anfrage.
-
VERMITTLUNGSPROVISION / DOPPELMAKLERTÄTIGKEIT:
Der Ordnung halber wird darauf hingewiesen, dass die Vermittlungsprovision 3 % des Kaufpreises zuzüglich 20 % USt. (insgesamt 3,6 %) beträgt und mit Zustandekommen des vermittelten Rechtsgeschäfts (Annahme des Kaufanbots ohne aufschiebende Bedingungen durch den Verkäufer) fällig wird. Der Makler ist als Doppelmakler tätig.
NEU! • 5 Zimmer • Garten + 2 Terrassen • Nähe U6 • 1230 Wien
NEU! ++ Nähe U6 Perfektastraße ++ 3 Häuser mit Garten und PKW-Stellplatz ++ 1230 Wien ++ Eigentum
-
Projekt:
In der Nähe der U6-Station Perfektastraße im 23. Bezirk stehen ab sofort drei hochwertige Reihenhäuser zum Verkauf.
Die Häuser bieten 5-6 Zimmer, zwei Terrassen, eigene PKW-Stellplätze sowie private Gärten.
Es handelt sich um Eigentum – kein Pacht- oder Baurecht.
Die Wohnflächen liegen zwischen 122 m² und 133 m² und bieten reichlich Platz für die ganze Familie sowie Homeoffice.
Modernste Ausstattung und zukunftsorientiertes Design machen diese Häuser zur perfekten Wahl.
----------------------------------------------------------------------------------------
-
Überblick der derzeit verfügbaren Häuser:
HAUS 1: Gesamtfläche ca. 234 m²
WNFL ca. 125,10 m² (5 Zimmer) + Garten ca. 73 m² + Terrasse (EG) ca. 9 m² + Terrasse (DG) ca. 15 m² + PKW Stellplatz = EUR 799.000,- Schlüsselfertig und inkl. PKW Stellplatz
HAUS 2: Gesamtfläche ca. 171 m²
WNFL ca. 133,36 m² (6 Zimmer) + Garten ca. 23 m² + Terrasse (EG) ca. 7,63 m² + Terrasse (DG) ca. 6,55 m² + PKW Stellplatz = EUR 799.000,- Schlüsselfertig und inkl. PKW Stellplatz
HAUS 3: Gesamtfläche ca. 260 m²
WNFL ca. 122,69 m² (5 Zimmer) + Garten ca. 117 m² + Terrasse (EG) ca. 9,60 m² + Terrasse (DG) ca. 11 m² + PKW Stellplatz = EUR 799.000,- Schlüsselfertig und inkl. PKW Stellplatz
----------------------------------------------------------------------------------------
-
Top Lage:
DETAILLIERTES LAGEEXPOSÉ (68 Seiten!) vorhanden und erfolgt umgehend nach Anfrage.
-
Moderne und maßgeschneiderte Finanzierung:
„Hausbank war gestern“!
Heutzutage haben wir für Sie online und sofortigen Zugang zu den besten und neuesten Finanzprodukten von über 120 Kreditinstituten in Österreich und Deutschland.
Genau wie beim Immobilienvergleich, ermöglichen wir Ihnen, alle relevante Bankangebote zu vergleichen, um das beste für Sie zu finden!
Auch Angebote ohne Eigenmittel, mit festen Zinssätzen und einer beeindruckenden Laufzeit von bis zu 45 Jahren sind verfügbar!
So sparen Sie Zeit, Geld und Nerven!
Wir weisen darauf hin, dass zwischen dem Vermittler und dem zu vermittelnden Dritten ein familiäres oder wirtschaftliches Naheverhältnis besteht.
Der Vermittler ist als Doppelmakler tätig.
Eckdaten
| Kaufpreis: | 749.000,00 € |
| Fläche: | 125,10 m² |
| Zimmer: | 5 |
Basisdaten zur Immobilie
| Objektnr: | 28478 |
| Art: | Haus - Reihenendhaus |
| Land: | Österreich |
| Baujahr: | 2024 |
| Zustand: | Erstbezug |
| Alter: | Neubau |
| Kaufpreis: | 749.000,00 € |
| Kaufpreis / m²: | auf Anfrage |
| Provision: | 3% des Kaufpreises zzgl. 20% USt. |
| Wohnfläche: | 125,10 m² |
| Zimmer: | 5 |
| Bäder: | 2 |
| WC: | 3 |
| Terrassen: | 2 |
| Stellplätze: | 1 |
| Garten: | 73,00 m² |
| Heizwärmebedarf: | B 43,10 kWh/m²a |
| fGEE: | A+ 0,65 |
Ausstattung
Fliesen, Parkett, Fußbodenheizung, Einbauküche, Wohnküche / offene Küche, Südbalkon, Bad mit Fenster, Badewanne, Dusche, Parkplatz
Internet und TV
Information zur Internet und TV Versorgung hier
Ihre persönliche Beratung
TRISTAR Immobilien
TRISTAR Immobilien
tristar@tristar.at
+43 676 901 73 74
