Hofseitige 3-Zimmer-Wohnung mit Balkon nahe VETMED!

Wohnung , 1220 Wien

Lage der Immobilie

Vienna International School (VIS) / Donauzentrum - U1 - Kagran / Japanese School / ERSTE BANK EIS ARENA / ALTE DONAU / VETMED / Kirchblütenpark, Erste Bank Arena, Attemsgasse, Donaufelderstraße, Vienna International School, Japanische Schule, Donauzentrum, Donauplex, Segelschule, Sportcenter, Donaucity, Gänsehäufel, Strandbad, Alte Donau. Sehr gute Einkaufsmöglichkeiten und gastronomische Versorgung in direkter Wohnumgebung. Die VETMED (Veterinärmedizinische Universität Wien) ist auch zu Fuß sehr schnell zu erreichen.

Beschreibung der Immobilie

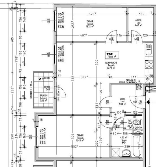
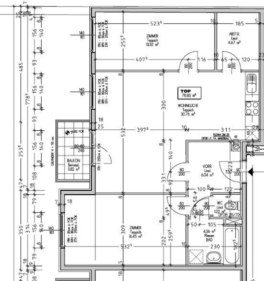
Zum Verkauf gelangt hier eine gut geschnittene 3 Zimmer - Wohnung mit 77 m2 Wohnfläche plus hofseitiger Balkon mit 4 m2!

Die Wohnung ist sehr gut und ruhig (hofseitig) gelegen und gut aufgeteilt. Es erwartet Sie eine komplett ausgestattete Küche mit allen Geräten, große Wohnküche, zwei Schlafzimmer, Badezimmer mit Wanne, Spiegelschrank, Waschmaschinenanschluss, separate Toilette, Abstellraum, Balkon. Die Küche ist mit Geräten ausgestattet: Backrohr, Ceranfeld, Dunstabzugshaube, Geschirrspüler. Nebenan befindet sich ein praktischer großer Abstellraum. Die Zimmer sind mit Laminat verlegt. Der Zugang zum hofseitig gelegenen Balkon erfolgt über das Wohnzimmer. Die Freifläche lädt zum Entspannen und Verweilen ein. Die Balkonterrasse ist mit schönem Terrassenbelag verlegt worden. Der Vorraum bietet Platz für eine Garderobe an. Das Badezimmer und WC sind sauber verfliest.  Kabel, Satelit- und Internetanschlüsse vorhanden. Zwei separate Schlafzimmer, ein separat angelegtes WC, so wie ein Badezimmer mit Badewanne und einem Waschmaschinenanschluss runden dieses Angebot ab.

Ein Kellerabteil ist der Wohnung als Zubehör zugeordnet. Zusätzlich können noch zwei Garagenstellplätze erworben werden bei Bedarf.

Ausstattung:

Laminat, Fliesen, Gegensprechanlage, Fenster mit Zwiefachverglasung, Innenjalousien, Lampen, Möbel (Bettgestell mit Lattenrost, Sitzgelegenheit, Stühle, Schrank und Komode) können bleiben oder auch auf Wunsch entfernt werden.

Hausanlage:

Ein Lift, Keller, Fahrrad- und Kinderwagenraum, sowie ein riesengroßer Hobbyraum / Kinderspielraum können mitbenützt werden.

Zur allgemeinen Benützung steht sowohl ein Indoor-, als auch ein Outdoor-Sportplatz zur Verfügung.

Lage

Die gute Lage dieses Objekts gewährleistete eine gute Infrastruktur und Verkehrsanbindung. Geschäfte des täglichen Bedarfs finden Sie in unmittelbarer Umgebung. Die nahe gelegene Alte Donau bietet Erholung und Freizeitmöglichkeiten. Viele Einkaufsmöglichkeiten im nahegelegenen Donauzentrum mit hunderten von Geschäften und Gastrobetrieben. Zum Kirchblütenpark, Erste Bank Arena, Attemsgasse, Donaufelderstraße, Vienna International School, Japanische Schule, Donauzentrum, Donauplex, Segelschule, Sportcenter, Donaucity, Gänsehäufel, Strandbad,  Alte Donau etc. sind es nur wenige Gehminuten und es befindet sich alles in der Nähe. Sehr gute Einkaufsmöglichkeiten und gastronomische Versorgung in direkter Wohnumgebung. Die VETMED (Veterinärmedizinische Universität Wien) ist auch zu Fuß sehr schnell zu erreichen.

Öffentliche Verkehrsanbindung:

U-Bahnlinie U1 "Kagran" (wenige Gehminuten) / Straßenbahnlinien 25, 26 / Buslinien 27A

Anreise mit den öffentlichen Verkehrsmitteln:

ab Westbahnhof: U6 in Richtung Floridsdorf bis Floridsdorf, weiter mit der Straßenbahnlinie 26 in Richtung Kagran bis Josef-Baumann-Gasse/Veterinärmedizinische Universität oder weiter mit der Straßenbahnlinie 25 in Richtung Aspern, Oberdorfstraße bis Tokiostraße.

ab Wien Hauptbahnhof: U1 in Richtung Leopoldau bis Kagraner Platz,weiter mit der Straßenbahnlinie 26 in Richtung Strebersdorf bis Veterinärmedizinische Universität / Tokiostraße, oder U1 in Richtung Leopoldau bis Kagran, weiter mit der Buslinie 27A in Richtung Hermann-Gebauer-Straße bis Veterinärmedizinische Universität oder
weiter mit der Straßenbahnlinie 25 in Richtung Floridsdorf bis Tokiostraße.

mit Schnellbahnen: S1 (Richtung Gänserndorf), S2 (Richtung Mistelbach), S3 (Richtung Hollabrunn), S15 (Richtung Floridsdorf) bis Floridsdorf, weiter mit der Straßenbahnlinie 26 in Richtung Kagran bis Josef-Baumann-Gasse/Veterinärmedizinische Universität oder
weiter mit der Straßenbahnlinie 25 in Richtung Aspern, Oberdorfstraße bis Tokiostraße.

Anreise vom Flughafen Schwechat: ein Bus (Vienna Airport Lines, Postbus) fährt vom Flughafen Wien Schwechat direkt nach Wien Donauzentrum (über Vienna International Center VIC)/U1-Station Kagran (Fahrzeit ca. 40 Minuten). Dann weiter mit der Buslinie 27A in Richtung Hermann-Gebauer-Straße bis Veterinärmedizinische Universität / Tokiostraße.

Konditionen:

Kaufpreis: ab € 398.000,--

Grunderwerbssteuer: 3,5 % vom KP (Kaufpreis);

Grundbucheintragung: 1,1% vom KP (Möglichkeit auf Befreiung wenn Erstimmobilie und zum dringenden Wohnbedürfnis gekauft wird);

Kaufvertragserrichtungskosten + Notar: Treuhandschaft und Beglaubigungen: i.d.R.: ?  % vom KP + 20% MwSt.;

Maklerhonorar: 3 % vom KP + 20 % MwSt.

ev. Pfandrechtseintragungskosten: 1,2% vom KP (Möglichkeit auf Befreiung wenn Erstimmobilie und zum dringenden Wohnbedürfnis gekauft wird);

Dienstleistung für Anleger:

Sie möchten nach Erwerb der Immobilie mit der Vermietung und eventuellen Fragen während des Mietverhältnisses nicht beschäftigt sein?

Wir stehen Ihnen mit einem Dienstleistungskonzept für Anleger zur Verfügung. Gerne übermitteln wir Ihnen bei Bedarf die Unterlagen hierfür.

 

 

Finanzierung:

Sie suchen nach einer passenden Finanzierung für dieses Objekt?

Um Ihnen Ihre wertvolle Zeit und Ihr Geld zu sparen, stehen wir Ihnen auch hier tatkräftig zur Seite!

Gerne stehen wir Ihnen für ein unverbindliches und kostenloses Erstberatungsgespräch zur Verfügung.

Wir beraten Sie verlässlich und professionell! Sparen Sie Ihre kostbare Zeit mit unzähligen Bankterminen.

Kontakt:

Bitte beachten Sie, dass wir aufgrund der Nachweispflicht gegenüber dem Eigentümer nur Anfragen mit vollständiger Angabe der Anschrift bearbeiten können.

Wir senden Ihnen gerne weitere und detaillierte Beschreibungen, sowie Besichtigungstermine zu, sobald wir Ihre Anfrage erhalten haben.

Wir bitten Sie daher um eine Email Anfrage an: office@pr-immobilien.at

Noch nichts gefunden? Wir informieren Sie über geeignete Immobilienangebote noch vor allen anderen.
Legen Sie jetzt Ihren individuellen Suchagenten unter folgendem Link an. Wir schicken Ihnen passende Immobilien exklusiv vorab zu.
Suchagent anlegen - https://pr-immobilien-real-estate.service.immo/registrieren/de

Wir weisen darauf hin, dass zwischen dem Vermittler und dem zu vermittelnden Dritten ein familiäres oder wirtschaftliches Naheverhältnis besteht.

Der Vermittler ist als Doppelmakler tätig.

Infrastruktur / Entfernungen

Gesundheit
Arzt <500m
Apotheke <500m
Klinik <2.500m
Krankenhaus <3.000m

Kinder & Schulen
Schule <500m
Kindergarten <500m
Universität <1.000m
Höhere Schule <1.000m

Nahversorgung
Supermarkt <500m
Bäckerei <1.000m
Einkaufszentrum <1.000m

Sonstige
Geldautomat <1.000m
Bank <1.000m
Post <1.500m
Polizei <1.000m

Verkehr
Bus <500m
U-Bahn <1.000m
Straßenbahn <500m
Bahnhof <1.000m
Autobahnanschluss <2.500m

Angaben Entfernung Luftlinie / Quelle: OpenStreetMap

Eckdaten

Objektnr: 2989
Art: Wohnung
Land: Österreich
Baujahr: 1999
Zustand: Modernisiert
Möbliert: Teil
Alter: Neubau
Kaufpreis: 398.000,00
Provision: 3% des Kaufpreises zzgl. 20% USt.
Betriebskosten: 160,00 €
MwSt Gesamt: 17,92 €
Wohnfläche: 76,83 m²
Gesamtfläche: 81,00 m²
Zimmer: 3
Bäder: 1
WC: 1
Balkone: 1
Stellplätze: 2
Heizwärmebedarf:  C  65,60 kWh/m²a
fGEE:  C  1,20
Immobilie merken Exposé

Ausstattung

Estrichboden, Fliesen, Laminatboden, Zentralheizung, Wohnküche / offene Küche, Personenaufzug, Westbalkon, Badewanne, Kabel/Satelliten-TV, Garage, Sicherheitskamera, Sporteinrichtungen, Wasch/Trockenraum


Internet und TV

Information zur Internet und TV Versorgung hier


Immobilie anfragen


Ihre persönliche Beratung

PR-IMMOBILIEN / REAL ESTATE

Radisa Paunovic

PR-IMMOBILIEN / REAL ESTATE

E office@pr-immobilien.at

T 0664-404-15-47

H +43 / 664 - 4041547