Ruhige Grünlage mit Weinbergblick – Pachtgrundstück mit Sommerhäuschen & Neubau-Möglichkeit!
Grundstück
,
1190
Wien
Beschreibung der Immobilie
In einer der schönsten Gegenden von Döbling in Neustift am Walde im Kleingartenverein Sommerhaide befindet sich dieses Pachtgrundstück mit Kleingartenhaus.
Hier kommen Sie zum Objektvideo: https://youtu.be/BaC7hTKTW3Q
Das rechteckige Grundstück mit einer Länge von ca. 29m und einer durchschnittlichen Breite von ca. 10m verfügt über eine direkte Zufahrt und liegt in einer sehr gepflegten Kleingartensiedlung.
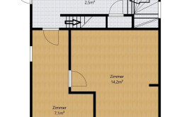
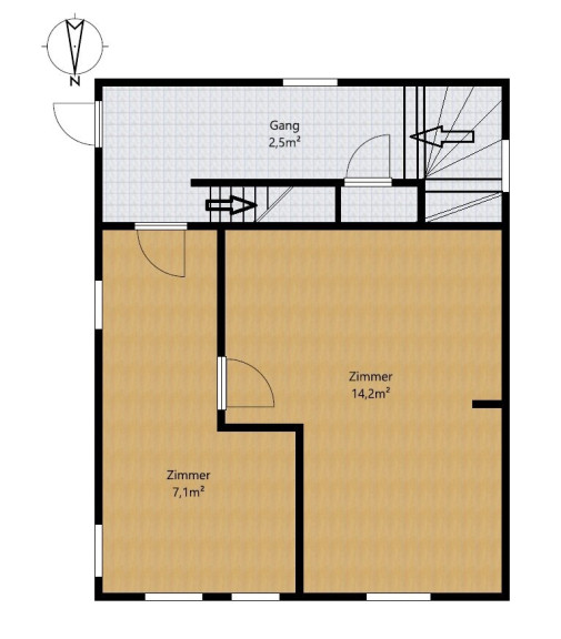
Das Grundstück bietet eine traumhafte unverbaubare Fernsicht auf die gegenüberliegenden Weinberge von Neustift und die Ausläufer des Wienerwalds. Auf dem Grundstück steht ein Kleingartenhaus mit ca. 60m² Wohnfläche verteilt auf 3 Ebenen, bestehend aus einem Wohnraum, einem separaten Essbereich einer Küche, einem Bad mit Dusche und WC und auf der oberen Ebene einem Schlafraum mit herrlichem Ausblick. Das Grundstück ist an das öffentliche Strom- Wasser und Kanalnetz angeschlossen, Gas befindet sich an der Grundstücksgrenze.
Die Widmung des Grundstücks (Eklw, Erholungsgebiet-Kleingartengebiet für ganzjähriges Wohnen) sieht bei einem Neubau eine bebaubare Fläche von 50m² über 2 Ebenen mit einer max. Bauhöhe von 5,5m vor, zusätzlich kann ein Keller von ca. 80m² errichtet werden. Aufgrund der Hanglage ist dieser zu einem großen Teil optimal als zusätzlicher Wohnraum nutzbar. Somit können Sie Ihren Traum vom Eigenheim mit ausreichend Wohnfläche verwirklichen.
Das Grundstück verzaubert durch die wunderbare Grün-/Ruhelage, trotzdem sind Sie mit den in wenigen Minuten fußläufig erreichbaren Buslinien 41A und 35A sehr gut an den öffentlichen Verkehr angebunden. Das Ortszentrum von Neustift mit diversen Einkaufsmöglichkeiten ist ebenfalls in der unmittelbaren Umgebung genauso wie Kindergärten, Volksschule oder die Amerikanische Schule. Die Weinberge, der angrenzende Wienerwald und der Pötzleinsdorfer Schlosspark laden zur Entspannung im Freien ein, egal ob beim Wandern, Radfahren, Laufen etc. Weiters bieten Ihnen die zahlreichen Neustifter-Heurigen beste Bedingungen, um gemütliche Zeit mit Freunden zu verbringen.
Top Features:
- traumhafte Aussichtslage in Döblinger Bestlage
- ganzjähriges Wohnen möglich
- direkte Zufahrt möglich
- Bebauung: 80m² Keller und 2 Geschosse mit jeweils 50m² möglich
Hard Facts:
- Pachtgrund, jährliche Pacht dzt. €1.212,90
- Grundstücksgröße ca. 286m²
- Wohnfläche ca.60 m²
- Zimmer 3
- Küche
- Bad mit Dusche und WC
- Terrasse
Alle Angaben beruhen auf Informationen des Eigentümers und sind ohne Gewähr.
Doppelmaklertätigkeit:
Wir informieren Sie darüber, dass wir bei diesem Objekt eine Doppelmaklertätigkeit ausüben (§ 5 Abs. 3 MaklerG).
Haben Sie schon eine Finanzierung?
Wenn nicht, stellen wir gerne einen Kontakt zu einem Finanzierungsberater her. Wir arbeiten mit den beiden größten Anbietern am Markt zusammen, die durch Ihr breites Portfolio an Partnerbanken oftmals die besten Konditionen für Sie herausholen können!
Nebenkosten:
3,5% Grunderwerbsteuer; 1,1% Grundbucheintrag; ca. 1-3% Notar für Vertragserrichtung; 3% Vermittlungsprovision zuzügl. Ust.,
ggf. Finanzierungskosten und Gebühren der Bank oder des Kreditinstitutes.
Infrastruktur / Entfernungen
Gesundheit
Arzt <1.000m
Apotheke <500m
Klinik <2.500m
Krankenhaus <2.500m
Kinder & Schulen
Schule <500m
Kindergarten <500m
Universität <3.000m
Höhere Schule <3.000m
Nahversorgung
Supermarkt <500m
Bäckerei <1.000m
Einkaufszentrum <3.500m
Sonstige
Geldautomat <2.000m
Bank <2.000m
Post <500m
Polizei <2.500m
Verkehr
Bus <500m
U-Bahn <3.500m
Straßenbahn <1.500m
Bahnhof <3.000m
Autobahnanschluss <5.000m
Angaben Entfernung Luftlinie / Quelle: OpenStreetMap
Eckdaten
| Kaufpreis: | 199.000,00 € |
| Fläche: | 286,00 m² |
Basisdaten zur Immobilie
| Objektnr: | 3141/3157 |
| Art: | Grundstück |
| Land: | Österreich |
| Kaufpreis: | 199.000,00 € |
| Provision: | 3% des Kaufpreises zzgl. 20% USt. |
| Grundstücksfl.: | 286,00 m² |
Ausstattung
Dusche, Kabel/Satelliten-TV
Internet und TV
Information zur Internet und TV Versorgung hier
Ihre persönliche Beratung
Benjamin Waldmann
RE/MAX Emotion
b.waldmann@remax-emotion.at
+43 1 890 93 30
+43 699 144 616 16
