Doppelhaus mit Terrasse und Garten
Haus
- Doppelhaushälfte,
1140
Wien
Lage der Immobilie
Eingebettet am Wolfersberg, einer der beliebtesten Wohngegenden Wiens, liegt diese Liegenschaft ruhig und ganz von Einfamilienhäusern und Villen umgeben im Bezirk Penzing. Ideale Lage für all jene, die gerne grüner Ruhelage, in unmittelbarer Nähe zur Natur und doch auch mit Anschluss an die Vorzüge der Großstadt leben möchten. Die Anbindung an das öffentliche Verkehrsnetz ist gegeben: Bus 52B fährt bequem in knapp 10 Minuten zum Bahnhof Hütteldorf mit Anschluss an das Wiener U-Bahnnetz bis in die Wiener City (Karlsplatz). Einkaufsmöglichkeiten gibt es im Aufhofcenter mit seinen vielen Shops und Gastronomieangeboten und in der Bergmillergasse (Billa Plus, BIPA, Fitfabrik, Bauhaus, Fressnapf, ...)Beschreibung der Immobilie
Eckdaten
| Kaufpreis: | 1.490.000,00 € |
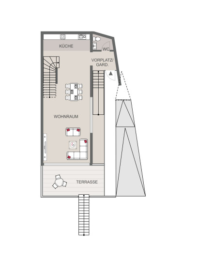
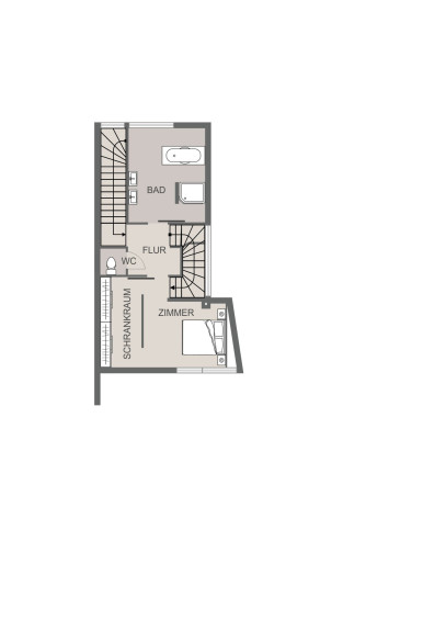
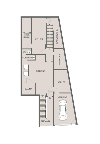
| Fläche: | 276,00 m² |
| Zimmer: | 4 |
Basisdaten zur Immobilie
| Objektnr: | IVW-26-13190 |
| Art: | Haus - Doppelhaushälfte |
| Land: | Österreich |
| Baujahr: | 2005 |
| Zustand: | Gepflegt |
| Möbliert: | Voll |
| Kaufpreis: | 1.490.000,00 € |
| Provision: | 3 % des Kaufpreises zzgl. 20% USt. |
| Wohnfläche: | 276,00 m² |
| Zimmer: | 4 |
| Bäder: | 3 |
| WC: | 4 |
| Terrassen: | 3 |
| Stellplätze: | 1 |
| Garten: | 142,41 m² |
| Heizwärmebedarf: | C 69,00 kWh/m²a |
| fGEE: | C 1,46 |
Ausstattung
Gas, Fußbodenheizung, Sauna
Internet und TV
Information zur Internet und TV Versorgung hier
Ihre persönliche Beratung
Sonja Kaspar
OTTO Immobilien GmbH
s.kaspar@otto.at
00436648548515
00436648548515
F 004315137778
