Bestlage Nähe Mariahilferstraße! Exquisite 6-Zimmer-Maisonette-Wohnung mit romantischem Eigengarten und Garagenplatz
Wohnung
,
1060
Wien
Beschreibung der Immobilie
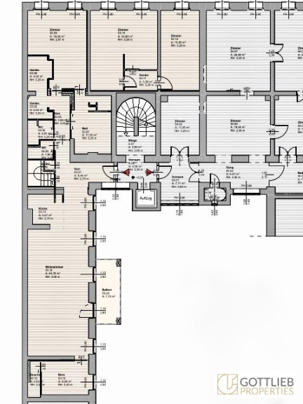
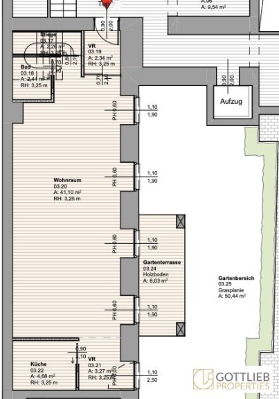
Mitten im 6. Wiener Gemeindebezirk gelangt in einem umfassend sanierten Biedermeier-Haus aus dem Jahre 1824 mit typisch gegliederter Fassade, eine helle, gepflegte, sehr gut geschnittene Wohnung mit Büro auf zwei Ebenen mit ca. 159 m² Wohn- und ca. 59 m² Bürofläche, einem Balkon sowie einem ca. 55 m² großen Garten zum sofortigen Verkauf.
Man betritt diese Wohnung im Erdgeschoss und gelangt über einen Eingangsbereich in den geräumigen Wohnraum, die Teeküche, ein Bad sowie eine Toilette. Vom Wohnzimmer aus erreicht man den romantischen Garten mit einer ca. 8 m² großen Terrasse - perfekt geeignet für gemütliche Sommerabende mit Freunden und Familie.
Über die Treppe im Eingangsbereich kommt man in das ca. 159 m² große Obergeschoss, das einen weitläufigen Wohn-Ess-Bereich mit offener Küche, einen Balkon, fünf weitere Zimmer, drei begehbare Garderoben, ein Masterbad, ein weiteres Duschbad und zwei separate Toiletten bietet.
Diese wunderbar lichtdurchflutete Liegenschaft mit original erhaltenem Deckengewölbe hat eine Wohn- und untergeordnete Bürowidmung. Diese Kombination bietet Wohnen und Arbeiten in einem entspannten sowie stilvollen Ambiente.
Der Wohnung sind drei Kellerabteile zugeordnet.
Ein Garagenstellplatz kann optional um € 50.000,00 erworben werden.
+ barrierefrei
+ ca. 218 m² Wohn- und Bürofläche
+ ca. 55 m² Gartenfläche inklusive Terrasse
+ ca. 8 m² Balkon
+ Erdgeschoss und 1. Liftstock, bestehend aus
+ zwei Wohneinheiten und
+ Büro
+ Eingangsbereich
+ Flur
+ Wohn-Ess-Bereich mit offener Küche
+ vier weitere Zimmer im Obergeschoss
+ Büroraum im Erdgeschoss
+ Teeküche
+ Masterbad
+ zwei Duschbäder
+ zwei separate Gästetoiletten
+ drei Schrankräume
+ der Wohnung sind drei Kellerabteile zugeordnet
Ausstattung
+ Parkettböden
+ Fliesenböden
+ offener Kamin
+ komplett ausgestattete Küche mit Einbaugeräten
+ Wannenbad mit zwei Waschbecken sowie Handtuchwärmer
+ Duschbad
+ Gasetagenheizung
+ Garagenstellplatz optional um € 50.000,00
Verkehrsanbindung
+ U-Bahn-Linien U3, U4, U6
+ Autobus-Linie 13A, 14A, 57A
+ Straßenbahn-Linie 18
Infrastruktur
Die einzigartige Lage dieser Wohnung zwischen dem Haus des Meeres und der Fußgängerzone der Mariahilfer Strasse bietet zahlreiche Einkaufsmöglichkeiten, diverse Lokale, klassische Wiener Kaffeehäuser, Ärzte, Banken sowie Apotheken. Der nahegelegene Naschmarkt mit seinen unverwechselbaren Marktständen und dem Flohmarkt lädt zum Verweilen und Einkaufen ein. Veranstaltungsorte, wie z.B. der 'Stadtsaal', das Apollo-Kino und kulturelle Angebote im Museumsquartier sowie im Kunst- und Naturhistorischen Museum, im Raimundtheater, genauso wie in der Wiener Innenstadt sind fußläufig sehr gut erreichbar und bieten gelungene Freizeitmöglichkeiten.
Als Naherholungsgebiet empfiehlt sich der Hubert-Marischka-Park sowie das 'Haus des Meeres' mit seinen Grünflächen und Spielplätzen.
Mit dem Auto gelangt man in Kürze über die Linke Wienzeile zur Wiener Westausfahrt in Fahrtrichtung Autobahn A1.
Sonstiges
Wir ersuchen um Verständnis, dass wir aufgrund unserer Nachweispflicht gegenüber dem Eigentümer nur Anfragen mit vollständigen Kontaktdaten (Name, Adresse, Mobilnummer, Email) bearbeiten können.
Wir weisen darauf hin, dass zwischen dem Vermittler und dem zu vermittelnden Dritten ein familiäres oder wirtschaftliches Naheverhältnis besteht.
Der Vermittler ist als Doppelmakler tätig.
Infrastruktur / Entfernungen
Gesundheit
Arzt <500m
Apotheke <500m
Klinik <500m
Krankenhaus <500m
Kinder & Schulen
Schule <500m
Kindergarten <500m
Universität <1.000m
Höhere Schule <1.000m
Nahversorgung
Supermarkt <500m
Bäckerei <500m
Einkaufszentrum <500m
Sonstige
Geldautomat <500m
Bank <500m
Post <500m
Polizei <500m
Verkehr
Bus <500m
U-Bahn <500m
Straßenbahn <500m
Bahnhof <500m
Autobahnanschluss <4.500m
Angaben Entfernung Luftlinie / Quelle: OpenStreetMap
Eckdaten
| Kaufpreis: | 1.985.000,00 € |
| Fläche: | 158,95 m² |
| Zimmer: | 6 |
Basisdaten zur Immobilie
| Objektnr: | 4003 |
| Art: | Wohnung |
| Land: | Österreich |
| Baujahr: | 1824 |
| Zustand: | Voll_saniert |
| Alter: | Altbau |
| Kaufpreis: | 1.985.000,00 € |
| Kaufpreis / m²: | 7.071,35 € |
| Provision: | 3% des Kaufpreises zzgl. 20% USt. |
| Betriebskosten: | 412,59 € |
| MwSt Gesamt: | 52,26 € |
| Wohnfläche: | 158,95 m² |
| Nutzfläche: | 280,71 m² |
| Bürofläche: | 59,11 m² |
| Zimmer: | 6 |
| Bäder: | 3 |
| WC: | 3 |
| Balkone: | 1 |
| Terrassen: | 1 |
| Stellplätze: | 1 |
| Garten: | 54,68 m² |
| Keller: | 5,74 m² |
| Heizwärmebedarf: | D 115,30 kWh/m²a |
| fGEE: | E 2,69 |
Ausstattung
Fliesen, Parkett, Gas, Etagenheizung, Wohnküche / offene Küche, Personenaufzug, Badewanne, Dusche, Kabel/Satelliten-TV, Garage
Internet und TV
Information zur Internet und TV Versorgung hier
Ihre persönliche Beratung
Desirée Gottlieb
Gottlieb Properties Immobilientreuhand GmbH
desiree.gottlieb@gottliebproperties.at
+ 43 699 14702557
