Geschäftslokal/Büro/Ordination in Pressbaum
Einzelhandel
,
3021
Pressbaum
Lage der Immobilie
Die Toplage des Geschäftslokals ist gut eingebettet im Wiental und die westliche Stadtgrenze zu Wien ist in nur 12 km erreichbar.Die Stadtgemeinde Pressbaum zählt zu einer der wohl aufstrebendsten Vorstädte Wiens und gewinnt weiterhin an Beliebtheit. Die gute Infrastruktur macht ein qualitatives Wohnen und somit auch eine gute Geschäftstätigeit vor den Toren Wiens möglich. Neben Kindergärten und Schulen, wie dem Sacre Coeur sind auch Ärzte und Apotheken nur wenige Minuten entfernt. Die Stadt Pressbaum zählt rund 8600 Einwohner. Durch die attraktive Verkehrsanbindung sind Sie in nur wenigen Minuten auf der Autobahn, dem Bahnhof und in nur 10 Minuten in Wien-Hütteldorf.Beschreibung der Immobilie
Willkommen in Ihrem neuen Geschäftslokal im Herzen von 3021 Pressbaum, Niederösterreich! Diese neuwertige Einzelhandelsfläche im Erdgeschoss bietet Ihnen auf großzügigen 98,71 m² die perfekte Grundlage für Ihr erfolgreiches Unternehmen.
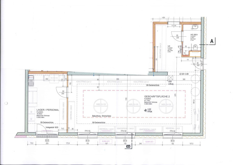
Das Geschäftslokal verteilt sich auf ca. 98 m², zuzüglich einer Terrassenfreifläche von 25 m² und einem KFZ-Stellplatz. Derzeit ist das Geschäftlokal durch Zwischenwände aufgeteilt in: einen großen Vorraum (Nutzung ev. als Wartebereich, Empfangsbereich), 3 Zimmer (Nutzung z.B. als Behandlungszimmer oder Büros), einem fertig komplettierten Sanitärbereich, Teeküchenanschlüße, Wohnungsübergabestation, Leerverrohrung Elektro im Stahlbeton, Decken, Klima, Rohverkabelung, Beleuchtung als Deckeninstallation. Die Zwischenwände von 2 Zimmer können entfernt werden, um den Hauptraum zu vergößern. (Variante B - siehe die letzten 3 Bilder)
Das moderne und massiv errichtete Gebäude besticht durch seine hochwertige Bauweise und die komfortable Ausstattung. Ein Personenaufzug sorgt für barrierefreien Zugang, was Ihren Kunden und Mitarbeitern gleichermaßen zugutekommt. Die Immobilie wird mit Gas beheizt, was für eine effiziente und angenehme Wärme sorgt.
Wir weisen darauf hin, dass zwischen dem Vermittler und dem zu vermittelnden Dritten ein familiäres oder wirtschaftliches Naheverhältnis besteht.
Der Vermittler ist als Doppelmakler tätig.
Infrastruktur / Entfernungen
Gesundheit
Arzt <1.000m
Apotheke <2.000m
Klinik <9.500m
Kinder & Schulen
Schule <1.500m
Kindergarten <2.000m
Nahversorgung
Supermarkt <500m
Bäckerei <500m
Sonstige
Bank <1.500m
Geldautomat <1.500m
Post <1.500m
Polizei <500m
Verkehr
Bus <500m
Autobahnanschluss <500m
Bahnhof <500m
Angaben Entfernung Luftlinie / Quelle: OpenStreetMap
Eckdaten
| Kaltmiete (netto): | 1.836,78 € |
| Fläche: | 98,71 m² |
Basisdaten zur Immobilie
| Objektnr: | 134 |
| Art: | Einzelhandel |
| Land: | Österreich |
| Baujahr: | 2021 |
| Zustand: | Neuwertig |
| Alter: | Neubau |
| Kaltmiete (netto): | 1.836,78 € |
| Kaltmiete: | 2.101,70 € |
| Provision: | 2 Bruttomonatsmieten zzgl. 20% USt. |
| Betriebskosten: | 264,92 € |
| Heizkosten: | 73,33 € |
| MwSt Gesamt: | 435,01 € |
| Nutzfläche: | 98,71 m² |
| Stellplätze: | 1 |
| Heizwärmebedarf: | A 23,22 kWh/m²a |
| fGEE: | A 0,78 |
Ausstattung
Gas, Personenaufzug
Internet und TV
Information zur Internet und TV Versorgung hier
Ihre persönliche Beratung
Melanie Figl-Mayr
Vivet Immobilien Treuhand GmbH
melanie.figl-mayr@vivet-immobilien.at
+43 2772 206 20
+43 660 87 133 17
F +43 2772 524 18 509
