Modern sanierte Wohnung | 2 Bäder/WCs | Wohnküche | Top-Lage & Infrastruktur
Wohnung
- Etage,
1040
Wien
,
Lambrechtgasse
Lage der Immobilie
Hervorragend angebunden mit allen Vorteilen der städtischen öffentlichen Verkehrsmittel und Infrastruktur liegt die Wohnung zentral, in beliebter zentraler Lage, im 4. Wiener Gemeindebezirk Wieden. Sämtliche Einkaufsmöglichkeiten für den täglichen Bedarf, charmante Geschäftslokale, Schulen, medizinische Versorgung und Vieles mehr sind ebenfalls in unmittelbarer Nähe zu finden. Zugang zu Grünflächen, sowie eine umfassende Infrastruktur und öffentliche Anbindung mit U-Bahn-, Bim- und Bushaltestellen zeichnen die Gegend als großartigen Standort in Wien aus.Beschreibung der Immobilie
Anspruchsvolles Wohnen in zentraler Top Lage!!!
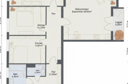
Die phantastische Immobilie liegt inmitten des 4. Bezirks, in der Nähe der attraktiven Margaretenstraße, mit allen Vorzügen des innerstädtischen Lebens, nahe dem Cissy-Kraner-Platz und dem Palais Schönburg, und befindet sich im 3. Liftstock eines mehrgeschossigen Hauses. Die traumhaft schön sanierte und moderne 4-Zimmer Wohnung besticht neben der grandiosen Lage durch die großzügige und durchdachte Raumaufteilung mit sehr guten Lichtverhältnissen und schafft durch hochwertige Materialauswahl und die bereits vorhandene Teilmöblierung viel Wohnkomfort. Für hohe Konvenienz sorgen außerdem ein Tageslicht-Badezimmer mit Badewanne und WC, sowie eine weiteres Badezimmer mit Dusche und WC. Die Wohnfläche von rund 123 m² gewährt viel Raum zum Leben und bietet nicht zuletzt deswegen beste Voraussetzungen auch für Familien. Das Zentrum der Wohnung bildet die rund 40 m² große und repräsentative Wohnküche mit angeschlossener Loggia, die zum Verweilen einlädt.
Fakten | Highlights | Ausstattung
- Generalsaniert
- Bäder & Elektrik NEU
- Südwestseitig ausgerichtete Loggia
- 2 Badezimmer mit Dusche, Badewanne, Handtuchheizkörper und WC
- 2 Toiletten
- Vorraum mit Einbauschränken
- Zentralheizung
- Großes Kellerabteil
- Lift
- Waschküche
- Fahrradraum
- Zentrale Lage
- Grandiose Verkehrsanbindung und Infrastruktur
Notiz: Die Wohnung wird ohne Möblierung übergeben.
Auflistung der mtl. Nebenkosten:
- Betriebskosten: 299,88 €
- Heizkosten: 60,34 €
- Warmwasser: 68,95 €
- Reparaturrücklage: 175,96 €
Der Vermittler ist als Doppelmakler tätig.
Maklervereinbarung & gesetzliche Hinweispflichten
Wir ersuchen um Verständnis, dass wir bei Anfragen zur Objektadresse bzw. für einen Besichtigungstermin, aufgrund aktueller gesetzlicher Bestimmungen, Unterlagen erst dann zusenden können, wenn Sie uns vorab bestätigen, dass Sie unser sofortiges Tätigwerden wünschen und über Ihre Rücktrittsrechte und Nebenkosten aufgeklärt wurden. Sie bekommen nach Ihrer schriftlichen Anfrage mit vollständiger Angabe Ihres Namens, Anschrift und Telefonnummer ein E-Mail zugesandt, in der Sie diese Punkte bestätigen können.
Infrastruktur / Entfernungen
Gesundheit
Arzt <250m
Apotheke <250m
Klinik <500m
Krankenhaus <500m
Kinder & Schulen
Schule <250m
Kindergarten <250m
Universität <500m
Höhere Schule <500m
Nahversorgung
Supermarkt <250m
Bäckerei <250m
Einkaufszentrum <250m
Sonstige
Geldautomat <250m
Bank <250m
Post <250m
Polizei <750m
Verkehr
Bus <250m
U-Bahn <750m
Straßenbahn <250m
Bahnhof <750m
Autobahnanschluss <3.250m
Angaben Entfernung Luftlinie / Quelle: OpenStreetMap
Eckdaten
| Kaufpreis: | 798.000,00 € |
| Fläche: | 122,42 m² |
| Zimmer: | 4 |
Basisdaten zur Immobilie
| Objektnr: | 6819/391 |
| Art: | Wohnung - Etage |
| Land: | Österreich |
| Baujahr: | 1970 |
| Zustand: | Voll_saniert |
| Alter: | Neubau |
| Kaufpreis: | 798.000,00 € |
| Provision: | 28.728,00 € inkl. 20% USt. |
| Betriebskosten: | 272,62 € |
| MwSt Gesamt: | 27,26 € |
| Wohnfläche: | 122,42 m² |
| Zimmer: | 4 |
| Bäder: | 2 |
| WC: | 2 |
| Heizwärmebedarf: | D 108,10 kWh/m²a |
| fGEE: | G 4,57 |
Ausstattung
Parkett, Fliesen, Öl, Zentralheizung, Personenaufzug, Bad mit Fenster, Badewanne, Dusche, Kabel/Satelliten-TV
Internet und TV
Information zur Internet und TV Versorgung hier
Ihre persönliche Beratung
Alexander Kratzer
KRATZER Immobilien OG
office@kratzer-immobilien.at
+43 677 61002926
