Lage der Immobilie
Ruhige fußläufige Zentrumslage in der Nähe zum Volksgarten, Musiktheater, zur Landstraße und zur Straßenbahn. Beste Infrastruktur in einem aufstrebenden Viertel mit allen urbanen Annehmlichkeiten!Beschreibung der Immobilie
Attraktive Anlageimmobilie in zentraler Ruhelage
Für Anleger und Investoren mit Weitblick bietet sich hier eine seltene Gelegenheit: In einer ruhigen Seitenstraße nahe dem Musiktheater und Volksgarten steht ein gepflegtes Stadthaus mit hohem Entwicklungspotenzial zum Verkauf.Die Liegenschaft vereint stabile Bestandsstruktur, flexible Nutzungsmöglichkeiten sowie eine bereits bewilligte Neubauoption.
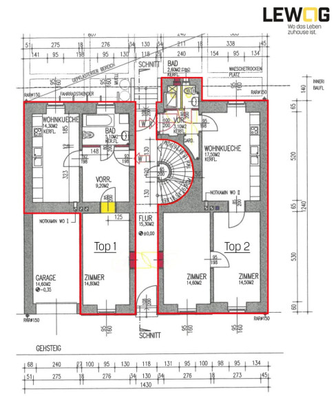
Die 5 eigenständigen sanierten Altbauwohnungen, ausgestattet mit Wohnküchen, eigenen Bädern mit WC sowie Parkettböden, sind wie folgt aufgeteilt:
Top 01, EG: ca. 43 m2
Top 02, EG: ca. 52 m2
Top 03, 1.OG: ca. 84 m2
Top 04, 1.OG: ca. 39 m2
Top 05, 2.OG & DG: ca. 239 m2
Das Haus verfügt zudem über ein Untergeschoss mit charaktervollem Ziegelgewölbe, welches Platz für Kellerabteile, Weinlagerung uvm. bietet. Die Garage mit elektr. Tor bietet Platz für ein Auto. Die Aufstockung und die damit verbundenen umfangreichen Sanierungen wurden alle in den späten 1990er- bzw. frühen 2000er Jahren durchgeführt.
Für Investoren ergeben sich vielfältige Optionen:
* kurzfristige Vermietung der 5 Bestandswohnungen
* Umbau auf 7 Wohnungen mit wenig Aufwand
* Realisierung eines Neubauprojektes (bewilligte Einreichung für 11 Einheiten + 6 TG-Plätze)
Eine seltene Gelegenheit für Anleger und Projektentwickler mit Weitblick in gefragter Linzer Innenstadtlage.
Wir weisen darauf hin, dass wir hier als gewerblicher Doppelmakler tätig sind und im Erfolgsfall die gesetzliche Provision verrechnen. Besichtigungen und Auskünfte sind kostenlos.
Lassen Sie sich diese Gelegenheit nicht entgehen und vereinbaren Sie noch heute einen Besichtigungstermin. Wir freuen uns auf Ihre Kontaktaufnahme unter 0732 945658 oder willkommen@lewog.at.
Wir weisen darauf hin, dass zwischen dem Vermittler und dem zu vermittelnden Dritten ein familiäres oder wirtschaftliches Naheverhältnis besteht.
Der Vermittler ist als Doppelmakler tätig.
Infrastruktur / Entfernungen
Gesundheit
Arzt <500m
Apotheke <500m
Klinik <1.000m
Krankenhaus <1.000m
Kinder & Schulen
Kindergarten <500m
Schule <500m
Universität <1.000m
Höhere Schule <1.000m
Nahversorgung
Supermarkt <500m
Bäckerei <500m
Einkaufszentrum <1.000m
Sonstige
Bank <500m
Geldautomat <500m
Post <500m
Polizei <500m
Verkehr
Bus <500m
Straßenbahn <500m
Bahnhof <1.000m
Autobahnanschluss <2.000m
Flughafen <3.000m
Angaben Entfernung Luftlinie / Quelle: OpenStreetMap
Eckdaten
| Kaufpreis: | 1.450.000,00 € |
| Fläche: | 457,00 m² |
Basisdaten zur Immobilie
| Objektnr: | 7047/99998026 |
| Art: | Zinshaus Renditeobjekt |
| Land: | Österreich |
| Baujahr: | 1871 |
| Zustand: | Gepflegt |
| Alter: | Altbau |
| Kaufpreis: | 1.450.000,00 € |
| Kaufpreis / m²: | auf Anfrage |
| Provision: | 3% des Kaufpreises zzgl. 20% USt. |
| Wohnfläche: | 457,00 m² |
| Keller: | 115,10 m² |
| Heizwärmebedarf: | C 91,00 kWh/m²a |
| fGEE: | C 1,52 |
Ausstattung
Fliesen, Parkett, Fernwärme, Zentralheizung, Einbauküche, Wohnküche / offene Küche
Internet und TV
Information zur Internet und TV Versorgung hier
Ihre persönliche Beratung
Immobilientreuhänder Thomas Watzinger
LEWOG Beteiligungs GmbH
willkommen@lewog.at
+43 732 94 58 56
+43 664 84 93 953
