230 m² Wohnfläche | 922 m² Grundstück | PV-Anlage | 3 Balkone | Garage – Ihr neues Zuhause in Mürzzuschlag
Haus
- Mehrfamilienhaus,
8680
Mürzzuschlag
Beschreibung der Immobilie
Lichtdurchflutet, großzügig, energieeffizient – ein Zuhause zum Wohlfühlen
Kurzbeschreibung
Auf der sonnigen Wohnseite von Mürzzuschlag erwartet Sie dieses großzügige Zweifamilienhaus mit rund 230 m² Wohnfläche auf drei Ebenen.
Die Immobilie verbindet Raum, Privatsphäre und moderne Energieeffizienz – ideal für Familien, Mehrgenerationenwohnen oder eine Kombination aus Eigennutzung und Vermietung.
Besonders attraktiv:
✔ Luftwärmepumpe & Photovoltaikanlage
✔ Drei Balkone mit Weitblick
✔ 922 m² Grundstück mit Garten auf zwei Ebenen
✔ Große Garage + 4 Stellplätze
✔ Eigenständige Wohneinheiten mit separaten Eingängen
Ein Zuhause mit Substanz, Flexibilität und langfristiger Perspektive.
Die oberste Etage (ca. 80 m²) ist eine eigenständige Wohneinheit.
Für diese Wohnung besteht ein lebenslanges Wohnrecht, welches bereits im Kaufpreis berücksichtigt wurde.
Die Einheit wird nicht ganzjährig bewohnt.
Für Käufer bedeutet dies:
✔ Transparente Preisgestaltung
✔ Keine unerwarteten Verpflichtungen
✔ Langfristige Planbarkeit
✔ Substanzwert sofort gesichert
Die Hauptwohneinheiten im Erd- und 1. Obergeschoss sind uneingeschränkt nutzbar.
Die Wohnbereiche verfügen über getrennte Eingänge und ermöglichen dadurch ein hohes Maß an Privatsphäre.
________________________________________
Eckdaten der Immobilie
• Objektart: Zweifamilienhaus
• Baujahr: 1963
• Bauweise: Ziegelmassivbauweise
• Wohnfläche gesamt: ca. 230 m²
• Nutzfläche: ca. 233 m²
• Gartenfläche: ca. 340 m²
• Garagenfläche: ca. 55,25 m²
• Stellplatzfläche: ca. 37,72 m²
• Anzahl Etagen: 3
• Dämmung: gute Wärmedämmung
• Dach: Bramac-Ziegeldach
Heizung:
• Erdgeschoss & 1. Obergeschoss: Luftwärmepumpe in Kombination mit Photovoltaikanlage
• 2.Obergeschoss: Gasheizung
Energie & Nachhaltigkeit:
• Photovoltaikanlage zur Eigenstromnutzung
• Effiziente Heizlösung in den Hauptwohneinheiten
________________________________________
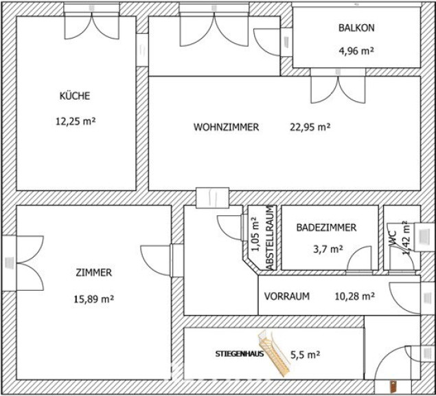
Raumaufteilung und Ausstattung
Erdgeschoss:
• Vier Zimmer
• Vorraum
• Abstellkammer
• Separates WC
• Balkon ca. 12 m²
1. Obergeschoss:
• Zwei Zimmer
• Vorraum
• Küche
• Badezimmer
• Separates WC
• Zwei Abstellkammern
• Balkon ca. 6 m²
2. Obergeschoss:
• Drei Zimmer
• Vorraum
• Küche
• Badezimmer
• Separates WC
• Balkon ca. 12 m²
________________________________________
Garten und Außenbereich
• Gartenflächen auf zwei Ebenen
• Großer Gartenschuppen
• Geräumige Garage
• Hobbyraum
• Sichtschutz durch Bepflanzung
• Vier KFZ-Abstellplätze
________________________________________
Zustand
Das Gebäude befindet sich in einem sehr guten, dem Baujahr entsprechenden Gesamtzustand. Es besteht kein unmittelbarer Sanierungsbedarf in Bezug auf Innenausstattung, Energieeffizienz sowie die vorhandene Haustechnik. Die Immobilie wurde laufend gepflegt und präsentiert sich technisch solide und funktional.
Der bestehende Baukörper bietet zudem eine hervorragende Grundlage für individuelle Umgestaltungen, Modernisierungen oder persönliche Gestaltungsideen – ideal für Käufer, die sofort einziehen oder eigene Wohnvorstellungen verwirklichen möchten.
________________________________________
Lage
Das Zweifamilienhaus liegt in einer ruhigen Wohnlage mit angenehmer Nachbarschaft in Mürzzuschlag. Die Umgebung ist geprägt von Wohnhäusern und viel Grün, ideal für ein familienfreundliches Wohnumfeld.
Infrastruktur:
• Geschäfte des täglichen Bedarfs
• Kindergarten, Volksschule, Gymnasium, Mittelschule
• Weiterführende Schulen
• Ärztliche Versorgung
Verkehrsanbindung:
• Bahnhof Mürzzuschlag ca. 5 Minuten entfernt
• Gute Anbindung nach Graz und Wien
Freizeitmöglichkeiten:
• Wandern, Radfahren, Wintersport
• Erholung in der Natur
________________________________________
Highlights / Potenziale
• Solide Ziegelmassivbauweise mit großzügiger Wohnfläche
• Ruhige, sonnige Lage am Waldrand
• Individuelle Gestaltungsmöglichkeiten, z. B. Einbau eines zusätzlichen Badezimmers im Erdgeschoss
• Garage und Außenbereiche ideal für Lagerung, Werkstatt oder Hobbys
• Nachhaltige Haustechnik: Luftwärmepumpe und Photovoltaikanlage bereits vorhanden
________________________________________
Hinweis
Der Makler ist als Doppelmakler tätig.
________________________________________
Wir freuen uns auf Ihre Kontaktaufnahme und stehen gerne für einen Besichtigungstermin zur Verfügung.
Der Vermittler ist als Doppelmakler tätig.
Infrastruktur / Entfernungen
Gesundheit
Arzt <500m
Apotheke <1.000m
Krankenhaus <1.000m
Kinder & Schulen
Schule <1.000m
Kindergarten <1.500m
Nahversorgung
Supermarkt <500m
Bäckerei <1.000m
Einkaufszentrum <2.000m
Sonstige
Bank <500m
Geldautomat <1.000m
Post <1.000m
Polizei <1.500m
Verkehr
Bus <500m
Autobahnanschluss <2.000m
Bahnhof <1.500m
Angaben Entfernung Luftlinie / Quelle: OpenStreetMap
Eckdaten
| Kaufpreis: | 298.000,00 € |
| Fläche: | 230,00 m² |
| Zimmer: | 10 |
Basisdaten zur Immobilie
| Objektnr: | 3812/339 |
| Art: | Haus - Mehrfamilienhaus |
| Land: | Österreich |
| Baujahr: | 1963 |
| Zustand: | Gepflegt |
| Möbliert: | Teil |
| Alter: | Neubau |
| Kaufpreis: | 298.000,00 € |
| Provision: | 3% des Kaufpreises zzgl. 20% USt. |
| Betriebskosten: | 104,00 € |
| Heizkosten: | 90,00 € |
| Sonstige Kosten: | 110,00 € |
| Wohnfläche: | 230,00 m² |
| Grundstücksfl.: | 922,00 m² |
| Zimmer: | 10 |
| Bäder: | 2 |
| WC: | 4 |
| Balkone: | 2 |
| Terrassen: | 1 |
| Stellplätze: | 4 |
| Garten: | 280,00 m² |
| Keller: | 50,00 m² |
| Heizwärmebedarf: | D 140,40 kWh/m²a |
| fGEE: | C 1,41 |
Ausstattung
Parkett, Estrichboden, Fliesen, Kunststoffboden, Laminatboden, Gas, Zentralheizung, Etagenheizung, Kamin, Kabel/Satelliten-TV, Garage, Parkplatz
Internet und TV
Information zur Internet und TV Versorgung hier
Ihre persönliche Beratung
Bernhard Valant
RE/MAX Smart
b.valant@remax-smart.at
+436769224972
+43 676 922 49 72
