Immobilie merken

Praxisräumlichkeiten barrierefrei in 1190 Wien – ideal für Therapeuten, Masseure oder Privatordination!

Büro / Praxis - Praxis, 1190 Wien

Beschreibung der Immobilie

In ruhiger Lage des 19. Bezirks, in der Scheimpfluggasse, gelangt eine Praxis zur Vermietung – perfekt geeignet für eine Praxisgemeinschaft, bestehend z. B. aus Masseuren, Psychotherapeuten, Physiotherapeuten oder für eine kleine Privatordination.

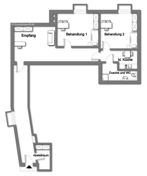
Raumaufteilung:

* 2 Therapieräume (getrennt begehbar)
* Empfangs- bzw. Wartebereich
* Teeküche möbliert
* Badezimmer mit Dusche und WC, Waschmaschinenanschluss vorhanden
* Abstellraum

Die Praxis liegt im Erdgeschoß, aufgrund der Hanglage im Gebäude jedoch de facto im Kellergeschoß. Die Räume verfügen ausschließlich über Oberlichten, daher ist natürliches Tageslicht nur begrenzt vorhanden. Die Beleuchtung erfolgt über gut platzierte künstliche Lichtquellen.

Ausstattung & Zustand:

Die Räumlichkeiten sind in gepflegtem Zustand und können teilmöbliert oder leer übernommen werden. Ideal geeignet für Tätigkeiten im Gesundheitsbereich. Der Zugang ist ebenerdig und barrierefrei möglich. Das WC ist nicht rollstuhlgerecht!

Mietkonditionen:

* Miete (inkl. Betriebskosten & Heizkostenakonto, inkl. Ust): EUR 1.023,44
* Kaution: EUR 3.070,32
* Verfügbar ab: sofort

Maklerprovision: 3 BMM plus Ust. (=3.684,38 inkl. Ust)

Verkehrsanbindung:

Die Praxis ist gut öffentlich erreichbar. Buslinie 39A – Haltestelle „Scheimpfluggasse“ ist nur wenige Gehminuten entfernt und bringt Sie direkt zur U4-Station Heiligenstadt. Weitere Busverbindungen (z. B. 10A, 38A) sind ebenfalls in der Nähe erreichbar. In ca. 15 Minuten ist man mit öffentlichen Verkehrsmitteln im Stadtzentrum.

Parkmöglichkeiten befinden sich im öffentlichen Raum (Kurzparkzone).

Vereinbaren Sie noch heute einen Besichtigungstermin!
Für weitere Informationen schicken Sie uns bitte Ihre schriftliche Anfrage - bitte unbedingt mit vollständigem Namen, Adressdaten und Telefonnummer! Vielen Dank!

Terminvereinbarung nach Erhalt einer schriftlichen Anfrage mit vollständigen Kontaktdaten möglich!

Rechtliches:
In Entsprechung des FAGG (Fern- und Auswärtsgeschäfte-Gesetz) und des VRUG (Verbraucherrechte-Richtlinie-Umsetzungsgesetz) ist es uns leider nur mehr möglich, Termine nach Erhalt einer schriftlichen Anfrage mit vollständigen Kontaktdaten zu vereinbaren. Dies gilt ebenso für die Nennung relevanter Informationen wie z.B. der Lage. Sehr gerne sind wir auf diesem Wege bereit, die gewünschten Informationen und Unterlagen samt Adresse an Sie zu senden.
Hinweis zu Widerrufsrecht, Rücktrittsrecht bei Fern- und Auswärtsgeschäften: Gem. §11 FAGG (Fern- und Auswärtsgeschäftegesetz) kann der Interessent innerhalb von 14 Tagen vom Vertrag zurücktreten. Wünscht der Interessent mit der Kontaktaufnahme ein vorzeitiges Tätigwerden (Namhaftmachung und Adresse der Immobilie) des Immobilienbüros RE/MAX Welcome innerhalb der offenen Rücktrittsfrist, verzichtet er damit auf das Rücktrittsrecht vom Maklervertrag gem. §11 FAGG. 

Wir weisen darauf hin, dass zwischen dem Vermittler und dem zu vermittelnden Dritten ein familiäres oder wirtschaftliches Naheverhältnis besteht.

Infrastruktur / Entfernungen

Gesundheit
Arzt <500m
Apotheke <1.000m
Klinik <1.500m
Krankenhaus <2.000m

Kinder & Schulen
Schule <500m
Kindergarten <500m
Universität <1.000m
Höhere Schule <1.000m

Nahversorgung
Supermarkt <500m
Bäckerei <500m
Einkaufszentrum <2.500m

Sonstige
Geldautomat <500m
Bank <500m
Post <1.000m
Polizei <500m

Verkehr
Bus <500m
U-Bahn <2.000m
Straßenbahn <500m
Bahnhof <1.500m
Autobahnanschluss <3.000m

Angaben Entfernung Luftlinie / Quelle: OpenStreetMap

Eckdaten

Kaltmiete (netto): 500,00 €
Fläche: 67,48 m²
Zimmer: 2

Basisdaten zur Immobilie

Objektnr: 2699/1720
Art: Büro / Praxis - Praxis
Land: Österreich
Baujahr: 2004
Kaltmiete (netto): 500,00 €
Kaltmiete: 762,38 €
Provision: 3 Bruttomonatsmieten zzgl. 20% USt.
Betriebskosten: 262,38 €
Heizkosten: 112,36 €
MwSt Gesamt: 148,71 €
Nutzfläche: 67,48 m²
Zimmer: 2
WC: 1
Keller: 3,00 m²
Heizwärmebedarf:  B  47,00 kWh/m²a

Ausstattung

Gas, Zentralheizung



Internet und TV

Information zur Internet und TV Versorgung hier




Immobilie anfragen




Ihre persönliche Beratung

RE/MAX Welcome Hornyik Immobilienmakler GmbH&CoKG

Claudia Lang

RE/MAX Welcome Hornyik Immobilienmakler GmbH&CoKG

c.lang@remax-welcome.at

+432252508319

+436502802800