Lage der Immobilie
U6: MICHAELBEUERN / AKH /Beschreibung der Immobilie
- PROJEKT – EXKLUSIVE DACHGESCHOSSWOHNUNGEN IN 1180 WIEN:
Zum Verkauf steht ein Projekt mit vier neu geschaffenen, schlüsselfertigen Dachgeschosswohnungen, die urbanes Wohnen mit klassischer Architektur und beeindruckendem Wienblick verbinden. Aufgrund der hohen Nachfrage von Anlegern sind diese wunderschönen Dachgeschosswohnungen nun auch zu Anlegerpreisen erhältlich.
- DAS HAUS
Das gepflegte Wiener Altbauhaus präsentiert sich mit stilvoller Fassade und klassischem Charakter.
Ein neuer 8-Personen-Lift wurde eingebaut und ermöglicht den komfortablen Zugang bis ins Dachgeschoss.
- DIE WOHNUNGEN
Die vier Wohnungen verfügen über Wohnflächen zwischen 40,23 m² und 78,54 m², ergänzt durch großzügige Terrassen mit Ausblick über Wien.
- GRUNDBUCH STATT SPARBUCH
Dank der intelligenten Raumaufteilung und hochwertigen Ausstattung überzeugen diese wunderschönen Wohnungen sowohl Eigennutzer als auch Anleger.
---------------------------------------------
- VERFÜGBARE WOHNUNGEN:
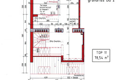
TOP 11: 3 Zimmer, Wohnfläche: ca. 78,54 m², Terrasse: ca. 7,40 m²,
Kaufpreis für Eigennutzer: EUR 719.000 I Kaufpreis für Anleger: Auf Anfrage.
TOP 12: 2 Zimmer, Wohnfläche: ca. 40,23 m², Terrasse: ca. 9,76 m²
Kaufpreis für Eigennutzer: EUR 379.000 I Kaufpreis für Anleger: Auf Anfrage.
TOP 13: VERKAUFT!
TOP 14: 2 Zimmer, Wohnfläche: ca. 52,43 m², Terrasse: ca. 11,95 m²
Kaufpreis für Eigennutzer: EUR 479.000 I Kaufpreis für Anleger: Auf Anfrage.
---------------------------------------------
- HIGHLIGHTS:
Schlüsselfertige Ausführung
Jede Wohnung mit Terrasse und Wienblick
euer Aufzug bis ins Dachgeschoss
Attraktive Wohnungsgrößen und durchdachte Grundrisse
---------------------------------------------
Disclaimer: Verkaufspläne & KI gestützte Bilder dienen ausschließlich der Veranschaulichung, sind unverbindlich und stellen keinen Vertragsbestandteil dar.
---------------------------------------------
-
VERMITTLUNGSPROVISION / DOPPELMAKLERTÄTIGKEIT:
Der Ordnung halber wird darauf hingewiesen, dass die Vermittlungsprovision 3 % des Kaufpreises zuzüglich 20 % USt. (insgesamt 3,6 %) beträgt und mit Zustandekommen des vermittelten Rechtsgeschäfts (Annahme des Kaufanbots ohne aufschiebende Bedingungen durch den Verkäufer) fällig wird. Der Makler ist als Doppelmakler tätig.
NEU! • Erstbezug • Nähe U6/AKH • 1180 Wien
Wir weisen darauf hin, dass zwischen dem Vermittler und dem zu vermittelnden Dritten ein familiäres oder wirtschaftliches Naheverhältnis besteht.
Der Vermittler ist als Doppelmakler tätig.
Eckdaten
| Kaufpreis: | 719.000,00 € |
| Fläche: | 78,54 m² |
| Zimmer: | 3 |
Basisdaten zur Immobilie
| Objektnr: | 28487 |
| Art: | Wohnung - Dachgeschoß |
| Land: | Österreich |
| Baujahr: | 2025 |
| Zustand: | Erstbezug |
| Alter: | Neubau |
| Kaufpreis: | 719.000,00 € |
| Kaufpreis / m²: | auf Anfrage |
| Provision: | 3% des Kaufpreises zzgl. 20% USt. |
| Wohnfläche: | 78,54 m² |
| Gesamtfläche: | 86,00 m² |
| Zimmer: | 3 |
| Bäder: | 1 |
| WC: | 1 |
| Terrassen: | 1 |
| Heizwärmebedarf: | B 40,00 kWh/m²a |
| fGEE: | A 0,77 |
Ausstattung
Fliesen, Parkett, Fußbodenheizung, Personenaufzug
Internet und TV
Information zur Internet und TV Versorgung hier
Ihre persönliche Beratung
TRISTAR Immobilien
TRISTAR Immobilien
tristar@tristar.at
+43 676 901 73 74
