Traumhafte 4-Zimmer Wohnung im Palais Löwenfeld!
Wohnung
,
4030
Linz
,
Dauphinestraße 9b
Lage der Immobilie
Arzt und Apotheken Kindergarten und Schule Supermarkt und Bäckerei Öffentliche Verkehrsmittel wie Bus und StraßenbahnBeschreibung der Immobilie
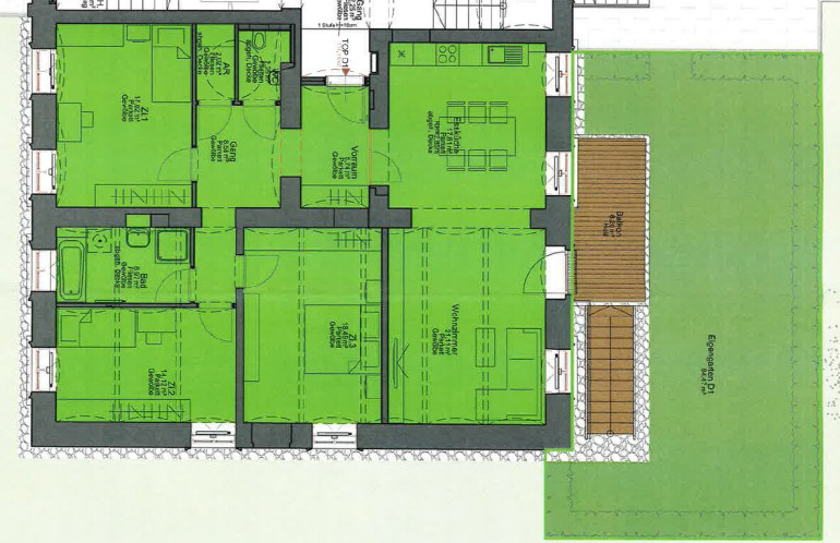
Das Meierhaus beim Palais Löwenfeld bietet bietet Ihnen auf ca. 105 m² diese traumhafte 4-Zimmer Wohnung, eine großzügige, offene Wohnküche, drei Schlafzimmer, ein Badezimmer, ein separates WC und ein Abstellraum. Das Badezimmer ist mit einer Badewanne und einer Dusche ausgestattet. Sie erreichen alle Haupträume vom Vorraum bzw. Gang. Über den Wohnbereich gelangen Sie auf den südlich ausgerichteten Balkon mit 8,20 m². Über eine Treppe gelangen Sie von dort aus in den eigenen ca. 84,47 m² großen Garten.
Die Wohnung ist mit einem wunderschönen Parkettboden ausgestattet.
Für eine angenehme Raumtemperatur sorgt die mit Fernwärme betriebene Fußbodenheizung im Badezimmer sowie Heizkörper in sämtlichen Räumen.
Die Gesamtmiete beinhaltet bereits die Betriebskosten. Die Strom- und Heizkosten sind in der Miete nicht enthalten und werden mit dem jeweiligen Versorgungsunternehmen abgerechnet.
Das Palais Löwenfeld mit der Meierei befindet sich im Linzer Stadtteil Kleinmünchen. Sämtliche Einkaufmöglichkeiten für den alltäglichen Bedarf sowie Anbindungen an den öffentlichen Verkehr sind fußläufig in wenigen Minuten erreichbar. Außerdem bietet die Lage eine optimale Infrastrukutur.
Falls wir Ihr Interesse geweckt haben, vereinbaren Sie noch heute einen Besichtigungstermin!
Wir weisen darauf hin, dass zwischen dem Vermittler und dem zu vermittelnden Dritten ein familiäres oder wirtschaftliches Naheverhältnis besteht.
Der Immobilienmakler erklärt, dass er – entgegen dem in der Immobilienwirtschaft üblichen Geschäftsgebrauch des Doppelmaklers – einseitig nur für den Vermieter tätig ist.
Infrastruktur / Entfernungen
Gesundheit
Arzt <575m
Apotheke <200m
Klinik <2.575m
Krankenhaus <3.600m
Kinder & Schulen
Kindergarten <550m
Schule <450m
Universität <4.375m
Höhere Schule <6.025m
Nahversorgung
Supermarkt <225m
Bäckerei <550m
Einkaufszentrum <2.450m
Sonstige
Bank <500m
Geldautomat <500m
Post <525m
Polizei <650m
Verkehr
Bus <300m
Straßenbahn <275m
Bahnhof <2.125m
Autobahnanschluss <1.725m
Flughafen <5.275m
Angaben Entfernung Luftlinie / Quelle: OpenStreetMap
Eckdaten
| Gesamtmiete: | 1.568,49 € |
| Fläche: | 113,65 m² |
| Zimmer: | 4 |
Basisdaten zur Immobilie
| Objektnr: | 5096/3455 |
| Art: | Wohnung |
| Land: | Österreich |
| Zustand: | Neuwertig |
| Gesamtmiete: | 1.568,49 € |
| Kaltmiete (netto): | 1.157,56 € |
| Kaltmiete: | 1.425,90 € |
| Provision: | Gemäß Erstauftraggeberprinzip bezahlt der Abgeber die Provision. |
| Betriebskosten: | 268,34 € |
| MwSt Gesamt: | 142,59 € |
| Wohnfläche: | 113,65 m² |
| Zimmer: | 4 |
| Bäder: | 1 |
| WC: | 1 |
| Balkone: | 1 |
| Garten: | 84,47 m² |
| Heizwärmebedarf: | C 100,00 kWh/m²a |
| fGEE: | 1,43 |
Ausstattung
Parkett, Fußbodenheizung, Zentralheizung
Internet und TV
Information zur Internet und TV Versorgung hier
Ihre persönliche Beratung
Daria Galic
Wohnbau 2000 Ges.m.b.H
galic@wohnbau2000.at
0732/779111-28
+43 676 847756220
