Lage der Immobilie
StadlauBeschreibung der Immobilie
Die perfekte Gelegenheit zum Frühlingsbeginn...
Planen Sie in Eigentum zu investieren? Dann ist diese Wohnung eine tolle Möglichkeit!
Im 4. Liftstock eines sehr gepflegten Gebäudes gelegen ist diese lichtdurchflutete 3 Zimmerwohnung mit gartenseitiger Sonnenterrasse in Stadlau! Die Liegenschaft verfügt über einen reizenden, großzügigen Gemeinschafsgarten, in dem es auch einen Kleinkinderspielplatz gibt.
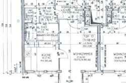
Raumaufteilung, ca 71,98 m² WNfl:
Vorzimmer, ca 2,35 m²
Wohnzimmer, ca 26,03 m², mit hübschen Erker
Küche, ca 10,47 m²
Vorzimmer 2, ca 6,39 m²
Schlafzimmer, ca 8,92 m², mit Ausgang auf die gartenseitige Terrasse, ca 3,70 m²
Schlafzimmer, ca 14,77, mit Ausgang auf eben dieselbe Terrasse
Badezimmer, ca 5,67 m²
WC, ca 1,61 m²
Ausstattung:
Gasetagenheizung, Einbauküche mit allen Geräten vorhanden; in den Räumen ist aktuell ein grauer Teppich verklebt- dieser kann als Untergrund für die Verlegung eines Parkett- oder Laminatboden genutzt werden, trockenes (uneinsichtiges) Kellerabteil mit eigenem Stromanschluss, Waschküche;
Im Gebäude kann günstig ein Garagenplatz angemietet werden (aktuell: € 61,80.-/ mtl). Eine Kaufoption besteht aber nicht.
Der hauseigene Gartenbereich kann von den Bewohnern der Liegenschaft gemeinsam genutzt werden.
Infrastruktur/ Verkehrsanbindung:
Die Verkehrsanbindung ist hier optimal, mit Bus, U-Bahn (U2), Straßenbahn, Bahnhof und Autobahnanschluss in unmittelbarer Nähe. Sie können schnell und unkompliziert in die Innenstadt gelangen oder auch Ausflüge ins Umland (zB Naherholungsgebiet Lobau) unternehmen.
Auch die Infrastruktur in der Umgebung lässt keine Wünsche offen. In der Nähe finden Sie alles, was Sie für den täglichen Bedarf benötigen, wie Ärzte (Med22) Apotheken, das SMZ Ost, Schulen, Kindergärten, Supermärkte (Spar, Billa, Hofer) und Bäckereien (Ströck, Anker).
Diese Wohnung bietet Ihnen die perfekte Kombination aus modernem Wohnkomfort und einer ruhigen, grünen Umgebung. Sie werden sich hier vom ersten Moment an wohl und zuhause fühlen. Nutzen Sie die Gelegenheit und vereinbaren Sie noch heute einen Besichtigungstermin.
Für alle weiteren Fragen und eine unverbindliche Besichtigung stehe ich Ihnen gerne zur Verfügung:
Andrea Höferstock
T: 0699 1 4444 700
E: office@immobilias.at
Viele weitere Angebote finden Sie auf unserer Homepage www.immobilias.at
!! Wir möchten Sie informieren – Maklervertrag Bestimmungen (FAGG - Fern- u. Auswärtsgeschäfte-Gesetz - - VRUG - Verbraucherrechte Richtlinie-Umsetzungsgesetz) !!
Alleine durch die Unterfertigung dieses Maklervertrages und die Besichtigung von Objekten entstehen Ihnen keine Kosten.
Erst mit dem Abschluss eines Kaufvertrages und/ oder eines Mietvertrages tritt Verdienstlichkeit ein und es wird die Provisionszahlungspflicht iSd Provisionsvereinbarung dieses Vertrages ausgelöst! Wenn der Kaufvertrag/ Mietvertrag nicht zustande kommt, bleibt unsere Tätigkeit für Sie vollkommen kostenlos.
Bitte haben Sie dafür Verständnis, dass wir Ihnen seit dem 13. Juni 2014 aufgrund der neuen EU-Richtlinie Unterlagen und Informationen zu unseren Objekten erst dann übersenden können, wenn Sie bestätigen, dass Sie unser vorzeitiges Tätigwerden wünschen und über Ihre Rücktrittsrechte aufgeklärt wurden. Hierfür erhalten Sie nach Ihrer Anfrage eine Email mit den entsprechenden Unterlagen und einem Link, um diese Punkte zu bestätigen.
Vielen Dank!
Bitte beachten Sie, dass wir aufgrund der Nachweispflicht gegenüber dem Eigentümer und um Ihre Rechte zu wahren nur Anfragen mit vollständigen Kontaktdaten (Name, Anschrift und Telefonnummer) bearbeiten können und auch nur in diesem Falle Auskünfte über Objektunterlagen und die genauen Liegenschaftsadresse geben dürfen. Wir bitten um größtmögliche Diskretion und ersuchen Sie, Innenbesichtigungen und Verhandlungen ausschließlich über uns durchzuführen.
Nebenkosten lt. Nebenkostenübersicht
Der Vollständigkeit halber halten wir fest, dass wir Ihnen bei Anmietung/Ankauf eines von uns namhaft gemachten Objektes durch Sie oder einen durch Sie namhaft gemachten Dritten bzw. bei beidseitiger Willensübereinstimmung eine Vermittlungsprovision in der Höhe von 3 Bruttomonatsmieten bei Gewerbeimmobilien, 2 Bruttomonatsmieten bei Wohnimmobilien bzw. 3 % des Kaufpreises zuzüglich der gesetzlichen Umsatzsteuer in Rechnung stellen (Honorarverordnung für Immobilienmakler, BGBl. Nr. 262 und 297/1996).
Dieses Angebot ist unverbindlich und freibleibend. Die Angaben erfolgen aufgrund der Informationen und Unterlagen, die uns vom Eigentümer und/oder Dritten zur Verfügung gestellt werden und sind ohne Gewähr. Im Übrigen gelten die allgemeinen Geschäftsbedingungen sowie die Verordnung des BM für wirtschaftliche Angelegenheiten über Standes- und Ausübungsregeln für Immobilienmakler, BGBl 297/96.
Alle Angaben im Angebot basieren auf Informationen und Unterlagen des Eigentümers und erfolgen nach bestem Wissen, jedoch ohne Gewähr auf Richtigkeit.
Noch nichts gefunden? Wir informieren Sie über geeignete Immobilienangebote noch vor allen anderen.
Legen Sie jetzt Ihren individuellen Suchagenten unter folgendem Link an. Wir schicken Ihnen passende Immobilien exklusiv vorab zu.
Suchagent anlegen - https://immobilias-realitaeten.service.immo/registrieren/de
Der Vermittler ist als Doppelmakler tätig.
!! Wir möchten Sie informieren – Maklervertrag Bestimmungen !!
(FAGG - Fern- u. Auswärtsgeschäfte-Gesetz - VRUG - Verbraucherrechte Richtlinie-Umsetzungsgesetz)
Alleine durch die Unterfertigung dieses Maklervertrages und die Besichtigung von Objekten entstehen Ihnen keinerlei Kosten.
Erst mit dem Abschluss eines Kaufvertrages und/ oder eines Mietvertrages tritt unsere Verdienstlichkeit ein und es wird die Provisionszahlungspflicht iSd Provisionsvereinbarung dieses Vertrages ausgelöst!
Wenn der Kaufvertrag/ Mietvertrag nicht zustande kommt, bleibt unsere Tätigkeit für Sie vollkommen kostenlos!
Bitte haben Sie dafür Verständnis, dass wir Ihnen seit dem 13. Juni 2014 aufgrund der neuen EU-Richtlinie Unterlagen und Informationen zu unseren Objekten erst dann übersenden können, wenn Sie bestätigen, dass Sie unser vorzeitiges Tätigwerdenwünschen und über Ihre Rücktrittsrechte aufgeklärt wurden. Hierfür erhalten Sie nach Ihrer Anfrage eine Email mit den entsprechenden Unterlagen und einem Link, um diese Punkte zu bestätigen.
Vielen Dank!
Bitte beachten Sie, dass wir aufgrund der Nachweispflicht gegenüber dem Eigentümer und um Ihre Rechte zu wahren nur Anfragen mit vollständigen Kontaktdaten (Name, Anschrift und Telefonnummer) bearbeiten können und auch nur in diesem Falle Auskünfte über Objektunterlagen und die genauen Liegenschaftsadresse geben dürfen. Wir bitten um größtmögliche Diskretion und ersuchen Sie, Innenbesichtigungen und Verhandlungen ausschließlich über uns durchzuführen.
Nebenkosten lt. Nebenkostenübersicht
Der Vollständigkeit halber halten wir fest, dass wir Ihnen bei Anmietung/Ankauf eines von uns namhaft gemachten Objektes durch Sie oder einen durch Sie namhaft gemachten Dritten bzw. bei beidseitiger Willensübereinstimmung eine Vermittlungsprovision in der Höhe von 3 Bruttomonatsmieten bei Gewerbeimmobilien, 2 Bruttomonatsmieten bei Wohnimmobilien bzw. 3 % des Kaufpreises zuzüglich der gesetzlichen Umsatzsteuer in Rechnung stellen (Honorarverordnung für Immobilienmakler, BGBl. Nr. 262 und 297/1996).
Dieses Angebot ist unverbindlich und freibleibend. Die Angaben erfolgen aufgrund der Informationen und Unterlagen, die uns vom Eigentümer und/oder Dritten zur Verfügung gestellt werden und sind ohne Gewähr.
Im Übrigen gelten die allgemeinen Geschäftsbedingungen sowie die Verordnung des BM für wirtschaftliche Angelegenheiten über Standes- und Ausübungsregeln für Immobilienmakler, BGBl 297/96.
Alle Angaben im Angebot basieren auf Informationen und Unterlagen des Eigentümers und erfolgen nach bestem Wissen, jedoch ohne Gewähr auf Richtigkeit.
Infrastruktur / Entfernungen
Gesundheit
Arzt <500m
Apotheke <500m
Klinik <1.000m
Krankenhaus <1.000m
Kinder & Schulen
Schule <500m
Kindergarten <500m
Universität <3.000m
Höhere Schule <3.500m
Nahversorgung
Supermarkt <500m
Bäckerei <500m
Einkaufszentrum <1.500m
Sonstige
Geldautomat <500m
Bank <500m
Post <500m
Polizei <1.000m
Verkehr
Bus <500m
U-Bahn <500m
Straßenbahn <500m
Bahnhof <500m
Autobahnanschluss <1.000m
Angaben Entfernung Luftlinie / Quelle: OpenStreetMap
Eckdaten
| Kaufpreis: | 379.000,00 € |
| Fläche: | 71,98 m² |
| Zimmer: | 3 |
Basisdaten zur Immobilie
| Objektnr: | 12334 |
| Art: | Wohnung - Terrassenwohnung |
| Land: | Österreich |
| Baujahr: | 1995 |
| Alter: | Neubau |
| Kaufpreis: | 379.000,00 € |
| Provision: | 3% des Kaufpreises zzgl. 20% USt. |
| Betriebskosten: | 272,29 € |
| MwSt Gesamt: | 27,23 € |
| Wohnfläche: | 71,98 m² |
| Nutzfläche: | 75,68 m² |
| Zimmer: | 3 |
| Bäder: | 1 |
| WC: | 1 |
| Terrassen: | 1 |
| Heizwärmebedarf: | C 66,90 kWh/m²a |
| fGEE: | C 1,26 |
Ausstattung
Fliesen, Teppichboden, Gas, Etagenheizung, Einbauküche, Personenaufzug, Badewanne, Tiefgarage, Wasch/Trockenraum
Internet und TV
Information zur Internet und TV Versorgung hier
Ihre persönliche Beratung
Andrea Höferstock
Immobilias Realitäten e.U.
andrea.hoeferstock@immobilias.at
+43 699 1 4444 700
