Zinshaus mit Baubewilligung für Umbau & Aufstockung in Bestlage – Zentrum Stockerau
Zinshaus Renditeobjekt
,
2000
Stockerau
Beschreibung der Immobilie
Zinshaus mit Baubewilligung für Umbau & Aufstockung in Bestlage – Zentrum Stockerau
Zum Verkauf steht ein charmantes Zinshaus in ausgezeichneter Lage im Zentrum von Stockerau, das durch eine baubewilligte Planung für Umbau und Aufstockung überzeugt. Das Projekt umfasst großzügige, stilvolle Stadtwohnungen mit einer Wohnfläche zwischen 70 m² und 150 m².
Durch die klassischen Altbau-Raumhöhen entsteht ein unvergleichliches Wohngefühl mit historischem Flair. Teilweise verfügen die Einheiten über Balkone oder Terrassen, die zusätzlichen Wohnkomfort bieten.
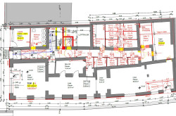
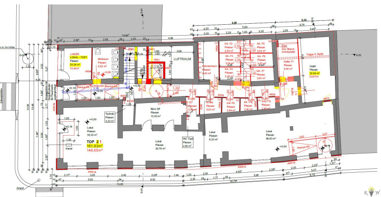
Im Erdgeschoss befinden sich eine große, vielseitig nutzbare Gewerbefläche – ideal geeignet für Büro, Verkaufsräume oder Gastronomie – sowie ein kleines Einraum-Lokal.
Highlights des Projekts
-
Baubewilligung bereits erteilt – Sie können sofort mit dem Bau beginnen, sämtliche Behördenwege sind abgeschlossen.
-
Zentrale Lage im Stadtzentrum von Stockerau mit ausgezeichneter Infrastruktur und Nahversorgung.
-
8 Attraktive Wohnflächen zwischen ca. 70 m² und 150 m² – ideal für Familien, Paare oder Anleger.
-
Photovoltaik am Dach
-
Aufzug
-
Altbauflair dank großzügiger Raumhöhen und klassischer Architektur.
-
Teilweise Balkone und Terrassen für ein modernes, urbanes Wohngefühl.
-
Großzügige Gewerbefläche im Erdgeschoss – perfekt geeignet für Büro, Verkauf oder Gastronomie.
-
Zusätzlich: ein kleines Einraum-Lokal mit separatem Zugang.
-
Durchdachte und bewährte Planung – effizient, marktfähig und architektonisch ansprechend.
Potenzial und Nutzungsmöglichkeiten
Ob Vermietung oder Verkauf der Einheiten – dieses Projekt bietet hervorragende Rendite- und Wertsteigerungschancen.
Das geplante Wohnkonzept vereint stilvolles Wohnen im Altbauflair mit den Vorteilen moderner Bauweise.
Die Kombination aus zentraler Lage, bewilligtem Ausbauprojekt und flexibler Nutzung macht dieses Objekt zu einer einmaligen Gelegenheit für Investoren und Bauträger.
Ein außergewöhnliches Entwicklungsprojekt im Herzen von Stockerau – bewilligt, geplant und startbereit.
Profitieren Sie von einem klar strukturierten, genehmigten Konzept und der Möglichkeit, ohne Verzögerung in die Realisierung zu gehen.
Ich habe Ihr Interesse geweckt? Dann freue ich mich auf Ihre Kontaktaufnahme.
Der Vermittler ist als Doppelmakler tätig.
Eckdaten
| Kaufpreis: | 945.000,00 € |
| Fläche: | 926,85 m² |
Basisdaten zur Immobilie
| Objektnr: | 529 |
| Art: | Zinshaus Renditeobjekt |
| Land: | Österreich |
| Zustand: | Projektiert |
| Kaufpreis: | 945.000,00 € |
| Kaufpreis / m²: | auf Anfrage |
| Provision: | 3% des Kaufpreises zzgl. 20% USt. |
| Wohnfläche: | 926,85 m² |
| Grundstücksfl.: | 402,00 m² |
| Verkaufsfläche: | 148,65 m² |
Internet und TV
Information zur Internet und TV Versorgung hier
Ihre persönliche Beratung
Katrin Peck
KW Immobilien
peck@kw-immo.at
+43 676 371 85 72
