So lässt es sich leben: Sonnenterrasse, 2 Wohnebenen und herausragende Architektur! Nahe Klosterneuburg und 16 Min. bis Wien!
Haus
,
3400
Klosterneuburg
Beschreibung der Immobilie
Die Adresse: Haselbacherstraße, 3413 ST. ANDRÄ-WÖRDERN/HINTERSDORF
2 SCHLAFZIMMER, 2 WOHNZIMMER – PERFEKT FÜR EIN PAAR MIT 1 KIND
Diese exklusive Immobilie überzeugt nicht nur durch ihre schöne Lage - zurückgesetzt von der Straße für mehr Intimsphäre - sondern vor allem durch ihre Aufteilung und die Freiflächen.
2009 bis 2012 wurde sie saniert und modernisiert.
Neben dem Eingang zum Grundstück befindet sich ein Carport für zwei Autos. Von hier führt ein gepflasterter Weg – bzw. eine Zufahrt – hinauf zum Haus, vorbei am ersten von zwei Lagerräumen, der sich ebenerdig unter der vorderen Terrasse befindet.
Schon bei Betreten des Hauses über den Vorraum öffnet sich Ihnen der große, helle Wohnbereich durch die offene Raumplanung.
Insgesamt 4 Zimmer plus Nebenräume, mit einer Gesamtfläche von ca. 138m², ein wunderbar großzügiges Wohnzimmer mit einer schönen und hochwertigen Küche, zwei Bäder, ein gemütlicher Kaminofen, sonnige Freiflächen und viele Highlights mehr erwarten Sie hier!
Hinter dem Haus befindet sich die große Sonnenterrasse mit Platz zum Relaxen und Blick in den Grünbereich mit Sträuchern und Bäumen.
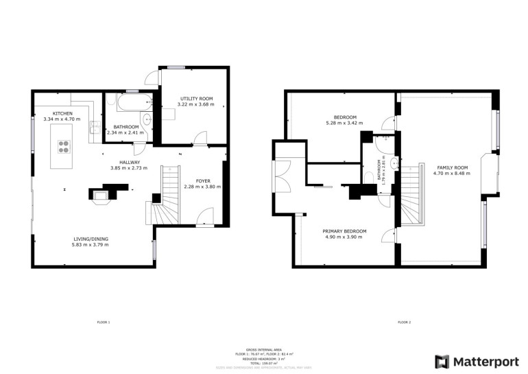
DIE AUFTEILUNG:
Erdgeschoß: Vorzimmer, Wohnzimmer mit Kamin und Küche, Wirtschafts-/Technikraum, Bad mit Wanne & WC mit Fenster, Terrasse ostseitig
Obergeschoß: Ein großes Schlafzimmer mit angeschlossenem Bad (mit Dusche und WC) und Balkon, ein weiteres, etwas kleineres Schlafzimmer und ein zweiter Wohnraum / TV Zimmer (als Schlafzimmer nicht geeignet, da Durchgangszimmer), Ausgang zur großen, westseitigen Terrasse
Jeder Winkel in diesem wunderbaren Haus versprüht viel Charme und vermittelt ein fantastisches Wohngefühl! Sie sehen, auch wir haben uns schon in diese Immobilie verliebt ...
AUF EINEN BLICK:
- Grundstücksfläche ca. 850m²
- Baujahr 1955 – 2009-2012 saniert und modernisiert
- Wohnnutzfläche ca. 138m²
- 2 großzügige, sonnige Terrassen (Ost- und Westseitig)
- 2 Wohnebenen
- 2 Schlafzimmer
- 2 Wohnzimmer
- 1 Wirtschafts- /Technikraum (Therme, Waschmaschine, Stauraum)
- 2 Bäder (EG mit Wanne, OG mit Dusche)
- Einbauküche mit Kücheninsel und Steinplatte
- Zentralheizung Gas
- Klimaanlage in der oberen Wohnebene
- Kaminofen Holz im EG
- 2 Lagerräume
- Doppelcarport
- Außensauna
- kleiner Keller über Bodenklappe im Vorraum begehbar
- Großer, ebener Vorgarten, hinter dem Haus Grünfläche in Hanglage mit Bewaldung
INVESTITIONEN/UMBAUMASSNAHMEN 2009-2012
- Terrassen, Stiegenaufgänge
- Zaun
- Carport
- Fenster/Dachflächenfenster
- teilweise Böden
- Küche
- Feuchtigkeitsisolierung wo nötig
- Wohnzimmer Obergeschoß 2009 neu errichtet
- Strom Sicherungen 2012
- Therme 2009 installiert
DIE LAGE:
Genial! Die Nähe zu Wien ist natürlich herausragend.
Mit dem Auto: Je nach Verkehrslage sind Sie in ca. 12 Min. beim Park+Ride Klosterneuburg/Weidling, in ca. 10 Minuten am Stadtplatz Klosterneuburg, in ca. 22 Min. in der Millennium City Wien.
Ein Supermarkt ist 3 Minuten entfernt.
Die Busstation Haselbach/Hintersdorf "Weingraben" (Linie VOR 405) ist zu Fuß nur 300 Meter entfernt.
St. Andrä-Wördern ist "Mittelschulgemeinde". Aber es gibt hier nicht nur die Informatik-Mittelschule, generell befinden sich in der Nähe Schulen und Kindergärten, ebenso wie Ärzte und eine Apotheke.
DER KAUFPREIS:
€ 599.000.- (zzgl. 3,6% Maklerprovision inkl. 20% USt.)
Unter bestimmten Voraussetzungen (Anmeldung als Hauptwohnsitz, ...), kommen Sie jetzt in den Genuss der Gebührenbefreiung von der Grundbucheintragungsgebühr (1,1%) und der Eintragungsgebühr des Pfandrechts (1,2%).
SIE SIND NOCH UNSCHLÜSSIG, OB IHRE FINANZIERUNG GESICHERT IST?
Ihre Hausbank benötigt im Normalfall 3-4 Wochen, um Ihnen mitzuteilen, ob Ihr Kreditantrag bewilligt wird. Unser Finanzierungspartner sagt Ihnen nicht nur anhand Ihrer Unterlagen in kürzester Zeit, ob die Finanzierung klappen wird, er sorgt auch für den besten und günstigsten Wohnkredit, da er Zugang zu den besten Angeboten aller relevanten Banken hat.
Last but not least: Unser Finanzberater kostet Sie nichts, denn er bekommt seine Provision von der finanzierenden Bank!
Ich freue mich auf Ihre Anfrage, bitte ausschließlich über das Inserat unter Angabe Ihrer vollständigen Daten. Für zusätzliche Auskünfte stehe ich Ihnen auch gerne telefonisch zur Verfügung.
Die von uns gemachten Angaben beruhen auf Informationen und Mitteilungen durch Dritte, insbesondere durch die Verkäufer und sind daher ohne Gewähr.
Wir weisen darauf hin, dass zwischen dem Vermittler und dem zu vermittelnden Dritten ein familiäres oder wirtschaftliches Naheverhältnis besteht.
Der Vermittler ist als Doppelmakler tätig.
Infrastruktur / Entfernungen
Gesundheit
Arzt <3.000m
Apotheke <3.000m
Krankenhaus <7.000m
Klinik <4.500m
Kinder & Schulen
Schule <3.000m
Kindergarten <1.500m
Universität <2.000m
Nahversorgung
Supermarkt <2.000m
Bäckerei <3.500m
Sonstige
Bank <3.500m
Geldautomat <3.500m
Post <3.000m
Polizei <3.500m
Verkehr
Bus <500m
Straßenbahn <9.000m
Bahnhof <4.500m
Autobahnanschluss <8.500m
Flughafen <9.500m
Angaben Entfernung Luftlinie / Quelle: OpenStreetMap
Eckdaten
| Kaufpreis: | 599.000,00 € |
| Fläche: | 138,00 m² |
| Zimmer: | 4,50 |
Basisdaten zur Immobilie
| Objektnr: | 4867 |
| Art: | Haus |
| Land: | Österreich |
| Baujahr: | 1955 |
| Zustand: | Gepflegt |
| Alter: | Neubau |
| Kaufpreis: | 599.000,00 € |
| Wohnfläche: | 138,00 m² |
| Grundstücksfl.: | 850,00 m² |
| Lagerfläche: | 40,00 m² |
| Zimmer: | 4,50 |
| Bäder: | 2 |
| WC: | 2 |
| Balkone: | 1 |
| Terrassen: | 2 |
| Stellplätze: | 4 |
| Keller: | 30,00 m² |
| Heizwärmebedarf: | C 64,00 kWh/m²a |
| fGEE: | C 1,08 |
Ausstattung
Fliesen, Parkett, Steinboden, Gas, Kamin, Zentralheizung, Einbauküche, Wohnküche / offene Küche, Westbalkon, Ostbalkon, Badewanne, Dusche, Kabel/Satelliten-TV, Carport, Parkplatz, Sauna, Wasch/Trockenraum
Internet und TV
Information zur Internet und TV Versorgung hier
Ihre persönliche Beratung
Thomas Kisch
Perfect Deal Immobilien OG
thomas.kisch@perfect-deal.at
+43 699 172 00 604
