2-ZIMMER | 3. OBERGESCHOSS | LOGGIA & HOFRUHELAGE | BEZUG AB 01.01.2026
Wohnung
- Etage,
3100
St. Pölten
,
Rennbahnstraße
Beschreibung der Immobilie
Hochwertig ausgestattete Wohneinheiten
Die Wohnungen bieten 2 bis 4 Zimmer mit Wohnflächen von ca. 37 m² bis 127 m². Es stehen großzügige Allgemeinbereiche zur Verfügung, darunter Kinderwagen- und Fahrradabstellplätze. Ein großer, gut ausgestatteter Kinderspielplatz auf dem Gelände der Wohnanlage dient nicht nur als Treffpunkt für Kinder und Jugendliche, sondern fördert auch das Miteinander der Erwachsenen in der Gemeinschaft.
Informationen zum Projekt & Ausstattung:
- helle, offene Wohn-Ess-Bereiche
- 2,70 m hohe Räume
- Echtholz-Parkettböden in den Wohnräumen
- hochwertiges Feinsteinzeug in den Nassräumen
- Fernwärme, Fußbodenheizung
- Alu-Kunststoff-Fenster mit 3-Scheiben-Isolierverglasung
- weiße Wohnungseingangstüren - einbruchshemmend mit Mehrfachverriegelung ohne Türschließer
- weiße Holzinnentüren
- moderne und elegante Marken-Sanitärausstattung mit Design-Unterputzarmaturen
- Badewannen in Sanitäracryl, bzw. bodennahe Duschen mit Glastrennwand
- W-LAN, Anschlüsse für A1 und Kabelplus vorhanden
Lage
Die Neubauwohnungen befinden sich in zentraler Lage in St. Pölten, Niederösterreich. Das Projekt liegt östlich der Altstadt und hat daher eine gute Anbindung an öffentliche Verkehrsmittel sowie Kultur- und Freizeiteinrichtungen. Fußläufig benötigt man etwa 12 Minuten zum St. Pölten Hauptbahnhof.
Durch den Railjet und WESTgreen gelangt man öffentlich in weniger als 35 Minuten zum Wiener Hauptbahnhof. Mit dem Auto gelangt man über die A1 in weniger als einer Stunde nach Wien.
In unmittelbarer Nähe des Projektes befinden sich Lebensmittelläden, Apotheke, Post, Drogerie, Restaurants, Bars, Ärzte und Krankenhäuser. Besondern hervorgehoben wird hier das Universitätsklinikum St. Pölten, mit welchem eine optimale medizinische Versorgung gewährleistet wird. Die Stadt bietet des weiteren auch ein breit gefächertes Bildungsangebot, beispielsweise an der FH St. Pölten.
Sonstiges
- Bei den Fotos der einzelnen Wohneinheiten handelt es sich um Bilder der Musterwohnung
- Kosten für Strom und Heizung sind nicht in dem angegeben Mietpreis enthalten und werden verbrauchsabhängig vom Energielieferanten in Rechnung gestellt
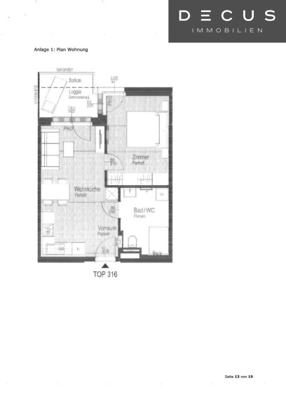
Raumaufteilung top 316:
- Wohnküche (ohne Küche!)
- Schlafzimmer
- Badezimmer mit Dusche
- Balkon/Loggia
Wichtig:
Die Wohnung wird ohne Küche übergeben und bietet somit Raum für eine individuelle Küchengestaltung.
Anfragen:
Bitte senden Sie Ihre Anfrage über das Kontaktformular – ich melde mich anschließend zeitnah mit weiteren Informationen und einem Terminvorschlag. Ich freue mich auf Ihre Anfrage!
Sonstiges:
- Diese Wohnung ist derzeit noch vermietet. Besichtigungen finden in Koordination mit dem aktuellen Mieter statt. Gegebenenfalls sind Besichtigungen erst nach der Rückgabe der Wohnung möglich.
- Zuzüglich zu den angegebenen Kosten fallen verbrauchsabhängige Kosten für Strom, Heizung und Warmwasser an
- Der Wohnung ist ein Kellerabteil im UG zugeordnet
- zusätzliche Kosten: 150 EUR zzgl. 20 % USt Bearbeitungsgebühr Hausverwaltung (einmalig)
- Bei den Fotos handelt es sich um Bilder der Musterwohnung
Wir weisen darauf hin, dass zwischen dem Vermittler und dem zu vermittelnden Dritten ein familiäres oder wirtschaftliches Naheverhältnis besteht.
Der Immobilienmakler erklärt, dass er – entgegen dem in der Immobilienwirtschaft üblichen Geschäftsgebrauch des Doppelmaklers – einseitig nur für den Vermieter tätig ist.
DECUS Immobilien GmbH – Wir beleben Räume
Für weitere Informationen und Besichtigungen steht Ihnen gerne Frau Anna-Lena Halbeisen unter der Mobilnummer +43 699 112 08 411und per E-Mail unter halbeisen@decus.at persönlich zur Verfügung.
www.decus.at | office@decus.at
Wichtige Informationen
Bitte beachten Sie, dass per 13.06.2014 eine neue Richtlinie für Fernabsatz- und Auswärtsgeschäfte in Kraft getreten ist.
Ab 1.4.2024 entfallen die Grundbuchs- und Pfandrechtseintragungsgebühren vorübergehend für Eigenheime bis zu einer Bemessungsgrundlage von EUR 500.000,-. Voraussetzung ist das dringende Wohnbedürfnis, ausgenommen davon sind vererbte oder geschenkte Immobilien. Die Befreiung ist jedoch für den Einzelfall zu prüfen, DECUS Immobilien übernimmt hierzu keine Haftung.
Ab 01.07.2023 gilt das Erstauftraggeber-Prinzip bei Wohnungsmietverträgen, ausgenommen davon sind Dienst-/Natural-/Werkswohnungen. Wir dürfen gem. § 17 Maklergesetz darauf hinweisen, dass wir auf die Doppelmaklertätigkeit gem. § 5 Maklergesetz bei Wohnungsmietverträgen verzichten und nur noch einseitig tätig sind (bei den restlichen Vermittlungsarten nicht) und ein wirtschaftliches Naheverhältnis zu unseren Auftraggebern besteht.
Im Falle eines Abschlusses mit Ihnen oder einem von Ihnen namhaft gemachten Dritten bzw. bei beidseitiger Willensübereinstimmung beträgt unser Honorar (lt. Honorarverordnung für Immobilienmakler) 2 Bruttomonatsmieten (BMM) bei Dienst-/Natural-/Werkwohnungen sowie Suchaufträgen, 3 BMM bei Gewerbe-, PKW-, Keller- und Lagermietverträgen sowie bei Kaufobjekten 3 % des Kaufpreises, zuzüglich der gesetzlichen Umsatzsteuer.
Dieses Objekt wird Ihnen unverbindlich und freibleibend angeboten. Oben angeführte Angaben basieren auf Informationen und Unterlagen des Eigentümers und sind unsererseits ohne Gewähr.
Nähere Informationen sowie unsere AGBs und die Nebenkostenübersichtsblatt finden Sie auf unserer Homepage www.decus.at unter "Service" - "Rechtliches zum FAGG" sowie im Anhang der zugesendeten Objekt-Exposés!
Infrastruktur / Entfernungen
Gesundheit
Arzt <500m
Apotheke <500m
Klinik <750m
Krankenhaus <1.000m
Kinder & Schulen
Schule <500m
Kindergarten <750m
Universität <750m
Höhere Schule <500m
Nahversorgung
Supermarkt <500m
Bäckerei <750m
Einkaufszentrum <500m
Sonstige
Bank <500m
Geldautomat <500m
Polizei <750m
Post <500m
Verkehr
Bus <250m
Autobahnanschluss <2.500m
Bahnhof <750m
Flughafen <6.500m
Angaben Entfernung Luftlinie / Quelle: OpenStreetMap
Eckdaten
| Gesamtmiete: | 749,00 € |
| Fläche: | 43,41 m² |
| Zimmer: | 2 |
Basisdaten zur Immobilie
| Objektnr: | 1152841 |
| Art: | Wohnung - Etage |
| Land: | Österreich |
| Gesamtmiete: | 749,00 € |
| Kaltmiete (netto): | 561,46 € |
| Kaltmiete: | 680,91 € |
| Provision: | Gemäß Erstauftraggeberprinzip bezahlt der Abgeber die Provision. |
| Betriebskosten: | 110,41 € |
| MwSt Gesamt: | 68,09 € |
| Wohnfläche: | 43,41 m² |
| Zimmer: | 2 |
| Bäder: | 1 |
| WC: | 1 |
| Balkone: | 1 |
| Heizwärmebedarf: | A 20,10 kWh/m²a |
| fGEE: | A+ 0,63 |
Ausstattung
Fernwärme, Personenaufzug
Internet und TV
Information zur Internet und TV Versorgung hier
Ihre persönliche Beratung
Anna-Lena Halbeisen
DECUS Immobilien GmbH
halbeisen@decus.at
+43 699 112 08 411
+43 699 112 08 411
F +43 1 35 600 10
