Immobilie merken

Zinshaus in gefragter Lage des 18. Bezirks - hoher Leerstand & ausbaufähiger Rohdachboden

Zinshaus Renditeobjekt , 1180 Wien

Lage der Immobilie

Die Liegenschaft in der Schopenhauerstraße 30, 1180 Wien befindet sich in einer der begehrtesten Wohnlagen des 18. Wiener Gemeindebezirks Währing. Diese Adresse vereint urbanen Komfort mit einer ruhigen, eleganten Wohnatmosphäre und zählt zu den gefragten Wohngegenden Wiens. Das Umfeld ist geprägt von stilvollen Altbauten, gepflegten Wohnhäusern und einer diskreten Nachbarschaft. Exzellente Nahversorgung, ausgewählte Gastronomie sowie hochwertige Dienstleistungsangebote befinden sich in angenehmer Gehdistanz und erfüllen höchste Ansprüche an den täglichen Komfort. Eine sehr gute öffentliche Verkehrsanbindung gewährleistet eine rasche Erreichbarkeit der Wiener Innenstadt und wichtiger Verkehrsknotenpunkte, was die Vermietbarkeit zusätzlich stärkt. Einkaufsmöglichkeiten, Nahversorgung, Gastronomie und Dienstleistungen befinden sich in unmittelbarer Umgebung und erhöhen die Attraktivität für Mieter. Grünflächen und Erholungsräume in der näheren Umgebung steigern die Wohnqualität nachhaltig und tragen zur langfristigen Wertentwicklung der Immobilie bei. Die Schopenhauerstraße steht für gehobenes Wohnen, diskrete Eleganz und nachhaltige Wertbeständigkeit – eine Adresse für all jene, die urbanen Lebensstil auf hohem Niveau schätzen. Insgesamt bietet die Lage eine ideale Grundlage für eine sichere Investition mit stabilen Mieteinnahmen, guter Wiederverkäuflichkeit und langfristigem Wertsteigerungspotenzial in einem der etabliertesten Wohnbezirke Wiens. .

Beschreibung der Immobilie

Objektbeschreibung 

Auf einem ca. 514 m² großen Grundstück befindet sich ein voll unterkellertes Bestandsobjekt mit vielseitiger Nutzungsstruktur und erheblichem Ertrags- und Entwicklungspotenzial. Die Liegenschaft bietet eine attraktive Kombination aus Gewerbe- und Wohnnutzung in einer nachhaltig nachgefragten Lage des 18. Wiener Gemeindebezirks.
Ein Abriss kommt für die Gemeinde nicht in Betracht - das Haus ist sanierungsbedürftig und kann mit etwas Geschick von einem Rohdiamanten zu einem geschliffenem Juwel erstrahlen. Zudem ist es sehr realistisch, die Mieteinnahmen aus der Vermietung des EG zu erhöhen.
 

Gebäudestruktur & Nutzung

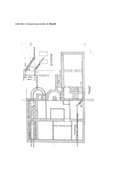
Keller

  • Vollunterkellerung mit ca. 200 m²

  • Wird derzeit von der KFZ Werkstatt als Lager genutzt


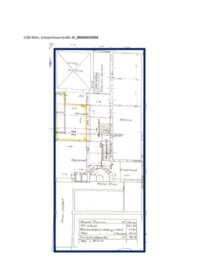
Erdgeschoss – Gewerbe

  • Nutzung der gesamten Fläche im Erdgeschoss als Werkstatt 

1. Obergeschoss – 3 Wohnungen

  • Gesamtfläche ca. 140 m² - zusätzlich 100 m2 als Lagerraum über der Werkstatt vorhanden

  • Alle Einheiten leerstehend, sofortige Verwertungs- bzw. Vermietungsmöglichkeit


2. Obergeschoss – 3 Wohnungen

  • 1 Wohnung mit Leerstand mit ca. 55 m²

  • 2 zusammengelegte Wohnungen: ca. 90 m² derzeit vermietet, wird im Juni 2026 bestandsfrei


Dachgeschoss – Wohnen

  • 1 Raum, ca. 70 m² derzeit als Lager in Verwendung

  • Es besteht die Möglichkeit den Rohdachboden auf ca. 274 m² Wohnraum auszubauen - Studie zum Dachbodenausbau liegt bereits vor.

Übersicht Flächen:

  • Keller:    200 m2
  • EG:        350 m2 + Freifläche von ca.150 m2
  • OG1:     140 m2 + 100 m2 
  • OG2:      140 m2
  • DG:          70 m2 Bestand - Ausbaumöglichkeit auf ca. 275 m2 gesamt. 
     

Das Gebäude wurde aktuell nicht vermessen - die Alt Pläne sind dem Exposé angefügt!


Ein Energieausweis wurde beantragt und kann nachgereicht werden, sobald dieser aufliegt.

Investment-Highlights

  • Hoher Leerstandsanteil ermöglicht rasche Optimierung der Mieterträge

  • Upside-Potenzial im Gewerbebereich

  • Entwicklung und Ausbau des Rohdachbodens

  • Attraktive Mischung aus Wohn- und Gewerbeflächen

  • Nachhaltige Nachfrage- und Wertsteigerungslage in 1180 Wien

Zögern Sie nicht - bei Interesse vereinbare ich gerne einen Termin zur Besichtigung mit Ihnen.
Für weitere Fragen stehe ich gerne zu Verfügung.

Wir weisen darauf hin, dass zwischen dem Vermittler und dem zu vermittelnden Dritten ein familiäres oder wirtschaftliches Naheverhältnis besteht.

Der Vermittler ist als Doppelmakler tätig.

Infrastruktur / Entfernungen

Gesundheit
Arzt <500m
Apotheke <500m
Klinik <500m
Krankenhaus <500m

Kinder & Schulen
Schule <500m
Kindergarten <500m
Universität <500m
Höhere Schule <1.000m

Nahversorgung
Supermarkt <500m
Bäckerei <500m
Einkaufszentrum <1.500m

Sonstige
Geldautomat <500m
Bank <500m
Post <500m
Polizei <500m

Verkehr
Bus <500m
U-Bahn <500m
Straßenbahn <500m
Bahnhof <500m
Autobahnanschluss <2.500m

Angaben Entfernung Luftlinie / Quelle: OpenStreetMap

Eckdaten

Kaufpreis: 1.590.000,00 €
Fläche: 514,00 m²

Basisdaten zur Immobilie

Objektnr: 7464/276
Art: Zinshaus Renditeobjekt
Land: Österreich
Alter: Altbau
Kaufpreis: 1.590.000,00
Kaufpreis / m²: auf Anfrage
Provision: 3% des Kaufpreises zzgl. 20% USt.
Grundstücksfl.: 514,00 m²
Keller: 200,00 m²

Internet und TV

Information zur Internet und TV Versorgung hier




Immobilie anfragen




Ihre persönliche Beratung

Estoria Real Estate GmbH

Clarissa Izzo

Estoria Real Estate GmbH

ci@estoria.at

+4368110304587


Estoria Real Estate GmbH - Immobilen Makler

Erzherzog-Karl-Straße 68 / 11, 1220 Wien

https://www.estoria.at