Lage der Immobilie
Hervorragende Lage direkt im Stadtzentrum. Die gesamte Infrastruktur der Welser Innenstadt liegt praktisch vor der Haustüre.Beschreibung der Immobilie
Diese Wohnung wurde 2024 renoviert und mit einer neuen Küche samt Geräten ausgestattet.
Sie liegt im 2. Stock und ist bequem mit dem Lift erreichbar.
Die Raumaufteilung mit 2 Badezimmern ermöglicht eine einfache Aufteilung in zwei Bereiche und ist daher auch ideal für eine Wohngemeinschaft geeignet.
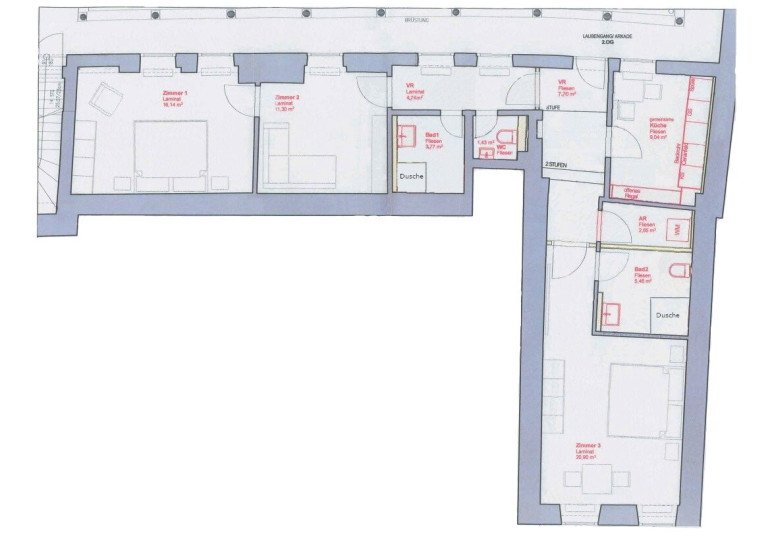
Raumaufteilung: Küche, 3 Zimmer, Abstellraum, Bad/WC, Bad, WC, Vorraum
Bei einer WG-Nutzung wäre die Aufteilung wie folgt:
gemeinsame Nutzung - Küche, Abstellraum, Vorraum
Wohnbereich 1 mit ca. 26 m² - 1 Zimmer, Bad mit Dusche und WC
Wohnbereich 2 mit ca. 37 m² - 2 Zimmer, Bad mit Dusche, WC, Vorraum
Eine im Innenhof gelegene Terrasse kann von allen Mietern des Hauses genutzt werden.
Der Immobilienmakler erklärt, dass er – entgegen dem in der Immobilienwirtschaft üblichen Geschäftsgebrauch des Doppelmaklers – einseitig nur für den Vermieter tätig ist.
Infrastruktur / Entfernungen
Gesundheit
Arzt <150m
Apotheke <100m
Klinik <725m
Krankenhaus <1.750m
Kinder & Schulen
Schule <250m
Kindergarten <425m
Universität <350m
Nahversorgung
Supermarkt <200m
Bäckerei <100m
Einkaufszentrum <2.900m
Sonstige
Bank <50m
Geldautomat <100m
Post <150m
Polizei <300m
Verkehr
Bus <200m
Autobahnanschluss <3.000m
Bahnhof <650m
Flughafen <2.800m
Angaben Entfernung Luftlinie / Quelle: OpenStreetMap
Eckdaten
| Gesamtmiete: | 982,00 € |
| Fläche: | 83,13 m² |
| Zimmer: | 3 |
Basisdaten zur Immobilie
| Objektnr: | 160938 |
| Art: | Wohnung |
| Land: | Österreich |
| Zustand: | Teil_vollrenoviert |
| Alter: | Altbau |
| Gesamtmiete: | 982,00 € |
| Kaltmiete (netto): | 620,00 € |
| Kaltmiete: | 827,27 € |
| Provision: | Gemäß Erstauftraggeberprinzip bezahlt der Abgeber die Provision. |
| Betriebskosten: | 207,27 € |
| Heizkosten: | 60,00 € |
| MwSt Gesamt: | 94,73 € |
| Wohnfläche: | 83,13 m² |
| Zimmer: | 3 |
| Bäder: | 2 |
| WC: | 2 |
| Heizwärmebedarf: | E 196,00 kWh/m²a |
| fGEE: | E 2,63 |
Ausstattung
Personenaufzug
Internet und TV
Information zur Internet und TV Versorgung hier
Ihre persönliche Beratung
Maria Wimmer
Wimmer Realitäten GmbH
maria.wimmer@wimmer-real.at
+43 7242 219 003
+43 664 844 2002
F +43 7242 219 003-33
