Josef-Kutscha-Gasse - 3 Zimmmer DG-Maisonette mit Galerie, 3 Terrassen und Garage
Wohnung
,
1230
Wien
Beschreibung der Immobilie
1230 Wien Josef-Kutscha-Gasse,
vermietet wird eine helle 93,84 m² große 3 Zimmer DG-Maisonette (mit Klimaanlage) und insgesamt 3 Terrassen mit einer Nutzfläche von 75,83m2,
die Wohnung ist zur Zeit noch vermietet und kann ab dem 1. Mai 2026 bezogen werden,
93,84m2 Wohnfläche (aufgeteilt auf 2 Ebenen) zzgl. 3 Terrassen mit 75,83m2 Nutzfläche,
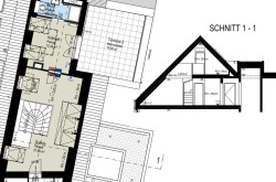
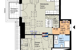
1. DG:
Wohnzimmer mit offener Küche und Zugang zur 1. Terrasse (3,55m2), Schlafzimmer, Bad mit Dusche und WC, Abstellraum, Vorzimmer,
2.DG:
Schlafzimmer mit angrenzendem Bad (mit Dusche und WC) und Zugang zur 2. Terrasse (19,06m2) und Galerie mit Zugang zur 3. Terrasse (53,22m2),
Fernwärme,
das Objekt liegt im 23. Wiener Gemeindebezirk nahe des Schlosses Liesing,
Mietdauer: 5 Jahre,
bei Bedarf kann ein Garagenstellplatz für extra € 110,00 brutto/Monat angemietet werden,
BMM: € 1.690,00 (inkl. BK und 10% USt.)
Nebenkosten bei Anmietung:
Kaution: € 4.770,00
Errichtungsgebühr für den Mietvertag: € 300,00 (inkl. 20% USt.)
Der Immobilienmakler erklärt, dass er – entgegen dem in der Immobilienwirtschaft üblichen Geschäftsgebrauch des Doppelmaklers – einseitig nur für den Vermieter tätig ist.
Infrastruktur / Entfernungen
Gesundheit
Arzt <500m
Apotheke <500m
Klinik <1.000m
Krankenhaus <2.500m
Kinder & Schulen
Schule <500m
Kindergarten <500m
Universität <6.000m
Höhere Schule <6.500m
Nahversorgung
Supermarkt <500m
Bäckerei <500m
Einkaufszentrum <500m
Sonstige
Geldautomat <500m
Bank <500m
Post <1.000m
Polizei <500m
Verkehr
Bus <500m
U-Bahn <2.500m
Straßenbahn <1.000m
Bahnhof <1.000m
Autobahnanschluss <2.500m
Angaben Entfernung Luftlinie / Quelle: OpenStreetMap
Eckdaten
| Gesamtmiete: | 1.690,00 € |
| Fläche: | 93,84 m² |
| Zimmer: | 3 |
Basisdaten zur Immobilie
| Objektnr: | 6876/1654 |
| Art: | Wohnung |
| Land: | Österreich |
| Alter: | Neubau |
| Gesamtmiete: | 1.690,00 € |
| Kaltmiete (netto): | 1.279,11 € |
| Kaltmiete: | 1.533,18 € |
| Provision: | Gemäß Erstauftraggeberprinzip bezahlt der Abgeber die Provision. |
| Betriebskosten: | 219,07 € |
| MwSt Gesamt: | 156,82 € |
| Wohnfläche: | 93,84 m² |
| Nutzfläche: | 93,84 m² |
| Gesamtfläche: | 93,84 m² |
| Zimmer: | 3 |
| Bäder: | 2 |
| WC: | 2 |
| Terrassen: | 3 |
| Heizwärmebedarf: | B 30,81 kWh/m²a |
| fGEE: | A 0,75 |
Ausstattung
Parkett, Fliesen, Fernwärme, Wohnküche / offene Küche, Personenaufzug, Dusche, Garage
Internet und TV
Information zur Internet und TV Versorgung hier
Ihre persönliche Beratung
Michelle Gnadenberger
BRI Immobilienmakler GmbH
mg@brichard.at
+43 676 7043377
