Geförderte Seniorenwohnung mit sonniger Loggia, barrierearmem Komfort und Aufzug - exklusiv nur für Pensionisten, die ruhig und selbstständig wohnen möchten!
Wohnung
,
4400
Steyr
,
Franz-Sebek-Straße
Beschreibung der Immobilie
Steyr / Münichholz / Sebekstraße 28
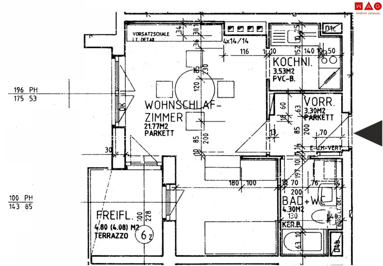
In ruhiger Lage im Stadtteil Münichholz in Steyr erwartet Sie diese gut geschnittene, barrierearme Wohnung mit angenehmem Wohnkomfort. Der großzügige Wohn- und Schlafbereich mit sonniger Loggia, eine separate Küche sowie ein praktischer Vorraum schaffen ein gemütliches Zuhause. Ein barrierefreies Bad, Aufzug und Kellerabteil runden das Angebot ideal ab und machen die Wohnung besonders alltagstauglich.
Highlights/Besonderheiten
- großzügiger Wohn- und Schlafbereich mit Zugang zur sonnigen Loggia
- separate Küche
- praktischer Vorraum für zusätzlichem Stauraum
- barrierefreies Badezimmer mit ebenerdiger Dusche und Waschmaschinenanschluss
- Aufzug und Kellerabteil inklusive
Umgebung
Diese Pensionistenwohnung im Stadtteil Münichholz in Steyr bietet eine besonders angenehme und praktische Lage. Die Umgebung ist ruhig und geprägt von viel Grün, was zu entspannten Spaziergängen und erholsamen Stunden im Freien einlädt. Gleichzeitig sind wichtige Einrichtungen des täglichen Bedarfs bequem erreichbar: Einkaufsmöglichkeiten, Apotheken sowie Arztpraxen befinden sich in der näheren Umgebung und sind teilweise auch gut zu Fuß oder mit kurzen Fahrten erreichbar. Die Anbindung an den öffentlichen Verkehr ist gut, sodass auch ohne eigenes Auto eine flexible Mobilität gewährleistet ist. Bushaltestellen befinden sich in Gehweite und bieten Verbindungen ins Stadtzentrum von Steyr, wo weitere kulturelle Angebote, Cafés und Dienstleistungen zur Verfügung stehen. Für Erholung und Bewegung im Alltag sorgen nahegelegene Grünflächen und Spazierwege, die sich besonders für gemütliche Aktivitäten eignen. Die insgesamt ruhige Wohnlage, kombiniert mit einer guten Infrastruktur, macht diesen Standort besonders attraktiv für Menschen, die Wert auf Lebensqualität, Sicherheit und Komfort im Alltag legen.
Mietkonditionen
Miete und Betriebskosten inkl. Mwst.: € 367,52 (OHNE Strom-, Heiz- und Warmwasserkosten)
Kaution: € 1.266,21
Provisionsfrei & unbefristeter Mietvertrag!
Grundsätzlich wird die Wohnung von der WAG OHNE Möbel (z.B. ohne Küche etc.) vermietet. Eine mögliche Ablöse kann aber gerne mit dem derzeitigen Mieter vereinbart werden.
Der Immobilienmakler erklärt, dass er – entgegen dem in der Immobilienwirtschaft üblichen Geschäftsgebrauch des Doppelmaklers – einseitig nur für den Vermieter tätig ist.
Sie sind an weiteren Wohnungs- bzw. Gewerbeangeboten interessiert? Ein vielfältiges Angebot finden Sie auf unserer Website.
Zur WAG-Immobiliensuche: SUCHE
Zur WAG-Wohnungsanmeldung: Wohnungsanmeldung
Gerne beraten wir Sie persönlich über unser vielfältiges Angebot, rufen Sie uns einfach an! Und das natürlich ohne Vermittlungsgebühren und provisionsfrei!
Angaben sind ohne Gewähr auf Richtigkeit und Vollständigkeit. Druckfehler vorbehalten.
Infrastruktur / Entfernungen
Gesundheit
Arzt <500m
Apotheke <500m
Klinik <1.500m
Krankenhaus <3.500m
Kinder & Schulen
Schule <500m
Kindergarten <250m
Universität <1.750m
Höhere Schule <2.500m
Nahversorgung
Supermarkt <500m
Bäckerei <1.250m
Einkaufszentrum <1.250m
Sonstige
Bank <500m
Geldautomat <500m
Post <500m
Polizei <500m
Verkehr
Bus <500m
Bahnhof <1.250m
Angaben Entfernung Luftlinie / Quelle: OpenStreetMap
Eckdaten
| Gesamtmiete: | 367,52 € |
| Fläche: | 36,98 m² |
| Zimmer: | 1 |
Basisdaten zur Immobilie
| Objektnr: | 6650/26416 |
| Art: | Wohnung |
| Land: | Österreich |
| Zustand: | Gepflegt |
| Gesamtmiete: | 367,52 € |
| Kaltmiete (netto): | 205,83 € |
| Kaltmiete: | 334,11 € |
| Provision: | Gemäß Erstauftraggeberprinzip bezahlt der Abgeber die Provision. |
| Betriebskosten: | 128,28 € |
| MwSt Gesamt: | 33,41 € |
| Wohnfläche: | 36,98 m² |
| Zimmer: | 1 |
| Bäder: | 1 |
| WC: | 1 |
| Heizwärmebedarf: | C 86,00 kWh/m²a |
| fGEE: | C 1,44 |
Ausstattung
Fliesen, Laminatboden, Parkett, Zentralheizung, Personenaufzug, Dusche, Kabel/Satelliten-TV, Wasch/Trockenraum
Internet und TV
Information zur Internet und TV Versorgung hier
Ihre persönliche Beratung
Team Steyr
WAG Wohnungsanlagen Gesellschaft m.b.H.
wohnen.steyr@wag.at
+43 (0)50 338 7388
