Lage der Immobilie
Klosterneuburg WeidlingBeschreibung der Immobilie
Zum Verkauf kommt ein ca. 670 m2 großes bebautes Grundstück im "Sachsenviertel", einer Villengegend am Fuße der Wiener Höhenstraße. Auf dem Grundstück befindet sich eine um 1909 errichtete Altbauvilla mit gesamt ca. 387,07 m2 Nutzfläche (davon ca. 271m2 Wohnfläche auf 3 Ebenen) und ein ca. 460m2 großer Garten. Von der ca.15 m2 großen Dachterrasse bietet sich ein großartiger Fernblick Richtung Stift Klosterneuburg. Das Haus ist teilweise unterkellert (rd. 51,92m2 Kellerfläche). Zum Grundstück gehören 3 separat gebaute Garagenplätze (rd. 49,50m2).
Zu den architektonischen Vorzügen des Hauses zählen die individuelle Jugendstil-Ornamentik mit geschwungenen Fensterbögen und hohen Raumhöhen. Die Innenräume sind einfach bis mittel ausgestattet und teilweise sanierungsbedürftig. Die beiden unteren Etagen sind mit alten Parketten und Fliesen im Originalzustand erhalten.
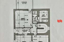
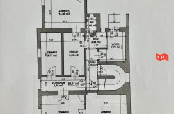
Aufteilung:
Die Wohnnutzfläche ist wie folgt aufgeteilt:
Erdgeschoß: ca. 88,54 m2 Wohnnutzfläche - leerstehend
1. Stock: ca. 97,26 m2 Wohnnutzfläche - leerstehend
Dachgeschoß: ca. 85,14 m2 Wohnnutzfläche zuzüglich ca. 14,71 m2 Terrasse - vermietet bis 05/26.
Bebauungsplan/Flächenwidmung:
BW-2WE
40.00 o I,II
Das Objekt liegt in einer Schutzzone. Ein Abbruch des Altbestandes ist nicht möglich.
Wohnumgebung / Infrastruktur:
Die Liegenschaft liegt rund 5 Fahrminuten vom Bahnhof Klosterneuburg-Weidling entfernt. Von dort ist man in rund 10 Fahrminuten mit Bahn oder Bus in Wien-Heiligenstadt (U4, S-Bahn, diverse Buslinien). Die nächstgelegene Buslinie ist die Linie 400 (Wien-Heiligenstadt - Maria Gugging), an welche das Objekt auch öffentlich angebunden ist.
Im Umkreis der Liegenschaft befinden sich Geschäfte des täglichen Bedarfs inklusive Bio-Markt, Trafik, Post, Bank und diverse andere Geschäfte.
Sämtliche Informationen sind uns von Dritter Seite zur Verfügung gestellt und sind ohne Gewähr. Für einen Besichtigungstermin oder weitere Auskünfte stehen wir gerne zur Verfügung.
Kontakt:
Mag. Ruth-Marie Schwarzinger
Kooperationspartnerin
Konzessionierte Immobilienmaklerin
m +43 (0) 664 855 4286
t +43 (0) 1 342 222 50
FHI Real Estate GmbH
Köstlergasse 6-8/2/20
1060 Wien
e rms@fhi.at
www.fhi.at
DSGVO - Informationen dazu finden sie auf unserer Website unter Datenschutz!
Hinweis gemäß Energieausweisvorlagegesetz: Ein Energieausweis wurde vom Eigentümer bzw. Verkäufer, nach unserer Aufklärung über die generell geltende Vorlagepflicht, sowie Aufforderung zu seiner Erstellung noch nicht vorgelegt. Daher gilt zumindest eine dem Alter und der Art des Gebäudes entsprechende Gesamtenergieeffizienz als vereinbart. Wir übernehmen keinerlei Gewähr oder Haftung für die tatsächliche Energieeffizienz der angebotenen Immobilie.
Wir weisen darauf hin, dass zwischen dem Vermittler und dem zu vermittelnden Dritten ein familiäres oder wirtschaftliches Naheverhältnis besteht.
Infrastruktur / Entfernungen
Gesundheit
Arzt <1.000m
Apotheke <1.000m
Klinik <4.500m
Krankenhaus <2.000m
Kinder & Schulen
Schule <500m
Kindergarten <500m
Universität <2.000m
Höhere Schule <5.000m
Nahversorgung
Supermarkt <1.000m
Bäckerei <500m
Einkaufszentrum <4.000m
Sonstige
Bank <500m
Geldautomat <500m
Post <1.000m
Polizei <1.500m
Verkehr
Bus <500m
Straßenbahn <4.000m
U-Bahn <5.500m
Bahnhof <1.000m
Autobahnanschluss <3.000m
Angaben Entfernung Luftlinie / Quelle: OpenStreetMap
Eckdaten
| Kaufpreis: | 1.170.000,00 € |
| Fläche: | 270,94 m² |
| Zimmer: | 11 |
Basisdaten zur Immobilie
| Objektnr: | 7122 |
| Art: | Haus - Mehrfamilienhaus |
| Land: | Österreich |
| Baujahr: | 1909 |
| Alter: | Altbau |
| Kaufpreis: | 1.170.000,00 € |
| Provision: | 3% des Kaufpreises zzgl. 20% USt. |
| Wohnfläche: | 270,94 m² |
| Nutzfläche: | 387,07 m² |
| Grundstücksfl.: | 670,00 m² |
| Zimmer: | 11 |
| Terrassen: | 1 |
| Garten: | 460,00 m² |
| Keller: | 51,92 m² |
Ausstattung
Fliesen, Parkett, Gas, Zentralheizung, Garage
Internet und TV
Information zur Internet und TV Versorgung hier
Ihre persönliche Beratung
Mag. Ruth-Marie Schwarzinger
FHI Real Estate GmbH
rms@fhi.at
+43 1 342222
+43 664 8554286
F +43 1 34222211
