Moderne, lichtdurchflutete Neubauwohnung mit ~17 m² Balkon/Terrasse
Wohnung
,
1190
Wien
Lage der Immobilie
Die Wohnung befindet sich in der Pantzergasse 14 im beliebten 19. Wiener Gemeindebezirk Döbling. Die ruhige Wohnlage überzeugt durch eine ausgezeichnete Infrastruktur sowie gute öffentliche Verkehrsanbindungen. Straßenbahn- und Buslinien befinden sich in unmittelbarer Nähe und bieten eine rasche Verbindung in die Wiener Innenstadt. Geschäfte des täglichen Bedarfs, Supermärkte, Cafés, Restaurants sowie Schulen und Kindergärten sind bequem fußläufig erreichbar. Zudem bieten nahegelegene Grünflächen und Weinberge zahlreiche Freizeit- und Erholungsmöglichkeiten und unterstreichen die hohe Wohnqualität dieser begehrten Wohngegend.Beschreibung der Immobilie
Die Wohnung befindet sich in der Pantzergasse 14 im beliebten 19. Wiener Gemeindebezirk Döbling. Die ruhige Wohnlage überzeugt durch eine ausgezeichnete Infrastruktur sowie gute öffentliche Verkehrsanbindungen. Straßenbahn- und Buslinien befinden sich in unmittelbarer Nähe und bieten eine rasche Verbindung in die Wiener Innenstadt.
Geschäfte des täglichen Bedarfs, Supermärkte, Cafés, Restaurants sowie Schulen und Kindergärten sind bequem fußläufig erreichbar. Zudem bieten nahegelegene Grünflächen und Weinberge zahlreiche Freizeit- und Erholungsmöglichkeiten und unterstreichen die hohe Wohnqualität dieser begehrten Wohngegend.
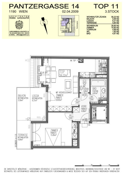
Zur Vermietung gelangt diese Wohnung mit rund 56 m² Wohnfläche sowie ~17 m² Balkon-, Terrasse- und Loggiafläche in einem gepflegten Neubau.
Die Wohnung befindet sich im 3. Stock und ist bequem über einen Lift erreichbar. Der Grundriss umfasst einen Vorraum, einen großzügigen Wohnraum mit Kochnische inklusive Herd und Spüle, ein weiteres Zimmer, ein Badezimmer sowie ein separates WC.
Der Balkon, die Terrasse und die Loggia bieten angenehme Freiflächen und erweitern den Wohnbereich ins Freie. Ein Kellerabteil sorgt für zusätzlichen Stauraum. Die Wohnung wird mittels Gaszentralheizung beheizt und steht ab 01.08.2026 zur Verfügung.
Objekttyp:
- Befristete Hauptmiete: 5 Jahre
- Bezug möglich ab 01.08.2026
- Kaution: 3 Bruttomonatsmieten
- Einmalig: Vertragsabwicklungshonorar EUR 160,- inkl. USt.
Flächenangaben:
-
Wohnnutzfläche: A ~ 56,22 m² zzgl. ca. 5,56 m² Balkon, 4,84 m² Terrasse und 6,31 m² Loggia
Heizung / Warmwasser:
-
Gas-Zentralheizung
Ausstattung:
- Parkettböden
- Einbauküche
- Geräumiges Kellerabteil
- Großzügige Allgemeinflächen
- Ein Garagenstellplatz im Haus kann optional angemietet werden.
- ...
ATTERSEE IMMOBILIEN - Persönlich für Sie am Wiener Markt
-
Dominik PAIL, MA
-
M: +43 676 8142 38996
-
mailto:dp@attersee-immo.at
Für weitere Informationen bzw. zur Vereinbarung eines Besichtigungstermins steht Ihnen Attersee Immobilien gerne zur Verfügung.
Wir weisen darauf hin, im vorliegenden Fall nicht als Doppelmakler tätig zu sein und in einem wirtschaftlichen Naheverhältnis zum Vermieter zu stehen. Die Angaben erfolgen aufgrund von Informationen und Unterlagen, die uns vom Eigentümer bzw. vom Auftraggeber zur Verfügung gestellt wurden und sind ohne Gewähr. Attersee Immobilien haftet nicht für die Aktualität, Richtigkeit und Vollständigkeit der zur Verfügung gestellten Informationen bzw. Unterlagen.
Die Vermittlung der Immobilie erfolgt für den Mieter / die Mieterin provisionsfrei.
Noch nichts gefunden? Wir informieren Sie zeitnah über geeignete Immobilienangebote.
Legen Sie jetzt Ihren individuellen Suchagenten unter folgendem Link an. Wir schicken Ihnen passende Immobilien exklusiv vorab zu.
Suchagent anlegen
Der Immobilienmakler erklärt, dass er – entgegen dem in der Immobilienwirtschaft üblichen Geschäftsgebrauch des Doppelmaklers – einseitig nur für den Vermieter tätig ist.
Infrastruktur / Entfernungen
Gesundheit
Arzt <500m
Apotheke <500m
Klinik <500m
Krankenhaus <1.500m
Kinder & Schulen
Schule <500m
Kindergarten <500m
Universität <500m
Höhere Schule <1.000m
Nahversorgung
Supermarkt <500m
Bäckerei <500m
Einkaufszentrum <2.000m
Sonstige
Geldautomat <500m
Bank <500m
Post <1.000m
Polizei <500m
Verkehr
Bus <500m
U-Bahn <500m
Straßenbahn <500m
Bahnhof <500m
Autobahnanschluss <1.000m
Angaben Entfernung Luftlinie / Quelle: OpenStreetMap
Eckdaten
| Gesamtmiete: | 1.416,54 € |
| Fläche: | 56,22 m² |
| Zimmer: | 1 |
Basisdaten zur Immobilie
| Objektnr: | 373 |
| Art: | Wohnung |
| Land: | Österreich |
| Baujahr: | 2009 |
| Zustand: | Neuwertig |
| Alter: | Neubau |
| Gesamtmiete: | 1.416,54 € |
| Kaltmiete (netto): | 1.064,16 € |
| Kaltmiete: | 1.228,70 € |
| Provision: | Gemäß Erstauftraggeberprinzip bezahlt der Abgeber die Provision. |
| Betriebskosten: | 134,93 € |
| Heizkosten: | 57,02 € |
| MwSt Gesamt: | 130,82 € |
| Wohnfläche: | 56,22 m² |
| Nutzfläche: | 56,22 m² |
| Zimmer: | 1 |
| Bäder: | 1 |
| WC: | 1 |
| Balkone: | 1 |
| Terrassen: | 1 |
| Heizwärmebedarf: | B 43,52 kWh/m²a |
| fGEE: | B 0,89 |
Ausstattung
Fliesen, Parkett, Gas, Zentralheizung, Einbauküche, Personenaufzug, Ostbalkon, Badewanne, Kabel/Satelliten-TV, Tiefgarage, Wasch/Trockenraum
Internet und TV
Information zur Internet und TV Versorgung hier
Ihre persönliche Beratung
Dominik Pail
Attersee Immobilien - Raiffeisenbank Attersee-Süd eGen
office@attersee-immo.at
+43 7666 82000
+43 676 814238996
Attersee Immobilien - Raiffeisenbank Attersee-Süd eGen
Dorfstraße 50, 4865 Nußdorf am Attersee
+43 7666 82000