Schallerhof - Erstbezug in 1120 Wien! Überzeugende Wohnungen und Townhouse Appartements mit Freiflächen
Wohnung
,
1120
Wien
Lage der Immobilie
Dieses innovative Wohnhaus liegt im stadtnahen, direkt an den 5. Bezirk angrenzenden Teil des 12. Bezirks von Wien und bietet eine hervorragende Infrastruktur. Supermärkte, Bäckereien und ein Einkaufszentrum sorgen für eine bequeme Nahversorgung. Auch öffentliche Verkehrsanbindungen wie Bus (Linien 12A Station Gaudenzdorfer Gürtel sowie 59A in der Steinbauergasse direkt zum Karlsplatz), U-Bahn (U4 Margaretengürtel) und Straßenbahn (Linien 6, 18 Station Arbeitergasse) sind mit kurzem Fußweg erreichbar. Mit dem Auto ist die Anbindung an die Süd- und Weststrecke ideal. Ein perfekter Standort zur Eigennutzung oder Vermietung!Beschreibung der Immobilie
SCHALLERHOF - ein modernes Wohnhaus mit innovativer Architektur
Aus diesem, ursprünglich 1897 errichteten Stadthaus in der nach dem Bildhauer Johann Nepomuk Schaller benannten Gasse entsteht bis ca. April 2026 ein elegantes, modernes Wohnhaus mit insgesamt 17 Wohnungen zwischen ca. 31 und 84 m2 Wohnfläche. 13 Tops sind im Straßentrakt situiert und verfügen bis auf eine Wohnung über hofseitige, gut nutzbare Balkone!
Im 3. und 4. Oberschoß sowie im 1. Dachgeschoß finden sich jeweils zwei Wohnungen mit knapp 50 bzw. 70 m2 (2 bzw. 3 Zimmer). Sie punkten mit idealen Grundrissen, sowohl straßen- als auch hofseitiger Ausrichtung und Balkonen zwischen 6 und 10 m2!
Im 2. Dachgeschoß ist die größte Wohnung des Projektes mit ca. 84 m2 zzgl. Terrasse gelegen. Sie ist als großzügige Single- oder Paarwohnung konzipiert und bietet auf beiden Seiten einen freien Ausblick über die Dächer.
Im zweigeschoßigen Hofgebäude sind vier Wohnungen als jeweils ca. 45 m2 große Townhouse Appartements gelegen. Hier wohnt man kompakt auf zwei Ebenen mit einem ca. 14 m2 großen Freibereich im Erdgeschoß.
Die stilvolle Bestandsfassade blieb bis zum zweiten Obergeschoß bestehen und bietet im Erdgeschoß und 2. Obergeschoß Wohnsituationen mit Raumhöhen zwischen 3,50 und 4 m!
Eine komfortable Tiefgarage für acht Fahrzeuge (Kaufpreis optional zuzüglich zur Wohnung EUR 35.000,-- bzw. netto EUR 30.000,-- für Anleger) wurde ebenfalls neu errichtet.
Einige Highlights der Ausstattung:
- Heizung und Kühlung über Luftwärmepumpe (Fußbodenheizung bzw. -kühlung)
- zusätzliche Klimatisierung (Fancoils) im 1. und 2. Dachgeschoß
- Außenliegender Sonnenschutz
- Kunststoff-/Alufenster von Internorm im Neubau bzw. Holzfenster im straßenseitigen Altbaubereich 2. OG (Top 4 und Top 6)
- Innentüren von Dana 2,20m hoch
- Hochwertiger Bauwerk Parkettboden
- High Speed Glasfaser Internet
HWB Straßentrakt: 39,9 kWh, HWB Hofgebäude: 53,1 kWh
Die Vertragserrichtung und treuhändige Abwicklung ist an die Scherbaum Seebacher Rechtsanwälte GmbH gebunden, die Kosten betragen 1,5% des Kaufpreises zzgl. 20% USt.
BEFRISTETE FRÜHLINGSAKTION bis 30.4.2026: KÜCHENGUTSCHEIN INKLUSIVE!
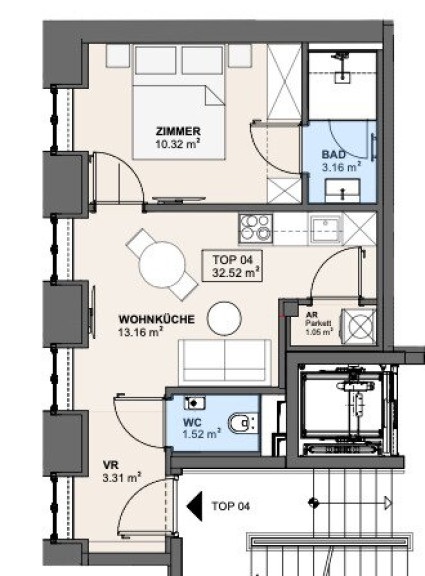
Top 4 im 2. Obergeschoß
Stilvolle, ideal geschnittene Singlewohnung mit der fantastischen Raumhöhe eines Altbaus von ca. 3,50 m und allen Annehmlichkeiten des Neubaus! Westseitige Ausrichtung und vier große Fenster sind die weiteren Highlights dieses Appartements. Wohnküche mit angeschlossenem Abstellraum, Schlafzimmer mit Duschbad en Suite und ein separates WC komplettieren dieses Raumwunder auf 32,5 m2! Ein Kellerabteil mit ca. 1,6 m2 sorgt für weiteren Stauraum.
Beim Kauf als Anleger beträgt der Nettokaufpreis EUR 229.000,-- zzgl. 20% USt.
Wir weisen darauf hin, dass zwischen dem Vermittler und dem zu vermittelnden Dritten ein familiäres oder wirtschaftliches Naheverhältnis besteht.
Der Vermittler ist als Doppelmakler tätig.
Infrastruktur / Entfernungen
Gesundheit
Arzt <500m
Apotheke <500m
Klinik <500m
Krankenhaus <1.000m
Kinder & Schulen
Schule <500m
Kindergarten <500m
Universität <1.000m
Höhere Schule <1.000m
Nahversorgung
Supermarkt <500m
Bäckerei <500m
Einkaufszentrum <1.000m
Sonstige
Geldautomat <500m
Bank <1.000m
Post <500m
Polizei <500m
Verkehr
Bus <500m
U-Bahn <1.000m
Straßenbahn <500m
Bahnhof <1.000m
Autobahnanschluss <3.500m
Angaben Entfernung Luftlinie / Quelle: OpenStreetMap
Eckdaten
| Kaufpreis: | 258.000,00 € |
| Fläche: | 32,52 m² |
| Zimmer: | 2 |
Basisdaten zur Immobilie
| Objektnr: | 8392/76 |
| Art: | Wohnung |
| Land: | Österreich |
| Baujahr: | 2026 |
| Zustand: | Erstbezug |
| Alter: | Neubau |
| Kaufpreis: | 258.000,00 € |
| Provision: | 3% des Kaufpreises zzgl. 20% USt. |
| Wohnfläche: | 32,52 m² |
| Zimmer: | 2 |
| Bäder: | 1 |
| WC: | 1 |
| Keller: | 1,63 m² |
| Heizwärmebedarf: | B 39,90 kWh/m²a |
| fGEE: | A 0,84 |
Ausstattung
Parkett, Fliesen, Fußbodenheizung, Personenaufzug, Dusche
Internet und TV
Information zur Internet und TV Versorgung hier
Ihre persönliche Beratung
Mag. Michaela Orisich
Orisich Homes
kontakt@orisichhomes.at
+43 664 392 56 60
