Helle 4-Zimmer-Wohnung (ca. 93 m²) mit Loggia und Parkblick. Master-Schlafzimmer mit eigenem Badezimmer.
Wohnung
,
1200
Wien,Brigittenau
Lage der Immobilie
Sehr gute Lage im 20. Bezirk – nur wenige Gehminuten ca.10 Minuten zu Fuß zur U1 Vorgartenstraße mit direkter Anbindung ins Zentrum (Stephansplatz). In unmittelbarer Nähe zum Prater mit weitläufigen Grünflächen sowie zum beliebten Vorgartenmarkt mit vielfältiger Gastronomie. Die Millennium City mit Einkaufsmöglichkeiten, Fitness und Kino ist ebenfalls schnell erreichbar.Beschreibung der Immobilie
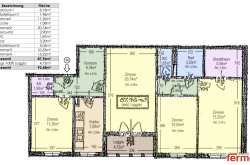
Diese helle und gut geschnittene 4-Zimmer-Wohnung überzeugt durch ihre angenehme Wohnatmosphäre und den schönen Blick ins Grüne.
Die ca. 93 m² große Wohnung bietet ausreichend Platz für Familien oder Paare. Besonders hervorzuheben ist das Master-Schlafzimmer mit eigenem Badezimmer, das zusätzlichen Komfort und Privatsphäre bietet.
Die Wohnung verfügt zudem über eine separate Küche, einen praktischen Abstellraum sowie eine Loggia, die zum Entspannen einlädt.
Ein weiterer großer Vorteil:
Die Wohnung wird komplett möbliert inklusive aller Geräte verkauft, da die Eigentümer ausziehen – ein sofortiger Einzug ist somit problemlos möglich.
Die Lage nahe Donau und 20. Bezirk verbindet Natur, Erholung und eine sehr gute Anbindung an die Innenstadt.
Noch nichts gefunden? Wir informieren Sie über geeignete Immobilienangebote noch vor allen anderen.
Legen Sie jetzt Ihren individuellen Suchagenten unter folgendem Link an. Wir schicken Ihnen passende Immobilien exklusiv vorab zu.
Suchagent anlegen - https://fermoso-immobilientreuhand.service.immo/registrieren/de
Infrastruktur / Entfernungen
Gesundheit
Arzt <500m
Apotheke <500m
Klinik <1.000m
Krankenhaus <1.000m
Kinder & Schulen
Schule <500m
Kindergarten <500m
Universität <1.500m
Höhere Schule <2.000m
Nahversorgung
Supermarkt <500m
Bäckerei <500m
Einkaufszentrum <1.000m
Sonstige
Geldautomat <500m
Bank <500m
Post <500m
Polizei <1.000m
Verkehr
Bus <500m
U-Bahn <1.000m
Straßenbahn <500m
Bahnhof <1.000m
Autobahnanschluss <1.500m
Angaben Entfernung Luftlinie / Quelle: OpenStreetMap
Eckdaten
| Kaufpreis: | 569.000,00 € |
| Fläche: | 93,07 m² |
Basisdaten zur Immobilie
| Objektnr: | 6902 |
| Art: | Wohnung |
| Land: | Österreich |
| Baujahr: | 1970 |
| Möbliert: | Voll |
| Alter: | Neubau |
| Kaufpreis: | 569.000,00 € |
| Provision: | 3% des Kaufpreises zzgl. 20% USt. |
| Betriebskosten: | 208,40 € |
| Heizkosten: | 73,30 € |
| MwSt Gesamt: | 35,50 € |
| Wohnfläche: | 93,07 m² |
| Nutzfläche: | 93,07 m² |
| Gesamtfläche: | 97,79 m² |
| WC: | 3 |
| Heizwärmebedarf: | B 45,50 kWh/m²a |
| fGEE: | B 0,99 |
Ausstattung
Parkett, Fernwärme, Einbauküche, Personenaufzug
Internet und TV
Information zur Internet und TV Versorgung hier
Ihre persönliche Beratung
Mag. Lana Simakova
Fermoso Immobilientreuhand GmbH
ls@fermoso.at
+43 665 65 779 726
+43 665 65 779 726
