Maisonette in der Heinrichstraße 119 Top 10 - nahe der UNI
Wohnung
- Maisonette,
8010
Graz
,
Heinrichstraße 119
Lage der Immobilie
zentrale Lage in der Heinrichstraße 119 - nahe der UNIBeschreibung der Immobilie
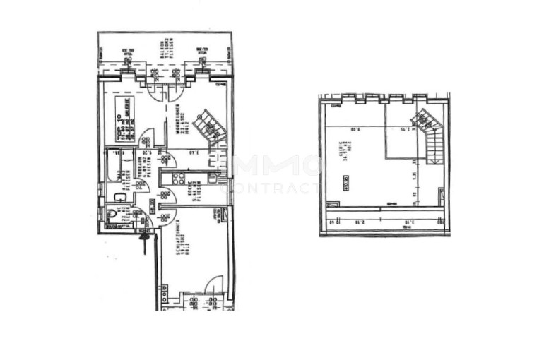
Diese ca. 78,39m² große Wohnung befindet sich im 2/3 OG des Hauses Heinrichstraße 119 nahe der UNI.
RAUMAUFTEILUNG: Vorraum, Küche, zur Galerie offener Wohnraum, Galerie, Schlafzimmer, getrennte sanitäre Einrichtungen, Kellerabteil, Balkon.
AUSSTATTUNG: Die Wohnung ist mit Parkettböden in dem Wohn- und Schlafraum sowie Fliesenböden in den sanitären Räumen ausgestattet. Das Badezimmer ist unter anderem mit einer Badewanne, einem Fenster und einem Waschmaschinenanschluss ausgestattet. Darüber hinaus verfügt die Wohnung über eine Einbauküche. Die Wohnung wird zentral beheizt.
LAGE: zentrale Lage in der Heinrichstraße 119
PARKEN: Es besteht die Möglichkeit, Parkplätze in der hauseigenen Tiefgarage anzumieten.
Der Immobilienmakler erklärt, dass er - entgegen dem in der Immobilienwirtschaft üblichen Geschäftsgebrauch des Doppelmaklers - einseitig nur für den Vermieter tätig ist.
Der Immobilienmakler erklärt, dass er – entgegen dem in der Immobilienwirtschaft üblichen Geschäftsgebrauch des Doppelmaklers – einseitig nur für den Vermieter tätig ist.
Infrastruktur / Entfernungen
Gesundheit
Arzt <50m
Apotheke <650m
Klinik <775m
Krankenhaus <750m
Kinder & Schulen
Schule <600m
Kindergarten <275m
Universität <225m
Höhere Schule <1.250m
Nahversorgung
Supermarkt <300m
Bäckerei <75m
Einkaufszentrum <2.075m
Sonstige
Geldautomat <650m
Bank <650m
Post <925m
Polizei <1.000m
Verkehr
Bus <75m
Straßenbahn <300m
Bahnhof <1.725m
Autobahnanschluss <5.875m
Angaben Entfernung Luftlinie / Quelle: OpenStreetMap
Eckdaten
| Gesamtmiete: | 937,34 € |
| Fläche: | 78,39 m² |
| Zimmer: | 2,50 |
Basisdaten zur Immobilie
| Objektnr: | 1939/217689 |
| Art: | Wohnung - Maisonette |
| Land: | Österreich |
| Gesamtmiete: | 937,34 € |
| Kaltmiete (netto): | 313,56 € |
| Kaltmiete: | 667,58 € |
| Provision: | Gemäß Erstauftraggeberprinzip bezahlt der Abgeber die Provision. |
| Betriebskosten: | 354,02 € |
| Heizkosten: | 169,17 € |
| MwSt Gesamt: | 100,59 € |
| Wohnfläche: | 78,39 m² |
| Zimmer: | 2,50 |
| Bäder: | 1 |
| WC: | 1 |
| Balkone: | 2 |
| Keller: | 2,00 m² |
| Heizwärmebedarf: | C 79,80 kWh/m²a |
| fGEE: | C 1,24 |
Ausstattung
Zentralheizung, Bad mit Fenster, Badewanne
Internet und TV
Information zur Internet und TV Versorgung hier
Ihre persönliche Beratung
Jan Sarkantyu
IMMOcontract Immobilien Vermittlung GmbH
J.Sarkantyu@IMMOcontract.at
+43 316 890 800
+43 664 423 19 13
