Immobilie merken

DOPPELHÄUSER in ZIMMERMEISTERQUALITÄT (ab 109 m² bis 140 m²) - nachhaltig leben im Marktort Neuhofen an der Krems

Haus - Doppelhaushälfte, 4501 Neuhofen an der Krems

Beschreibung der Immobilie

Wohnen in einer der beliebtesten Areas von Oberösterreich

Naturnahes und leistbares Wohnen in Massivbauweise bilden die Prioritäten dieses Neubauprojektes. In ernergiesparender Niedrigenergiebauweise errichten wir 3 Doppelhäuser mit perfekt abgestimmten Haustypen in bevorzugter Siedlungslage.

Die Marktgemeinde Neuhofen an der Krems ist eine der aktuell aufstrebendsten Gemeinden Oberösterreichs und bietet natürlich alle wesentlichen infrastrukturellen Einrichtungen wie Schule, Kindergarten, Nahversorger, Bäcker, Fleischer etc. In nächster Nähe können Sie biologische Lebensmittel, wie Obst, Gemüse, Säfte uvm; beziehen - Direkt von ansässigen Bauern und Betrieben aus der Region. 

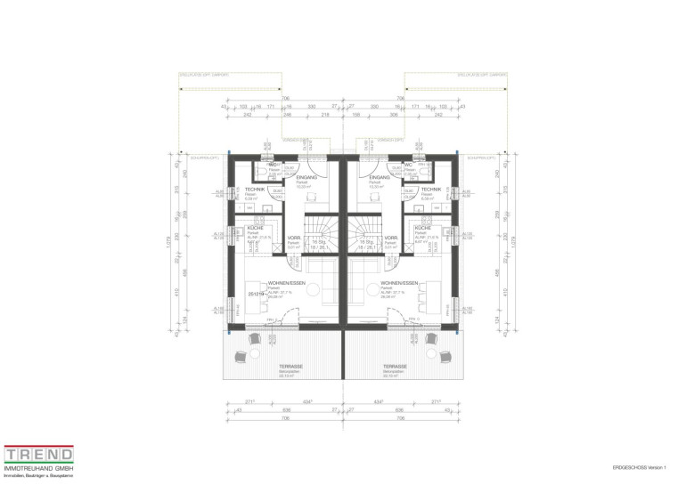
Die Häuser werden mit einer Wohnnutzfläche von ca. 109 m² angeboten und können gleichzeitig erweitert werden (Grundrisse individuell veränderbar) und sind heiztechnisch mit einer Luftwärmepumpe ausgestattet. Der Platzbedarf kann durch ev. Unterkellerung oder durch Kellerersatzräume beliebig erweitert werden. Bei der Raumaufteilung bieten wir die Möglichkeit für individuelle Wünsche bzw. Anpassung durch den Kunden.

Die Grundstücksanteile haben eine Grösse von ca. 356 m² bis ca. 391 m².
Auf den Terrassen und Gärten können die zukünftigen Eigentümer die Sonne von morgens bis abends geniessen.

Hochgedämmte Holzriegelwand mit Hinterlüftung in bewährter Zimmermeisterqualität mit eigener Installationsebene, Gesamtstärke

ca. 41 cm. Die Gebäudetrennwände werden ebenfalls in Zimmermeisterqualität gemäß Plan ausgeführt.

Die von uns angebotene Außenwandkonstruktion zeichnet sich durch vorzügliche bauphysikalische Eigenschaften aus.

- Beste Dämmwerte

- Hinterlüftetes Fassadensystem

- Umweltfreundlicher und natürlicher Baustoff

- Ausgezeichnetes Raumklima

- Hoher Brandwiderstand

- Diffusionsoffener Wandaufbau

- Ausgezeichneter Wärmeschutz


Im angeführten Gesamtpreis enthalten, sind der jeweilige Grundstücksanteil, Ihre belagsfertige Doppelhaushälfte mit Fundamentplatte, als auch bereits die anteilsmäßigen Allgemeinflächen.

Bauherreneigenleistung nach Absprache möglich.



Verfügbare Einheiten:

DOPPELHAUS TOP 1 ca. 393 m² Grundanteil  RESERVIERT

--

DOPPELHAUS TOP 2 ca. 386 m² Grundanteil EUR 453.020,--

--

DOPPELHAUS TOP 3 ca. 367 m² Grundanteil EUR 443.130,--

--

DOPPELHAUS TOP 4 ca. 356 m² Grundanteil EUR 433.720,--

--

DOPPELHAUS TOP 5 ca.364 m² Grundanteil EUR 446.200,--

--

DOPPELHAUS TOP 6 ca.361 m² Grundanteil EUR 445.270,--

Habe ich ihr wertes Interesse geweckt, so kontaktieren sie mich unter der Nummer +436769484624.

Freundlichst

Christoph Pichler

Allgemeines: Bitte beachten Sie, dass wir aufgrund der Nachweispflicht gegenüber dem Eigentümer nur Anfragen mit vollständiger Angabe von Daten wie Namen, Anschrift und Tel.Nr. bearbeiten können.
Explizit weisen wir daraufhin, dass alle Angaben nach bestem Wissen erstellt wurden. Irrtümer, Druckfehler und Änderungen vorbehalten.

Nebenkosten bei KAUF: Grunderwerbsteuer 3,5 %, Grundbuchseintragungsgebühr 1,1 % zzgl. USt, Notarkosten, etwaige Finanzierungskosten (siehe Anlage Nebenkostenübersicht)

Vermittlungsprovision: Das Erfolgshonorar für die CH Immo GmbH, als selbständiger Kooperataionspartner der TREND Immotreuhand Gmbh, für die Vermittlungstätigkeit sowie aller damit zusammenhängenden Tätigkeiten beträgt bei Zustandekommen eines gültigen Rechtsgeschäftes 3 % vom Kaufpreis zzgl. 20 % USt. Die Rechtsgrundlagen der Vermittlungstätigkeit finden sie in der Anlage Nebenkostenübersicht. Auf die Funktion als Doppelmakler, sowie auf ein wirtschaftliches Naheverhältnis zum Abgeber, weisen wir ebenfalls hin.

Infrastruktur / Entfernungen

Gesundheit
Arzt <500m
Apotheke <500m
Klinik <1.000m

Kinder & Schulen
Schule <1.000m
Kindergarten <500m

Nahversorgung
Supermarkt <500m
Bäckerei <500m
Einkaufszentrum <7.000m

Sonstige
Bank <500m
Geldautomat <500m
Post <1.000m
Polizei <500m

Verkehr
Bus <500m
Autobahnanschluss <5.500m
Bahnhof <1.000m
Straßenbahn <9.000m
Flughafen <8.500m

Angaben Entfernung Luftlinie / Quelle: OpenStreetMap

Eckdaten

Kaufpreis: 443.720,00 €
Fläche: 109,00 m²
Zimmer: 4

Basisdaten zur Immobilie

Objektnr: 1679
Art: Haus - Doppelhaushälfte
Land: Österreich
Alter: Neubau
Kaufpreis: 443.720,00
Provision: 3% des Kaufpreises zzgl. 20% USt.
Wohnfläche: 109,00 m²
Grundstücksfl.: 356,00 m²
Zimmer: 4
Heizwärmebedarf: 41,00 kWh/m²a
fGEE: 0,63

Ausstattung

Fußbodenheizung, Bad mit Fenster, Badewanne, Dusche



Internet und TV

Information zur Internet und TV Versorgung hier




Immobilie anfragen




Ihre persönliche Beratung

Trend Immotreuhand GmbH

Christoph Pichler

Trend Immotreuhand GmbH

c.pichler@trend-immotreuhand.at

+43 676 9484624


Trend Immotreuhand GmbH - Immobilen Makler

Traunufer Arkade 1, 4600 Thalheim bei Wels

+43 732 908 908-0

https://www.trend-immotreuhand.at