schöne Gegend - generalsaniertes Haus - ca 5% Rendite um NETTO 890.000,--
Zinshaus Renditeobjekt
- Wohn- und Geschäftshaus,
2734
Puchberg am Schneeberg
Lage der Immobilie
80 km südlich von Wien in einem romantisch verträumten Talkessel am Fuße des 2.076 m hohen Schneebergs gelegen, ist Puchberg am Schneeberg ein Paradies für Bergfreunde und Erholungssuchende. Der Berg, das milde Reizklima und die herrliche Landschaft haben von jeher Menschen angezogen – Kaiser, Wissenschaftler, Dichter, Musiker, Fabrikanten – und Puchberg schon zur Kaiserzeit als Kur- und Ferienort berühmt gemacht. Viele Familien verbrachten über Generationen ihre Sommertage hier, ließen Villen bauen, liebten und förderten Puchberg. Noch heute tragen idyllische Spazierwege, Aussichtspunkte und Berghütten ihre Namen – Ziehrerweg, Friedrichshöhe, … Puchberg hat bis heute seine Anziehungskraft bewahrt, ist ein vielfältiger, aktiver und dennoch weitgehend naturbelassener Ort. Er vereint alle Wünsche, die man haben kann – er ist still, und dennoch voll Kultur und Leben, die Bergwelt ist sanft und idyllisch, aber in ihrer Ursprünglichkeit auch voller Herausforderungen.Beschreibung der Immobilie
Tolle Gelegenheit - tolle Gegend - tolle Mieter!
Das zu verkaufende Haus ist kernsaniert und ist vollständig vermietet.
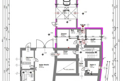
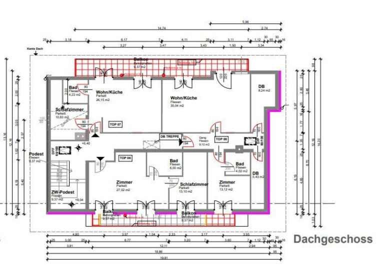
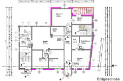
Sie begehen die Liegenschaft von der Straße aus und erreichen das Siegenhaus, von dem aus die Wohnungen Top 2, 3 und 4 im ersten OG und die Wohnungen Top 6, 7 und 8 im DG erschlossen sind.
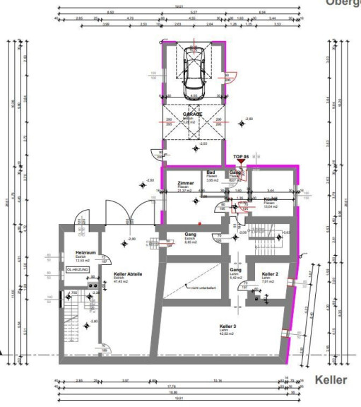
Natürlich erreichen Sie von hier aus auch den neuen Keller. Bei der Sanierung wurde hier der Boden abgegraben und neu aufgebaut, somit ist der Keller als trocken und neuwertig zu bezeichnen.
Die Tops 1, 9 und 10 haben einen eigenen Eingang.
Alle Wohnungen außer dem Top 1 verfügen über Balkon oder Terrasse.
Jeder Partei steht ein eigenes Kellerabteil zur Verfügung.
Alle Wohnungen wurden mit neuen Küchen ausgestattet und sind sowohl als sehr gemütlich aber auch als funktional zu bezeichnen.
Rund um das Grundstück wurde ein neuer Zaun errichtet, ebenso wie ein Carport für 4-5 Autos.
Der zur Liegenschaft gehörende Garten, den alle Mieter mitbenützen dürfen, rundet diese Immobilie perfekt ab.
Anschauen lohnt sich!
Noch nichts gefunden? Wir suchen gerne die passende Immobilie für sie und informieren Sie über geeignete Immobilienangebote noch vor allen anderen.
Legen Sie jetzt Ihren individuellen Suchagenten unter folgendem Link an. Wir schicken Ihnen passende Immobilien exklusiv vorab zu ihr Denich Real Immobilienservice
Suchagent anlegen
Infrastruktur / Entfernungen
Gesundheit
Arzt <500m
Apotheke <1.000m
Kinder & Schulen
Kindergarten <1.000m
Schule <1.000m
Nahversorgung
Supermarkt <1.500m
Bäckerei <1.500m
Sonstige
Geldautomat <1.000m
Bank <1.000m
Post <1.500m
Polizei <1.500m
Verkehr
Bus <500m
Bahnhof <1.500m
Angaben Entfernung Luftlinie / Quelle: OpenStreetMap
Eckdaten
| Kaufpreis: | 979.000,00 € |
| Fläche: | 543,61 m² |
Basisdaten zur Immobilie
| Objektnr: | 1506 |
| Art: | Zinshaus Renditeobjekt - Wohn- und Geschäftshaus |
| Land: | Österreich |
| Baujahr: | 1847 |
| Zustand: | Voll_saniert |
| Alter: | Altbau |
| Kaufpreis: | 979.000,00 € |
| Kaufpreis / m²: | auf Anfrage |
| Provision: | 3% des Kaufpreises zzgl. 20% USt. |
| Wohnfläche: | 543,61 m² |
| Grundstücksfl.: | 2.368,00 m² |
Ausstattung
Dielenboden, Fliesen, Steinboden, Öl, Zentralheizung, Einbauküche, Bad mit Fenster, Badewanne, Dusche, Parkplatz, Carport, Garage
Internet und TV
Information zur Internet und TV Versorgung hier
Ihre persönliche Beratung
Martina Denich-Kobula
DENICH-REAL Immobilien GmbH
md@denich-real.at
+43 664 4609630
+43 664 4609630
