Beschreibung der Immobilie
Terrassenwohnung Itzling
Geniales 2-Zimmer Penthouse in Salzburg Nord / Itzling. Innerhalb nur weniger Gehminuten erreicht man andere infrastrukturelle Einrichtungen wie Apotheke, Bäckerei, Bank, Post oder Gaststätten. Die Obushaltestelle der Linie 3 hält in unmittelbarer Nähe zum Objekt. Der Autobahnanschluss Salzburg Nord ist ebenfalls in wenigen Minuten erreichbar.
Die key-facts in Kürze
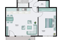
- schöne 2-Zimmer Wohnung im obersten Geschoss
- Lift
- geräumige, gut eingerichtete Küche, Badezimmer mit Wanne und Waschmaschinenanschluß, Parkettböden in den Wohnräumen
- gute Raumhöhen, perfekter Grundriss
- sehr heller, großzügiger Wohn-Essbereich mit Ausgang auf den geräumigen Balkon mit Süd-West Ausrichtung
- Kellerabteil, Waschküche und Fahrradraum
- Tiefgaragenplatz
Sollten wir Ihr Interesse für diese Immobilie geweckt haben, so stehen wir Ihnen gerne für weitere Infos oder eine Besichtigung zur Verfügung.
Wir weisen darauf hin, dass zwischen dem Vermittler und dem zu vermittelnden Dritten ein familiäres oder wirtschaftliches Naheverhältnis besteht.
Der Immobilienmakler erklärt, dass er – entgegen dem in der Immobilienwirtschaft üblichen Geschäftsgebrauch des Doppelmaklers – einseitig nur für den Vermieter tätig ist.
Infrastruktur / Entfernungen
Gesundheit
Arzt <500m
Apotheke <500m
Klinik <2.000m
Krankenhaus <2.500m
Kinder & Schulen
Schule <500m
Kindergarten <500m
Universität <500m
Höhere Schule <1.500m
Nahversorgung
Supermarkt <500m
Bäckerei <500m
Einkaufszentrum <1.000m
Sonstige
Bank <500m
Geldautomat <500m
Post <1.500m
Polizei <500m
Verkehr
Bus <500m
Bahnhof <1.000m
Autobahnanschluss <1.000m
Flughafen <5.000m
Angaben Entfernung Luftlinie / Quelle: OpenStreetMap
Eckdaten
| Gesamtmiete: | 1.385,00 € |
| Fläche: | 56,00 m² |
| Zimmer: | 2 |
Basisdaten zur Immobilie
| Objektnr: | 523/954 |
| Art: | Wohnung - Dachgeschoß |
| Land: | Österreich |
| Baujahr: | 2019 |
| Zustand: | Erstbezug |
| Alter: | Neubau |
| Gesamtmiete: | 1.385,00 € |
| Kaltmiete (netto): | 1.174,00 € |
| Kaltmiete: | 1.327,60 € |
| Provision: | Gemäß Erstauftraggeberprinzip bezahlt der Abgeber die Provision. |
| Betriebskosten: | 153,60 € |
| Heizkosten: | 33,03 € |
| MwSt Gesamt: | 24,37 € |
| Wohnfläche: | 56,00 m² |
| Zimmer: | 2 |
| Bäder: | 1 |
| WC: | 1 |
| Balkone: | 1 |
| Heizwärmebedarf: | 23,70 kWh/m²a |
Ausstattung
Fliesen, Parkett, Fernwärme, Wohnküche / offene Küche, Personenaufzug, Badewanne, Kabel/Satelliten-TV, Tiefgarage, Wasch/Trockenraum
Internet und TV
Information zur Internet und TV Versorgung hier
Ihre persönliche Beratung
Thomas Lainer
Realwert- Immobilientreuhand GmbH
t.lainer@realwert.at
+43 662 82 10 75-0
F +43 662 82 10 75-19
