Café / Bar / Lokal mit Straßenfront an der Neulerchenfelder Straße
Gastgewerbe
,
1160
Wien
,
Neulerchenfelder Straße
Lage der Immobilie
Neulerchenfelder StraßeBeschreibung der Immobilie
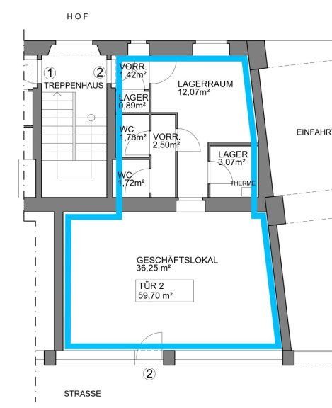
Das Geschäftslokal Top 2 befindet sich im Erdgeschoss und war zuletzt als Bar/Café genutzt und wird mit der bestehenden Einrichtung und Ausstattung verkauft.
Die Lage im Erdgeschoß mit straßenseitiger Ausrichtung bietet hohe Kundenfrequenz und gute Sichtbarkeit.
Adresse: Neulerchenfelder Straße 67, 1160 Wien
Fläche: ca. 59,70 m²
Facts:
-
helle Fläche mit straßenseitigem Eingang
-
ausgestatteter Barbereich
-
getrennte Toiletten
-
Separate Lagerbereich / Mitarbeiterbereich
Lagebeschreibung – Neulerchenfelder Straße 67
Die Liegenschaft befindet sich in zentraler Lage des 16. Bezirks, nur wenige Gehminuten vom Yppenplatz, Brunnenmarkt und der Ottakringer Straße entfernt. Hohe Fußgängerfrequenz. Die Anbindung ist ausgezeichnet: Straßenbahnlinien 2 befindet sich direkt vor dem Objekt. Linie 9 und 46 sowie die U6-Station Thaliastraße sind fußläufig erreichbar.
Noch nichts gefunden? Wir informieren Sie über geeignete Immobilienangebote noch vor allen anderen.
Legen Sie jetzt Ihren individuellen Suchagenten unter folgendem Link an. Wir schicken Ihnen passende Immobilien exklusiv vorab zu.
Suchagent anlegen - https://accenta-immobilien.service.immo/registrieren/de
Der Vermittler ist als Doppelmakler tätig.
Sie möchten Ihre Immobilie verkaufen oder vermieten?
Vertrauen Sie auf unsere Erfahrung – mit geprüfter Qualität und transparenter Abwicklung.
Die Immobilien Card garantiert Ihnen, dass Sie mit einem geprüften Profi für Verkauf und Vermietung sprechen.
Infrastruktur / Entfernungen
Gesundheit
Arzt <250m
Apotheke <250m
Klinik <500m
Krankenhaus <1.250m
Kinder & Schulen
Schule <250m
Kindergarten <250m
Universität <1.250m
Höhere Schule <1.250m
Nahversorgung
Supermarkt <250m
Bäckerei <250m
Einkaufszentrum <1.000m
Sonstige
Geldautomat <250m
Bank <250m
Post <250m
Polizei <500m
Verkehr
Bus <250m
U-Bahn <750m
Straßenbahn <250m
Bahnhof <750m
Autobahnanschluss <4.000m
Angaben Entfernung Luftlinie / Quelle: OpenStreetMap
Eckdaten
| Kaufpreis: | 189.000,00 € |
| Fläche: | 59,70 m² |
Basisdaten zur Immobilie
| Objektnr: | 11479 |
| Art: | Gastgewerbe |
| Land: | Österreich |
| Baujahr: | 1956 |
| Alter: | Neubau |
| Kaufpreis: | 189.000,00 € |
| Kaufpreis / m²: | auf Anfrage |
| Provision: | 3% des Kaufpreises zzgl. 20% USt. |
| Betriebskosten: | 270,97 € |
| MwSt Gesamt: | 54,19 € |
| Nutzfläche: | 59,70 m² |
| Gesamtfläche: | 59,70 m² |
| Heizwärmebedarf: | B 29,50 kWh/m²a |
| fGEE: | C 1,41 |
Internet und TV
Information zur Internet und TV Versorgung hier
Ihre persönliche Beratung
Martina Schütz
Accenta Immobilien e.U.
martina.schuetz@accenta-immo.at
+43 1 9971293
+43 699 17089345
F +43 1 997129310
