Beschreibung der Immobilie
Im Herzen des beliebten 7. Bezirks, in einer ruhigen Innenhoflage der Neustiftgasse, wartet diese liebevoll sanierte Altbauwohnung auf neue Besitzer – perfekt als erste eigene Wohnung für Studierende oder als charmante Stadtwohnung mit Wertbeständigkeit.
Das Besondere auf einen Blick:
✨ Ruhige Innenhofruhelage – mitten in der Stadt und trotzdem wunderbar still
🏡 Altbaucharme mit schönem Parkettboden und hohen Räumen
🍳 Neue, moderne Küche – kompakt, aber top ausgestattet, auf den aktuellen Bildern nicht ersichtlich
🚿 Frisch renoviertes Bad mit guter Ausstattung
🌿 Hochparterre – bequem erreichbar, mit Blick ins Grüne
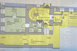
Raumaufteilung, ca 30m²:
Vorzimmer, ca 2,97m²
Wohnzimmer, ca 15,72m²
Schlafzimmer, ca 9,21m²
Bad mit Dusche/ WC, ca 2,65m²
Kellerabteil vorhanden
Lage, die begeistert:
Die Neustiftgasse liegt in einer der beliebtesten Gegenden Wiens – jung, lebendig und doch gemütlich.
In wenigen Minuten erreicht man Uni, U-Bahn, Bus, Supermarkt, Cafés und Lokale – alles, was man zum Leben, Lernen und Wohlfühlen braucht.
Diese Wohnung ist das perfekte Starter-Home für Studierende oder eine wertvolle Investition für Eltern, die ihren Kindern ein Stück Wiener Lebensqualität ermöglichen möchten.
📞 Jetzt Besichtigungstermin vereinbaren und Ihr neues Zuhause entdecken!
Für alle weiteren Fragen stehe ich Ihnen gerne zur Verfügung:
Andrea Höferstock
T: 0699/1 4444 700
E: office@immobilias.at
Viele weitere Angebote finden Sie auf unserer Homepage www.immobilias.at
Bitte beachten Sie, dass wir aufgrund der Nachweispflicht gegenüber dem Eigentümer nur Anfragen mit vollständiger Anschrift und Telefonnummer bearbeiten können und auch nur in diesem Falle Auskünfte über Objektunterlagen und die genauen Liegenschaftsadresse geben dürfen.
Wir bitten um größtmögliche Diskretion und ersuchen Sie, Innenbesichtigungen und Verhandlungen ausschließlich über uns durchzuführen. Der Vollständigkeit halber halten wir fest, dass wir Ihnen bei Anmietung/ Ankauf eines von uns namhaft gemachten Objektes durch Sie oder einen durch Sie namhaft gemachten Dritten bzw. bei beidseitiger Willensübereinstimmung eine Vermittlungsprovision in der Höhe von 3 Bruttomonatsmieten bei Gewerbeimmobilien, 2 Bruttomonatsmieten bei Wohnimmobilien bzw. 3 % des Kaufpreises zuzüglich der gesetzlichen Umsatzsteuer in Rechnung stellen (Honorarverordnung für Immobilienmakler, BGBl. Nr. 262 und 297/1996).
Dieses Angebot ist unverbindlich und freibleibend. Die Angaben erfolgen aufgrund der Informationen und Unterlagen, die uns vom Eigentümer und/oder Dritten zur Verfügung gestellt werden und sind ohne Gewähr. Im übrigen gelten die allgemeinen Geschäftsbedingungen sowie die Verordnung des BM für wirtschaftliche Angelegenheiten über Standes- und Ausübungsregeln für Immobilienmakler, BGBl 297/96.
Noch nichts gefunden? Wir informieren Sie über geeignete Immobilienangebote noch vor allen anderen.
Legen Sie jetzt Ihren individuellen Suchagenten unter folgendem Link an. Wir schicken Ihnen passende Immobilien exklusiv vorab zu.
Suchagent anlegen - https://immobilias-realitaeten.service.immo/registrieren/de
Der Vermittler ist als Doppelmakler tätig.
!! Wir möchten Sie informieren – Maklervertrag Bestimmungen !!
(FAGG - Fern- u. Auswärtsgeschäfte-Gesetz - VRUG - Verbraucherrechte Richtlinie-Umsetzungsgesetz)
Alleine durch die Unterfertigung dieses Maklervertrages und die Besichtigung von Objekten entstehen Ihnen keinerlei Kosten.
Erst mit dem Abschluss eines Kaufvertrages und/ oder eines Mietvertrages tritt unsere Verdienstlichkeit ein und es wird die Provisionszahlungspflicht iSd Provisionsvereinbarung dieses Vertrages ausgelöst!
Wenn der Kaufvertrag/ Mietvertrag nicht zustande kommt, bleibt unsere Tätigkeit für Sie vollkommen kostenlos!
Bitte haben Sie dafür Verständnis, dass wir Ihnen seit dem 13. Juni 2014 aufgrund der neuen EU-Richtlinie Unterlagen und Informationen zu unseren Objekten erst dann übersenden können, wenn Sie bestätigen, dass Sie unser vorzeitiges Tätigwerdenwünschen und über Ihre Rücktrittsrechte aufgeklärt wurden. Hierfür erhalten Sie nach Ihrer Anfrage eine Email mit den entsprechenden Unterlagen und einem Link, um diese Punkte zu bestätigen.
Vielen Dank!
Bitte beachten Sie, dass wir aufgrund der Nachweispflicht gegenüber dem Eigentümer und um Ihre Rechte zu wahren nur Anfragen mit vollständigen Kontaktdaten (Name, Anschrift und Telefonnummer) bearbeiten können und auch nur in diesem Falle Auskünfte über Objektunterlagen und die genauen Liegenschaftsadresse geben dürfen. Wir bitten um größtmögliche Diskretion und ersuchen Sie, Innenbesichtigungen und Verhandlungen ausschließlich über uns durchzuführen.
Nebenkosten lt. Nebenkostenübersicht
Der Vollständigkeit halber halten wir fest, dass wir Ihnen bei Anmietung/Ankauf eines von uns namhaft gemachten Objektes durch Sie oder einen durch Sie namhaft gemachten Dritten bzw. bei beidseitiger Willensübereinstimmung eine Vermittlungsprovision in der Höhe von 3 Bruttomonatsmieten bei Gewerbeimmobilien, 2 Bruttomonatsmieten bei Wohnimmobilien bzw. 3 % des Kaufpreises zuzüglich der gesetzlichen Umsatzsteuer in Rechnung stellen (Honorarverordnung für Immobilienmakler, BGBl. Nr. 262 und 297/1996).
Dieses Angebot ist unverbindlich und freibleibend. Die Angaben erfolgen aufgrund der Informationen und Unterlagen, die uns vom Eigentümer und/oder Dritten zur Verfügung gestellt werden und sind ohne Gewähr.
Im Übrigen gelten die allgemeinen Geschäftsbedingungen sowie die Verordnung des BM für wirtschaftliche Angelegenheiten über Standes- und Ausübungsregeln für Immobilienmakler, BGBl 297/96.
Alle Angaben im Angebot basieren auf Informationen und Unterlagen des Eigentümers und erfolgen nach bestem Wissen, jedoch ohne Gewähr auf Richtigkeit.
Infrastruktur / Entfernungen
Gesundheit
Arzt <500m
Apotheke <500m
Klinik <500m
Krankenhaus <1.500m
Kinder & Schulen
Schule <500m
Kindergarten <500m
Universität <500m
Höhere Schule <500m
Nahversorgung
Supermarkt <500m
Bäckerei <500m
Einkaufszentrum <1.000m
Sonstige
Geldautomat <500m
Bank <500m
Post <1.000m
Polizei <500m
Verkehr
Bus <500m
U-Bahn <1.000m
Straßenbahn <500m
Bahnhof <1.000m
Autobahnanschluss <4.000m
Angaben Entfernung Luftlinie / Quelle: OpenStreetMap
Eckdaten
| Kaufpreis: | 269.000,00 € |
| Fläche: | 30,55 m² |
| Zimmer: | 2 |
Basisdaten zur Immobilie
| Objektnr: | 12336 |
| Art: | Wohnung - Etage |
| Land: | Österreich |
| Zustand: | Gepflegt |
| Alter: | Altbau |
| Kaufpreis: | 269.000,00 € |
| Wohnfläche: | 30,55 m² |
| Zimmer: | 2 |
| Bäder: | 1 |
| WC: | 1 |
| Heizwärmebedarf: | C 48,63 kWh/m²a |
| fGEE: | A 0,83 |
Internet und TV
Information zur Internet und TV Versorgung hier
Ihre persönliche Beratung
Andrea Höferstock
Immobilias Realitäten e.U.
andrea.hoeferstock@immobilias.at
+43 699 1 4444 700
