Koblach: Moderne 3-Zimmer-Maisonettwohnung mit riesiger Dachgeschoss-Terrasse!
Wohnung
- Maisonette,
6842
Koblach
,
Dürne
Beschreibung der Immobilie
Willkommen in Ihrem neuen Zuhause in Koblach!
Diese moderne 3-Zimmer-Wohnung bietet auf zwei Etagen höchsten Wohnkomfort. Hier erwartet Sie ein Highlight nach dem anderen!
Durdachter Grundriss und Kleinwohnanlage:
Diese Eigentumswohnung befindet sich in einer 2019 fertiggestellten Kleinwohnanlage mit lediglich zwei Wohneinheiten in Koblach und bietet ein ruhiges sowie privates Wohnumfeld.
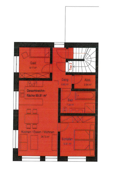
Die durchdachte Raumaufteilung bietet zwei großzügige Schlafzimmer sowie einen eleganten Wohn-Essbereich. Ergänzt wird das Raumangebot durch einen Abstellraum, der zusätzlichen Stauraum im Alltag schafft.
Das Badezimmer ist hochwertig ausgeführt und mit edlen Fliesen ausgestattet. Es verfügt über eine Dusche, eine Badewanne sowie ein WC.
Sonnige Traumterrasse und ausreichend Parkmöglichkeiten:
In der oberen Etage der Maisonette-Wohnung erwartet sie eine riesige Dachterrasse mit fast 70m². Ca. 25m² davon sind überdacht. Hier genießen Sie sonnige Stunden im Freien und verbringen entspannte Zeit mit Familie und Freunden. Der großzügige Außenbereich bietet zudem ideale Voraussetzungen für gemütliche Grillabende und gesellige Zusammenkünfte.
2 Autoabstellplätze stehen zur Verfügung und können jeweils um€ 15.000,– zusätzlich erworben werden.
Niedrige laufende Kosten:
Betriebskosten: Das Objekt wird eigenverwaltet, da es sich lediglich um zwei Einheiten handelt. Damit sparen Sie sich als zukünftige Eigentümer laufende Betriebskosten. Die monatlichen Betriebs- bzw. Nebenkosten belaufen sich laut Angaben des Verkäufers (verbrauchsabhängig) auf: Heizkosten: ca. EUR 35 - Wasserkosten: ca. EUR 35 - Stromkosten: ca. EUR 43. Somit insgesamt ca. EUR 113,00
Zögern Sie nicht, diese einmalige Gelegenheit zu nutzen!
Diese Wohnung in Koblach vereint Komfort und eine hervorragende Anbindung in einer perfekten Lage. Kontaktieren Sie uns noch heute, um einen Besichtigungstermin zu vereinbaren!
Hinweise: Dieses Exposé dient zur Vorabinformation. Alle Angaben nach bestem Wissen und Gewissen, jedoch ohne Gewähr. Tippfehler, Irrtum und Zwischenverkauf vorbehalten. Die Grundrisse dienen lediglich zur Darstellung der Raumaufteilung. *Das zweite abgebildete Foto wurde unter Einsatz künstlicher Intelligenz bearbeitet und dient der besseren Darstellung.
Der Vermittler ist als Doppelmakler tätig.
Infrastruktur / Entfernungen
Gesundheit
Arzt <2.250m
Apotheke <2.250m
Krankenhaus <6.500m
Kinder & Schulen
Schule <2.000m
Kindergarten <750m
Höhere Schule <3.750m
Universität <8.750m
Nahversorgung
Supermarkt <1.750m
Bäckerei <1.250m
Einkaufszentrum <4.500m
Sonstige
Bank <2.250m
Geldautomat <2.250m
Post <750m
Polizei <2.500m
Verkehr
Bus <250m
Bahnhof <1.250m
Autobahnanschluss <750m
Angaben Entfernung Luftlinie / Quelle: OpenStreetMap
Eckdaten
| Kaufpreis: | 449.000,00 € |
| Fläche: | 69,81 m² |
| Zimmer: | 3 |
Basisdaten zur Immobilie
| Objektnr: | 7763/351 |
| Art: | Wohnung - Maisonette |
| Land: | Österreich |
| Baujahr: | 2013 |
| Zustand: | Gepflegt |
| Kaufpreis: | 449.000,00 € |
| Provision: | 3% des Kaufpreises zzgl. 20% USt. |
| Wohnfläche: | 69,81 m² |
| Zimmer: | 3 |
| Bäder: | 1 |
| Terrassen: | 1 |
| Stellplätze: | 2 |
| Heizwärmebedarf: | B 35,00 kWh/m²a |
| fGEE: | A+ 0,68 |
Ausstattung
Fliesen, Parkett, Fußbodenheizung, Einbauküche, Bad mit Fenster, Badewanne, Dusche, Parkplatz
Internet und TV
Information zur Internet und TV Versorgung hier
Ihre persönliche Beratung
Anastasios Maximos
SIMA Immobilien GmbH
anastasios.maximos@simaimmobilien.at
+43 676 7090990
