Beschreibung der Immobilie
Objekt und Lage:
Der von Dominique Perrault entworfene DC TOWER prägt die Wiener Skyline entscheidend.
Das 2013 fertig gestellte Hochhaus liegt direkt am innerstädtischen Naherholungsgebiet Donauinsel im Teilmarkt Donau City, einem der größten und attraktivsten Standorte für Büroflächen außerhalb des Stadtzentrums. Entsprechend gut sind die Verkehrsanbindung und die Infrastruktur.
Mit seinen 220 Metern ist der DC Tower 1 nicht nur das höchste Gebäude Österreichs, sondern auch ein faszinierendes modernes Wahrzeichen der Stadt. Das Hochhaus verfügt über 4 Kellergeschosse, ein Erdgeschoss und ein Zwischengeschoss, sowie 60 Obergeschosse, samt Außenanlagen. Die Grundfläche des Hochhauses beträgt ca. 59 x 25 m, die Gesamthöhe der Fassade erreicht 220 m, die Antenne endet mit einer Oberkante von 250 m. Die südöstliche Fassade weist aufgrund der nach innen bzw. außen geneigten, bandartig zusammengefassten Fassadenflächen unterschiedliche Ausdehnungen auf und prägt die Silhouette des Baukörpers.
Die Hauptnutzung in den Obergeschossen sind Hotel, -sowie Büroflächen. Im 57. OG befindet sich das Restaurant 57 mit Bar- + Loungebereich im 58. OG. Im EG des Hauses befindet sich das Asiatische Restaurant “Ra´mien go”. In den Kellergeschossen befinden sich Garagen-, Lager- und Technikbereiche.
Mit VIENNA DC wurde die Chance wahrgenommen, am gegenüberliegenden Donau-Ufer einer der schönsten Altstädte Europas eine “Stadt in der Stadt” zu schaffen. Der „DC Tower 1“ wurde als einer der ersten österreichischen Bürotürme nach den Energie- und Nachhaltigkeitskriterien für ein Green Building der EU-Kommission errichtet und ausgestattet. Die Immobilie ist mit dem Leadership in Energy and Environmental Design (LEED)-Standard „Platin“ zertifiziert.
Die Betriebskosten (inkl. Heizung und Kühlung) verstehen sich als zirka-Angaben.
Die Flächenaufstellung beinhaltet die reine Bürofläche exkl. anteiliger Allgemeinfläche.
FACTS Gebäude:
- Höhe: 220 Meter
- 60 oberirdische Geschosse
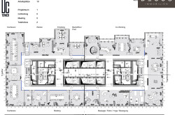
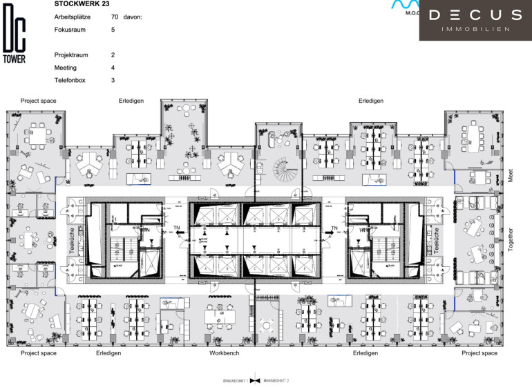
- ca. 1.200 m² Mietfläche pro Etage
- öffenbare Fenster/Lüftungsklappen Parapet Glas
- Lichte Raumhöhe Büros 3,00 m
- Lichte Raumhöhe Gang 2,50 m
- Ausbauraster 1,40 m
- Hauslifte mit Zielrufsteuerung
- Lastenlifte
- Ladehof
- „Green Building“ nach LEED© & LEED PLATIN
- Restaurant & Lounge 57 Restaurant
- Ra´mien go
- Fitnesscenter John Harris
- Hotel Meliá Vienna
- Bankomat im Haus
FACTS Gebäudetechnik:
- Kühlung durch Betonkernaktivierung
- Besprechungsräume gesondert klimatisiert
- Konditionierte Frischluft über Doppelboden
- Sprinkleranlage durch Hochdruckvernebelung
- Rauchmeldeanlage
- Heizung über Heizflächen im Fassadenbereich
Energieausweis liegt vor:
Heizwärmebedarf: 27,41kWh/m².
Tiefgarage:
im Haus: € 260,00/Stellplatz/Monat/netto
Verkehrsanbindung:
In wenigen Gehminuten ist die U1 Station "Kaisermühlen (VIC)" zu erreichen, sowie die Autobus Linien 90A, 91A, 92A, 20B "Station Kaisermühlen". Individuelle ist optimale Erreichbar über die Donau-Ufer-Autobahn, in unmittelbare Nähe zur A22 garantiert. Der Flughafen Wien ist mit dem PKW in weniger als 20 Minuten erreichbar.
Alle Preisangaben verstehen sich zzgl. der gesetzl. Ust.
Alle Angaben ohne Gewähr, Irrtümer und Änderungen vorbehalten.
Wir weisen darauf hin, dass zwischen dem Vermittler und dem zu vermittelnden Dritten ein familiäres oder wirtschaftliches Naheverhältnis besteht.
Der Vermittler ist als Doppelmakler tätig.
DECUS Immobilien GmbH – Wir beleben Räume
Für weitere Informationen und Besichtigungen steht Ihnen gerne Frau Mag. (FH) Anita Kronaus-Buchegger unter der Mobilnummer +43 664 16 096 66und per E-Mail unter kronaus@decus.at persönlich zur Verfügung.
www.decus.at | office@decus.at
Wichtige Informationen
Bitte beachten Sie, dass per 13.06.2014 eine neue Richtlinie für Fernabsatz- und Auswärtsgeschäfte in Kraft getreten ist.
Ab 1.4.2024 entfallen die Grundbuchs- und Pfandrechtseintragungsgebühren vorübergehend für Eigenheime bis zu einer Bemessungsgrundlage von EUR 500.000,-. Voraussetzung ist das dringende Wohnbedürfnis, ausgenommen davon sind vererbte oder geschenkte Immobilien. Die Befreiung ist jedoch für den Einzelfall zu prüfen, DECUS Immobilien übernimmt hierzu keine Haftung.
Ab 01.07.2023 gilt das Erstauftraggeber-Prinzip bei Wohnungsmietverträgen, ausgenommen davon sind Dienst-/Natural-/Werkswohnungen. Wir dürfen gem. § 17 Maklergesetz darauf hinweisen, dass wir auf die Doppelmaklertätigkeit gem. § 5 Maklergesetz bei Wohnungsmietverträgen verzichten und nur noch einseitig tätig sind (bei den restlichen Vermittlungsarten nicht) und ein wirtschaftliches Naheverhältnis zu unseren Auftraggebern besteht.
Im Falle eines Abschlusses mit Ihnen oder einem von Ihnen namhaft gemachten Dritten bzw. bei beidseitiger Willensübereinstimmung beträgt unser Honorar (lt. Honorarverordnung für Immobilienmakler) 2 Bruttomonatsmieten (BMM) bei Dienst-/Natural-/Werkwohnungen sowie Suchaufträgen, 3 BMM bei Gewerbe-, PKW-, Keller- und Lagermietverträgen sowie bei Kaufobjekten 3 % des Kaufpreises, zuzüglich der gesetzlichen Umsatzsteuer.
Dieses Objekt wird Ihnen unverbindlich und freibleibend angeboten. Oben angeführte Angaben basieren auf Informationen und Unterlagen des Eigentümers und sind unsererseits ohne Gewähr.
Nähere Informationen sowie unsere AGBs und die Nebenkostenübersichtsblatt finden Sie auf unserer Homepage www.decus.at unter "Service" - "Rechtliches zum FAGG" sowie im Anhang der zugesendeten Objekt-Exposés!
Infrastruktur / Entfernungen
Gesundheit
Arzt <500m
Apotheke <500m
Klinik <1.500m
Krankenhaus <2.500m
Kinder & Schulen
Schule <500m
Kindergarten <500m
Universität <2.000m
Höhere Schule <3.000m
Nahversorgung
Supermarkt <500m
Bäckerei <500m
Einkaufszentrum <2.000m
Sonstige
Geldautomat <500m
Bank <500m
Post <500m
Polizei <500m
Verkehr
Bus <500m
U-Bahn <500m
Straßenbahn <1.500m
Bahnhof <500m
Autobahnanschluss <500m
Angaben Entfernung Luftlinie / Quelle: OpenStreetMap
Eckdaten
| Kaltmiete (netto): | 14.112,00 € |
| Fläche: | 588,00 m² |
Basisdaten zur Immobilie
| Objektnr: | 378855 |
| Art: | Büro / Praxis |
| Land: | Österreich |
| Baujahr: | 2013 |
| Alter: | Neubau |
| Kaltmiete (netto): | 14.112,00 € |
| Kaltmiete: | 18.345,60 € |
| Miete / m²: | 24,00 € |
| Provision: | 3 Bruttomonatsmieten zzgl. 20% USt. |
| Betriebskosten: | 4.233,60 € |
| Nutzfläche: | 588,00 m² |
| Heizwärmebedarf: | 27,41 kWh/m²a |
Internet und TV
Information zur Internet und TV Versorgung hier
Ihre persönliche Beratung
Mag. (FH) Anita Kronaus-Buchegger
DECUS Immobilien GmbH
kronaus@decus.at
+43 664 16 096 66
+43 664 16 096 66
F +43 1 35 600 10
