Wohnen wie im alten Wien! Traumhafte klassische Altbauwohnung Nähe Schönbrunn und U 4
Wohnung
,
1140
Wien
Lage der Immobilie
Das Wohnhaus befindet sich in einer besonders ruhigen, charmanten und gutbürgerlichen Wohngegend des 14. Bezirks (Penzing). Die Lage überzeugt durch die ruhige Umgebung und die unmittelbare Nähe zum Schlosspark von Schönbrunn sowie der U 4 Station Hietzing und bietet somit eine hervorragende Anbindung an das Wiener Stadtzentrum.
In nur wenigen Gehminuten erreichen Sie mehrere Straßenbahn- und Buslinien, (10,52,60 Buslinie 56A, 56B, 58 A, 58B) sowie die U 4 die Sie rasch in die Innenstadt oder zu wichtigen Verkehrsknotenpunkten bringen. Der Bahnhof Wien Hütteldorf ist mit der U4 ebenfalls leicht erreichbar und bietet-Anschluss an S-Bahnen und Regionalzüge.
Für Autofahrer sorgt die schnelle Erreichbarkeit der A1 Westautobahn für eine unkomplizierte Verbindung in alle Richtungen.
Die Nahversorgung ist ausgezeichnet: Supermärkte, gemütliche Cafés und Restaurants, Banken und Apotheken liegen in unmittelbarer Umgebung. Auch Schulen, Kindergärten und medizinische Einrichtungen sind bequem erreichbar.
Besonders hervorzuheben ist die Nähe zu den beliebten Erholungs- und Freizeitgebieten wie dem Schönbrunner Schlosspark, dem Auhof-Center oder dem weitläufigen Wienerwald – ideal für Spaziergänge, Sport oder entspannte Stunden im Grünen.
Die Kombination aus urbaner Infrastruktur und hoher Lebensqualität im Grünen macht diese Lage zu einem besonders attraktiven Wohnumfeld für Alle, die das Beste aus Stadt und Natur verbinden möchten.
Beschreibung der Immobilie
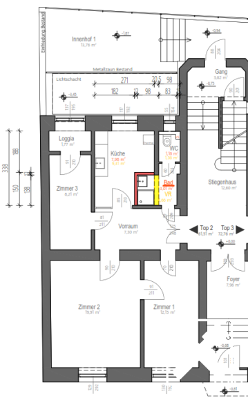
Die Wohnung befindet sich im Hochparterre des original erhaltenen und sehr gepflegten Gründerzeithauses.
Man betritt sie über einen großzügigen Vorraum von dem aus die voll möblierte Küche, das Badezimmer mit Dusche und WC sowie zwei straßenseitige und ein hofseitiges Zimmer zentral zugänglich sind.
Wie im klassischen Altbau üblich sind die Zimmer durch Stiltüren miteinander verbunden.
Ein besonderes Highlight ist der dem absolut ruhig gelegenen hofseitigen Zimmer vorgelagerte "Loggia" mit Blick in die benachbarten grünen Innenhöfe.
Die Wohnung ist in guten Zustand, die originalen und für das Flair des Altbaus enorm wichtigen Stilelemente wie Stiltüren und Kastenfenster sowie Fischgrätparkett blieben erhalten.
Die angeführten Betriebskosten beruhen auf einer ersten Einschätzung der Hausverwaltung.
Die Fotos wurden mittels KI überarbeitet.
Eckdaten
| Kaufpreis: | 289.000,00 € |
| Fläche: | 61,51 m² |
| Zimmer: | 3 |
Basisdaten zur Immobilie
| Objektnr: | 0001011373 |
| Art: | Wohnung |
| Land: | Österreich |
| Baujahr: | 1890 |
| Möbliert: | Teil |
| Kaufpreis: | 289.000,00 € |
| Provision: | 3% des Kaufpreises plus 20% USt. |
| Betriebskosten: | 180,00 € |
| Wohnfläche: | 61,51 m² |
| Zimmer: | 3 |
| Bäder: | 1 |
| WC: | 1 |
| Heizwärmebedarf: | F 228,50 kWh/m²a |
| fGEE: | G 4,18 |
Ausstattung
Gas, Etagenheizung, Einbauküche, Bad mit Fenster, Dusche
Internet und TV
Information zur Internet und TV Versorgung hier
Ihre persönliche Beratung
Ing. Wolfgang Wagner
Raiffeisen Immobilien Vermittlung
teamwien@riv.at
+43517517
+436646051751778
