Lage der Immobilie
Wassergasse Nähe MurradwegBeschreibung der Immobilie
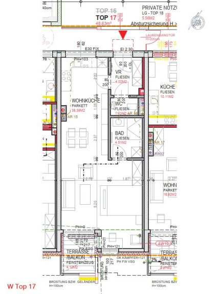
Appartement, Wassergasse, ca. 49 m2, Balkon
Die Wohnung liegt in einem vor wenigen Jahren errichteten Mehrparteienhaus in absoluter Ruhelage unweit des Murradweges. Sie besteht aus einem großzügigen Wohn/Schlafraum mit angrenzender top eingerichteter Küchennische, einem Vorraum, einem Abstellraum, sowie Badezimmer mit Dusche und WC mit Handwaschbecken.
Tiefgaragenstellplatz (Nr. 2) und Kellerabteil mit Stromanschluß vervollständigen das Angebot.
Mite inkl, BK/Fernwärme/Warmwasser/Garage € 743,95
Wir weisen darauf hin, dass zwischen dem Vermittler und dem zu vermittelnden Dritten ein familiäres oder wirtschaftliches Naheverhältnis besteht.
Der Immobilienmakler erklärt, dass er – entgegen dem in der Immobilienwirtschaft üblichen Geschäftsgebrauch des Doppelmaklers – einseitig nur für den Vermieter tätig ist.
Infrastruktur / Entfernungen
Gesundheit
Arzt <500m
Apotheke <500m
Klinik <1.500m
Krankenhaus <1.500m
Kinder & Schulen
Schule <500m
Kindergarten <500m
Universität <1.000m
Höhere Schule <1.000m
Nahversorgung
Supermarkt <500m
Bäckerei <500m
Einkaufszentrum <2.000m
Sonstige
Geldautomat <500m
Bank <500m
Post <500m
Polizei <1.500m
Verkehr
Bus <500m
Straßenbahn <500m
Bahnhof <1.500m
Autobahnanschluss <5.500m
Angaben Entfernung Luftlinie / Quelle: OpenStreetMap
Eckdaten
| Gesamtmiete: | 743,95 € |
| Fläche: | 48,63 m² |
| Zimmer: | 1,50 |
Basisdaten zur Immobilie
| Objektnr: | 5622 |
| Art: | Wohnung - Etage |
| Land: | Österreich |
| Zustand: | Neuwertig |
| Alter: | Neubau |
| Gesamtmiete: | 743,95 € |
| Kaltmiete (netto): | 528,57 € |
| Kaltmiete: | 618,99 € |
| Provision: | Gemäß Erstauftraggeberprinzip bezahlt der Abgeber die Provision. |
| Betriebskosten: | 89,75 € |
| Heizkosten: | 51,88 € |
| MwSt Gesamt: | 73,08 € |
| Wohnfläche: | 48,63 m² |
| Zimmer: | 1,50 |
| Bäder: | 1 |
| WC: | 1 |
| Terrassen: | 1 |
Ausstattung
Parkett, Fliesen, Zentralheizung, Einbauküche, Wohnküche / offene Küche, Personenaufzug, Südbalkon, Dusche, Kabel/Satelliten-TV, Tiefgarage
Internet und TV
Information zur Internet und TV Versorgung hier
Ihre persönliche Beratung
Patricia Reisinger
Immobilien am Geidorfplatz - Patricia Reisinger
patricia.reisinger@immogeidorf.at
+43 664 3943423
+43 664 3943 423
